Dom wolnostojący! brak opłat za ogrzewanie!
Gdynia, Pomorskie
Opis
Prezentujemy wyjątkowy dom wolnostojący w Pogórzu. Marzysz o miejscu, które łączy bliskość miasta z przestrzenią i spokojem? Ten dom spełnia dokładnie te oczekiwania. Położony na kameralnym osiedlu domów jednorodzinnych, w sąsiedztwie nowoczesnej infrastruktury, a jednocześnie z dala od miejskiego zgiełku, ten dom tworzy idealne warunki do codziennego życia. W kilka minut dojdziesz do Galerii Szperk, szkoły czy przedszkola, a centrum Gdyni jest osiągalne w ok. 15 minut samochodem. Gdy zatęsknisz za morzem - plaża jest tylko 7 minut od domu.
Projekt „Dom w dzwonecznikach", wybudowany w 2016 roku, to 160,21 m² funkcjonalnej przestrzeni, zaprojektowanej z myślą o wygodzie i codziennym komforcie. Dom stoi na zadbanej, 650-metrowej działce z prywatnym ogrodem, który wieczorami ożywa dzięki nastrojowemu oświetleniu ogrodowemu
Dla najmłodszych domowników przygotowano klimatyczny drewniany plac zabaw, to ulubione miejsce zabaw w ciepłe dni.
Rozkład pomieszczeń zachwyca funkcjonalnością. Przestrzeń dzienna zaprojektowana tak, aby codzienność była lekka i komfortowa:
Parter to 80,73 m² w skład którego wchodzą:
- reprezentacyjny wiatrołap
- łazienka z prysznicem
- praktyczna spiżarnia tuż przy kuchni
- kuchnia otwarta na jasny salon
- salon z jadalnią i wyjściem na taras
- hol
- kotłownia
- garaż jednostanowiskowy w bryle domu
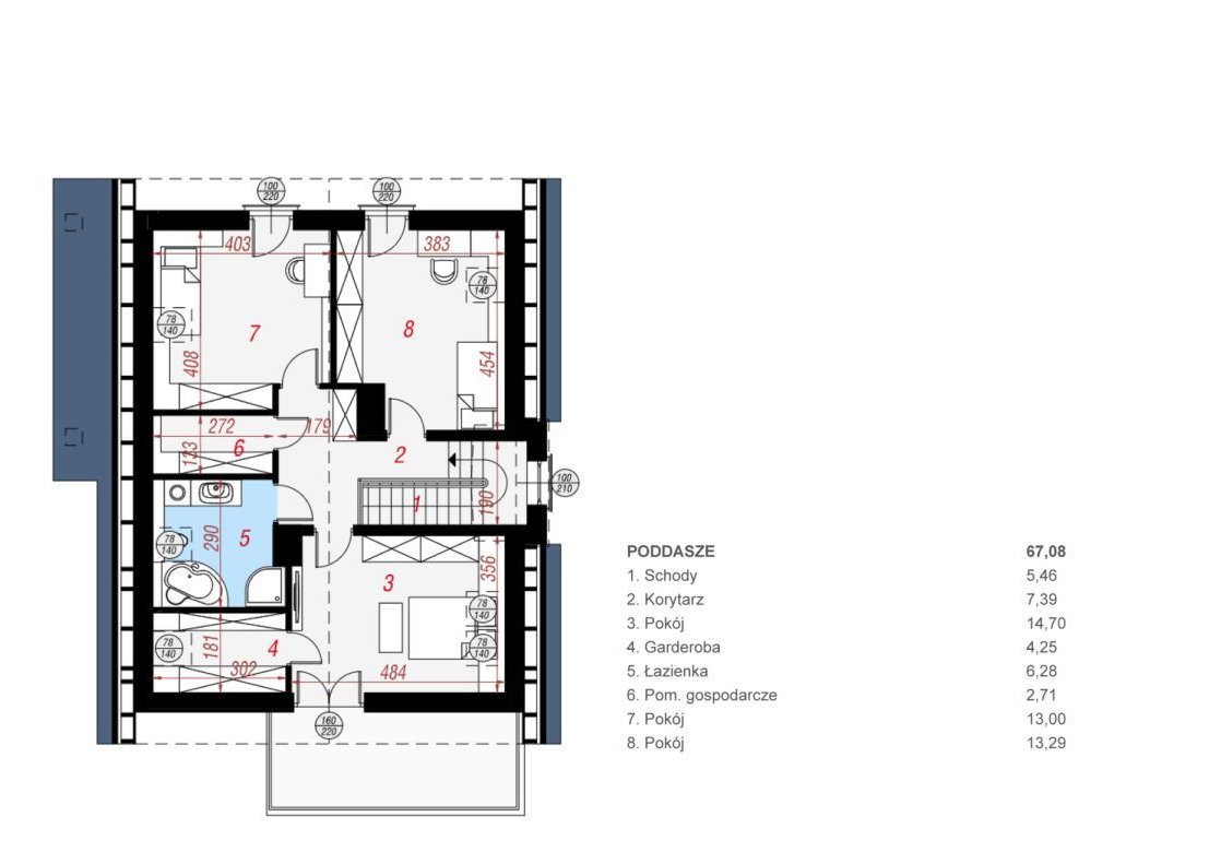
Piętro to 67,08 m² przestrzeni:
- trzy komfortowe sypialnie, w tym jedna z garderobą i balkonem
- przestronna łazienka z wanną i prysznicem
- pomieszczenie gospodarcze (jako pralnia/suszarnia)
Strych nieużytkowy - idealny na sezonowe przechowywanie
Dom został zaprojektowany tak, aby był nie tylko wygodny, ale i ekonomiczny:
- ogrzewanie- pompa ciepła Panasonic 7 kW z zasobnikiem
- ogrzewanie podłogowe w każdym pomieszczeniu, z indywidualnym sterowaniem
- rekuperacja zapewniająca świeże powietrze przez cały rok
- fotowoltaika 10 kW
- dom nie generuje żadnych opłat za ogrzewanie i ciepłą wodę.
- światłowód
- przygotowana instalacja alarmowa
- nagłośnienie Bluetooth w łazience
Nieruchomość została wybudowana metodą tradycyjną, z najlepszej klasy materiałów.
- Materiał budowlany to beton komórkowy 24 cm + ocieplenie szarym styropianem 20 cm
- dach i strop (piana PUR 20 cm)
- elegancka czarna dachówka ceramiczna
- okna trzyszybowe w kolorze antracytu
- brak kominów - nowoczesna, czysta architektura
Ogród, staje się częścią domu
Przestrzeń wokół domu została zaprojektowana przez specjalistów - to ogród, w którym chce się spędzać czas. Znajdziesz tu:
- taras z elektrycznym zadaszeniem, idealny na popołudniową kawę lub letnie spotkania
- automatyczne podlewanie
- automatyczną kosiarkę, która sama zadba o trawnik
- klimatyczne wieczorne oświetlenie
- rodzinny drewniany plac zabaw
- automatyczną bramę wjazdową
To dom, który daje poczucie prywatności, spokoju i komfortu, a jednocześnie zapewnia świetny dostęp do wszystkiego, czego potrzeba na co dzień. Idealny dla rodziny, która ceni jakość, nowoczesne rozwiązania i harmonijną przestrzeń do życia.
Polecam i zapraszam na prezentację!!!
Zapraszamy Państwa do skorzystania z usług biura Stalko Nieruchomości w zakresie pośrednictwa w obrocie nieruchomościami. Współpracując z nami otrzymujesz:
- patronat doświadczonych agentów,
- ubezpieczenie transakcji,
- doradztwo kredytowe i prawne,
- dostęp do sprawdzonych specjalistów: architektów, geodetów, konstruktorów, firm wykończeniowych oraz ekip sprzątających.
- czynności objęte usługami pośrednictwa w obrocie nieruchomościami są usługami odpłatnymi.
Gwarantujemy profesjonalne podejście oraz kompleksową obsługę na każdym etapie procesu zakupu czy sprzedaży nieruchomości.
Niniejsze ogłoszenie nie stanowi oferty handlowej w rozumieniu przepisów Kodeksu Cywilnego i służy wyłącznie celom informacyjnym. Zawarte w ogłoszeniu informacje mogą różnić się od stanu rzeczywistego.
Ogólne informacje
| Rodzaj | Na sprzedaż |
|---|---|
| Powierzchnia użytkowa | 160.21 m² |
| Liczba pokoi | 4 |




