Dom z ogrodem i garażem (bez prowizji)
Śląskie
Opis
WYJĄTKOWA OKAZJA !!! PROMOCJA OSTATNIEGO LOKALU NA DESZCZOWEJ W CENIE 660 000, ZAPRASZAM DO REZERWACJI
SYLWIA DOMUSNOVA
Mam przyjemność zaprezentowania Państwu , ukończoną gotową Inwestycję w Hałcnowie składająca się z pięciu budynków dwu-lokalowych.
Domy położone są w malowniczej okolicy, przy lesie, z widokiem na góry.
Jesteśmy przedstawicielami inwestora, nie pobieramy prowizji od Klienta Kupującego !
Domy są gotowe, odbiory techniczne budynków, stan deweloperski, wysoka jakość.
Teren osiedla zamknięty , brama na pilota , do każdego lokalu ogródek (działka około 5a ) oraz garaż w bryle budynku.
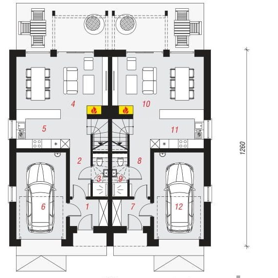
Rozkład pomieszczeń lokalu:
PARTER
1. Wiatrołap – 4,07
2. Garaż- 17,54
3. Hol- 5,28
4. Schody – 4,26
5. Salon- 20,99
6. Kuchnia – 8,21
7. Łazienka – 2,64
8. Kotłownia - 4.17
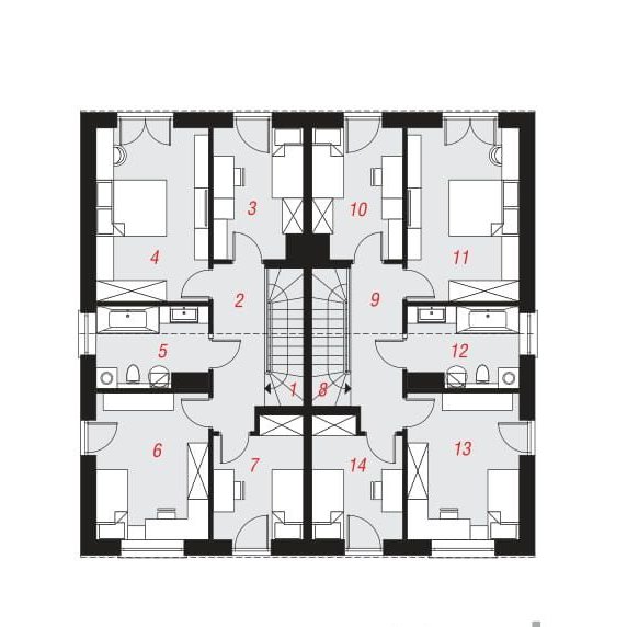
PODDASZE
1. Hol - 6,98
2. Pokój - 9,05
3. Pokój - 13,45
4. Łazienka - 6,88
5. Pokój - 12,08
6. Pokój – 8,15
Instalacje : elektryczna, wod-kan, co, gaz, kanalizacja
Materiały:
Ściany: SOLBET Optimal PLUS 240 o gęstości 500
Okna DRUTEX - 3 szybowe
Stropy RECTOR
Elewacja docieplona styropianem NEOTHERM - 20 cm plus tynki silikonowe.
Wylewki wraz z tynkami wewnętrznymi.
Poddasze docieplone wełną - 20 cm.
Dach kryty blachą na rąbek.
Dobre połączenie komunikacyjne z centrum, pełna infrastruktura handlowo-usługowa.
Lokalizacja domu w otoczeniu domów jednorodzinnych i lasu.
Ciche zielone i spokojne miejsce, a jednocześnie blisko sklepy, apteka , przystanek autobusowy, szkoła, przedszkole.
Każdy lokal wyposażony dodatkowo będzie w piec centralnego ogrzewania, ogrzewanie podłogowe wraz z grzejnikami w garażu i łazience. Podjazdy pod garaż będą wybrukowane , posesje ogrodzone.
Cena: 749 000 zł brutto za lokal , promocja walentynkowa
O% prowizji dla Kupującego!!!!
Serdecznie polecam i zapraszam na prezentację.
Nota prawna
Opis oferty zawarty na stronie internetowej sporządzony jest na podstawie oględzin nieruchomości oraz informacji uzyskanych od właściciela, może podlegać aktualizacji i nie stanowi oferty określonej w art. 66 i następnych K.C.
Ogólne informacje
| Rodzaj | Na sprzedaż |
|---|---|
| Powierzchnia użytkowa | 122.81 m² |
| Liczba pokoi | 5 |




