Dom z ogrodem i garażem, raty BEZ KREDYTU lub RABAT
Mazowieckie
Opis
Nowoczesny, jednorodzinny dom w zabudowie szeregowej na osiedlu Villa Campina, na przedmieściach Ożarowa Mazowieckiego - Kaputy / Kręczki.
Zakup bezpośrednio od dewelopera: brak PCC i brak prowizji.
Monitorowane, bezpieczne osiedle z całodobową ochroną.
Stan deweloperski, dom gotowy do odbioru.
Od frontu podjazd z kostki brukowej, na tyłach drewniany taras i ogród.
Zastosowane technologie:
pompa ciepła
ogrzewanie podłogowe
rekuperacja
światłowód
system umożliwiający montaż fotowoltaiki
wysoka izolacyjność akustyczna
Niskie koszty utrzymania.
Powierzchnia całkowita: 132,83m²
Powierzchnia użytkowa: 101,46m²
Działka: 302.00m²
Rozkład:
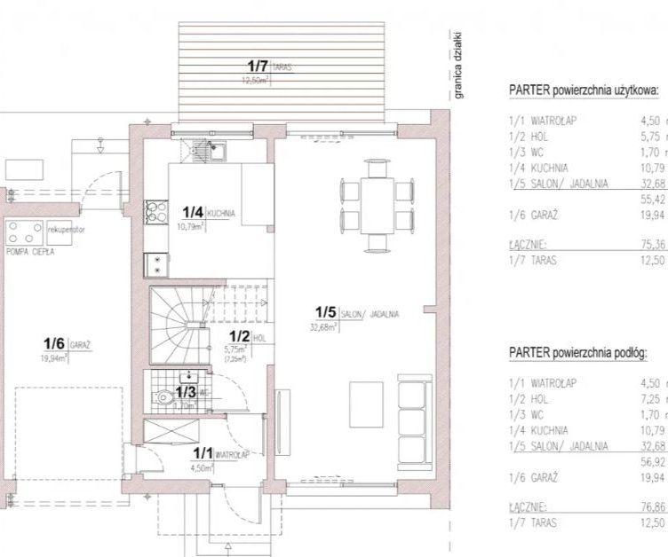
Parter:
wiatrołap - 4,50m²
hol - 5,75m²
WC - 1,70m²
kuchnia - 10,79m²
salon z jadalnią - 32,68m²
Garaż w bryle budynku: 19,94m² - z dodatkowym wyjściem na ogród !
Taras drewniany: 12,50m²
Ogród: 102,00m²
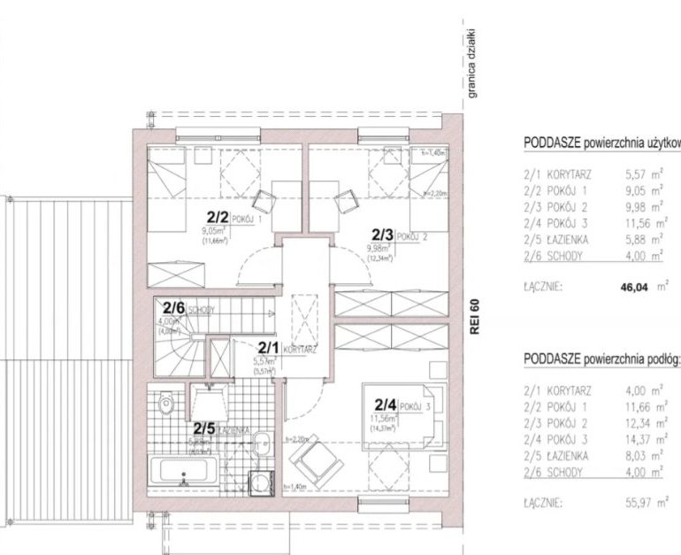
Poddasze:
korytarz - 5,57m²
pokój 1 - 9,05m²
pokój 2 - 9,98m²
pokój 3 - 11,56m²
łazienka - 5,88m²
schody - 4,00m²
Strych: ok 30,00m²
Lokalizacja:
Doskonała lokalizacja zapewnia szybki dojazd do Warszawy.
W okolicy: szkoła podstawowa, przedszkole, boiska, baseny, paczkomaty, ścieżki rowerowe oraz liczne punkty usługowe.
Komunikacja:
przy osiedlu przystanek autobusowy - linia 743
9min do PKP Ożarów Mazowiecki
8min do przyszłej stacji metra Chrzanów
Zapraszam do kontaktu i na prezentację
Karol
Ogłoszenie ma charakter informacyjny i nie stanowi oferty handlowej w rozumieniu art. 66 §1 Kodeksu cywilnego. Zdjęcia domu pokazowego mają charakter poglądowy.
Ogólne informacje
| Rodzaj | Na sprzedaż |
|---|---|
| Powierzchnia użytkowa | 132.83 m² |
| Liczba pokoi | 4 |




