Domy Rybna BEZPOŚREDNIO!
Małopolskie
Opis
Proponujemy domy w stanie deweloperskim:
• budynek wykonany technologią tradycyjną: ściany nośne - POROTHERM 25 cm, ścianki działowe - pustak ceramiczny POROTHERM 11,5 cm
• elewacja: ocieplenie - styropian 20 cm + tynk akrylowy
• fundamenty betonowe z hydroizolacją i ociepleniem 15 cm
• pokrycie: dachówka ceramiczna, okna dachowe FAKRO, rynny PCV
• podbitka dachu drewniana
• kominy wykonane systemem
• okna plastik w kolorze
• drzwi wejściowe ocieplane
• podłogi: wylewki i izolacje
• ściany: tynki maszynowo-gipsowe
• poddasze ocieplone: wełna 30 cm, konstrukcja metalowa, płyty gipsowo-kartonowe
• zamontowane schody strychowe
• barierki metalowe na balkonach
• parapety wewnętrzne: kamień naturalny
• przyłącz prądu, wody, kanalizacji i gazu wraz z wykonanymi instalacjami w budynku
• wentylacja mechaniczna
• wykonana instalacja antenowa
• kocioł z zamkniętą komorą spalania
• ogrzewanie podłogowe
• zamontowany zestaw podtynkowy GEBERIT
• alarm z powiadomieniem jednostki interwencyjnej
• budynek oddany do użytkowania - ODBIÓR TECHNICZNY
• bez drzwi wewnętrznych, podłóg, szpachlowania, malowania, białego montażu
• podjazd oraz opaski wokół budynku wyłożone kostką brukową
• działka ogrodzona powlekaną siatką
• brama wjazdowa i furtka
• taras z widokiem na ogród wyłożony kostką brukową
• teren wokół budynku wstępnie uporządkowany i zniwelowany
• okolica spokojna, przewaga terenów zielonych
Ogólne informacje
| Rodzaj | Na sprzedaż |
|---|---|
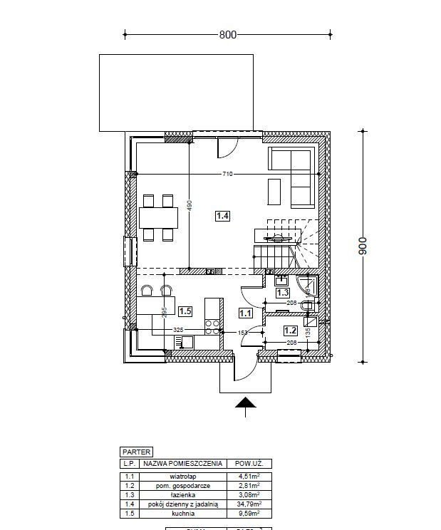
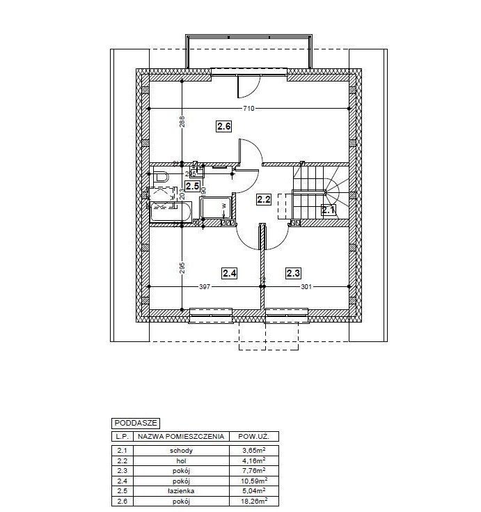
| Powierzchnia użytkowa | 104 m² |
| Liczba pokoi | 4 |




