Domy w zabudowie szeregowej
Nowy Sącz, Małopolskie
Opis
Na sprzedaż - domy w zabudowie szeregowej przy ul. Księżycowej w Nowym Sączu.
Nowe domy ze strefą wypoczynku, miejscami parkingowymi i ogródkami.
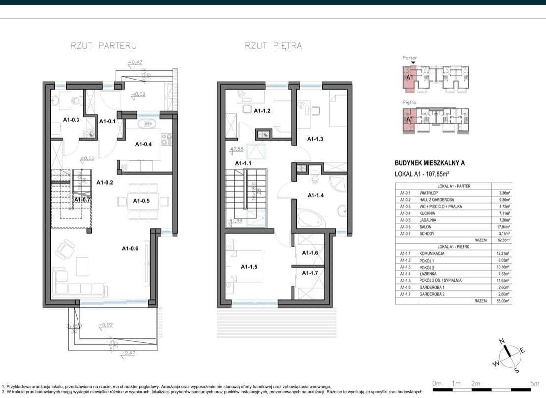
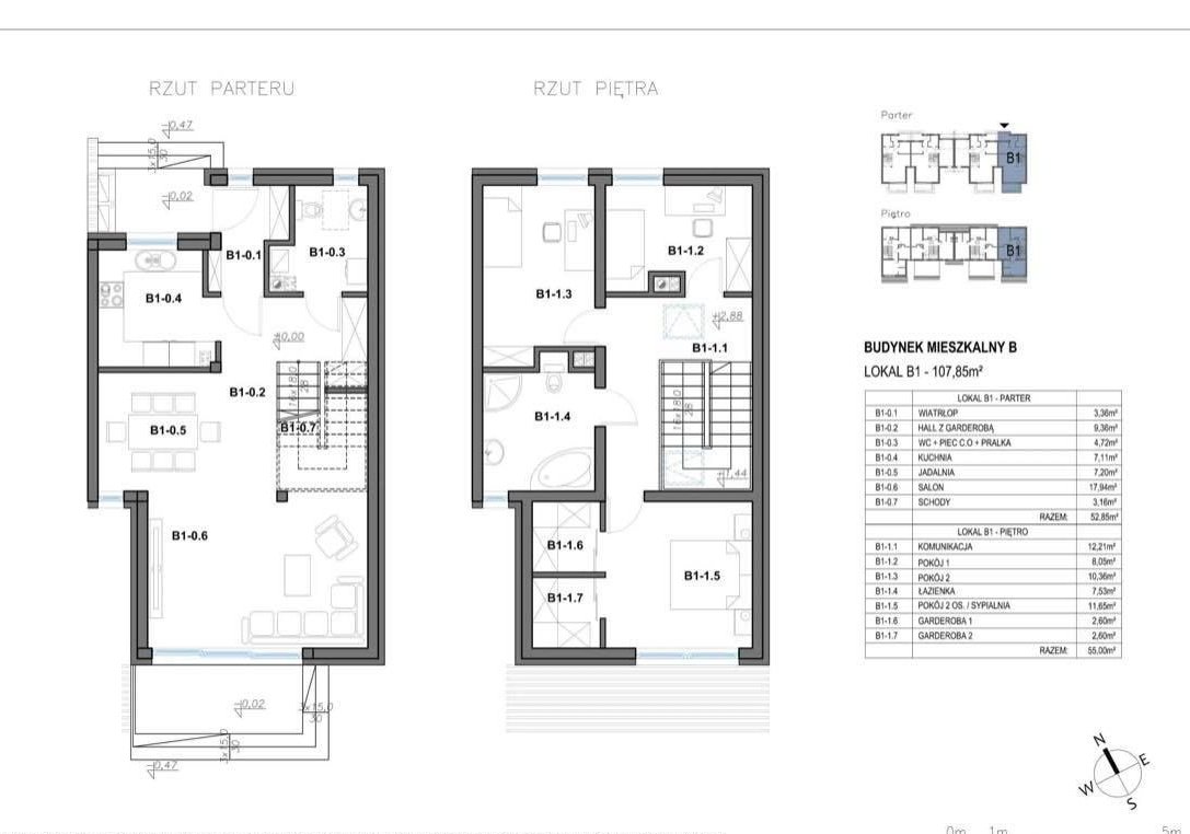
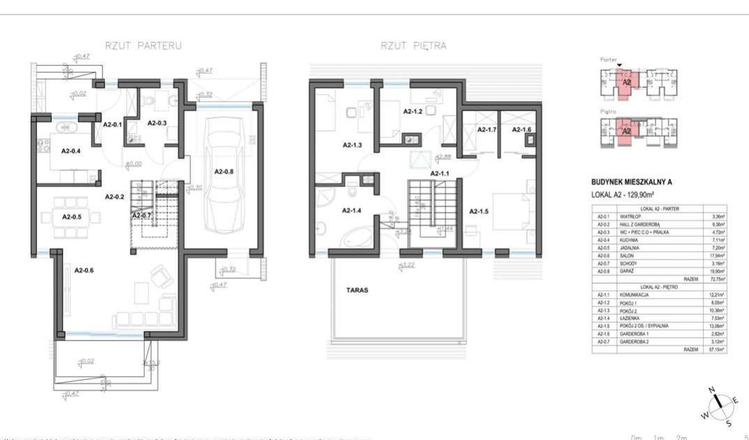
Nieruchomość składa się z 4 segmentów:
- powierzchnia segmentów A1, B1 to 107,85 m2 każdy,
- powierzchnia segmentów A2, B2 to 129,90 m2 każdy
Nowoczesne, ekologiczne i energooszczędne domy w zabudowie szeregowej będą oddawane w stanie deweloperskim o wysokim standardzie.
W skład nieruchomości wchodzi:
PARTER (52,85 m2):
- salon (17,94 m2),
- jadalnia (7,20 m2),
- kuchnia (7,11 m2),
- WC + pralnia i kotłownia (4,72m2),
- hall z garderobą (9,36 m2),
- schody (3,16 m2),
- wiatrołap (3,36 m2)
PIĘTRO (52,00 m2):
- komunikacja (12,21 m2),
- pokój (8,05 m2),
- pokój (10,36 m2),
- pokój 2 os./sypialnia (11,65 m2),
- łazienka (7,53 m2),
- garderoba 1 (2,60 m2),
- garderoba 2 (2,60 m2)
- segmenty A2, B2 dodatkowo posiadają garaże
- nieruchomość jest wykonana z najlepszej jakości materiałów przy użyciu sprawdzonych technologii budowlanych,
- bryła budynku została zaprojektowana nowoczesną jak i oryginalną elewacją, która jednocześnie urzeka prostotą formy,
- wewnątrz tynki gipsowe,
- wylewki + ocieplenie podłóg,
- domy z kompletną instalacją elektryczną, teletechniczną, gazową, wodociągową, kanalizacji sanitarnej oraz grzewczej, wszystkie instalacje gotowe do przyłączenia ze sprzętem białego montażu,
- stolarka okienna PCV w systemie przeszklenia szybami dwukomorowymi, nowoczesne drzwi wejściowe antywłamaniowe z dwoma zamkami,
- posesja ogrodzona z bramą wjazdową otwieraną na pilota,
- ogródki wydzielone i ogrodzone,
- miejsca postojowe przed domami,
- chodniki i podjazdy wybrukowane,
- dom w całości wykończony na zewnątrz, ocieplony styropianem,
- dojazd do nieruchomości asfaltowy
Lokalizacja:
- lokalizacja umożliwia łatwy i szybki dostęp do centrum miasta,
- idealne miejsce podkreśla dogodny dostęp do bogatej infrastruktury wykorzystywanej w codziennym życiu, na którą składają się: szkoły, przedszkola, żłobki, przychodnie lekarskie, kościół, sklepy spożywcze i usługowe, linie autobusowe, place zabaw, punkty gastronomiczne, bank, galeria Trzy Korony, centrum handlowe Gołąbkowice.
Cena:
- segmenty A1, B1 (107,85 m2) - 655000 zł
- segmenty A2, B2 (129,90 m2) - 799000 zł
Segmenty A 1, B1 - sprzedane
Po więcej informacji zapraszam do kontaktu pod nr tel.:
664 013 774
789 015 366
Ogólne informacje
| Rodzaj | Na sprzedaż |
|---|---|
| Powierzchnia użytkowa | 107.85 m² |
| Liczba pokoi | 4 |




