Duży dom z ogrodem | 7-pok | Ołtaszyn
Wrocław, Dolnośląskie
Opis
Na sprzedaż dom wolnostojący z dużą działką (563m2) na wrocławskim Ołtaszynie.
Dom zlokalizowany jest w spokojnej, willowej okolicy w bezpośrednim sąsiedztwie punktów usługowo-handlowych. Wybudowany w latach 80 i w międzyczasie częściowo odnowiony. Obecnie dostosowany pod biuro – idealny pod inwestycję lub po małych zmianach - dla rodziny.
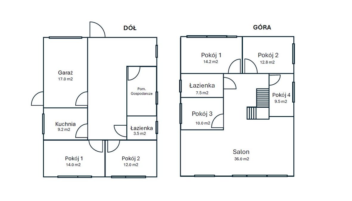
Układ pomieszczeń:
Dom o powierzchni 204m2:
Parter:
korytarz
pomieszczenie gospodarcze
łazienka
I pokój – wyjście na taras i ogród
II pokój – wyjście na taras i ogród
kuchnia
garaż
I piętro:
korytarz
I pokój – wyjście na balkon
II pokój
III pokój
IV pokój
salon – wyjście na balkon
łazienka
Meble i sprzęty kuchenne pozostają na wyposażeniu domu.
Lokalizacja:
Wartością dodaną jest sama lokalizacja domu – niewątpliwie Ołtaszyn cieszy się dużą atrakcyjnością wśród zainteresowanych. Jest to świetne miejsce zarówno dla firm szukających nowego miejsca do rozwoju jak i rodzin chcących odpocząć od zgiełku, ale pozostać w bliskiej odległości od infrastruktury miejskiej. W pobliżu Tor wyścigów konnych Partynice, placówki edukacyjne, sklepy, markety, restauracje, tereny spacerowe i komunikacja miejska.
Dodatkowe informacje:
media miejskie,
ogrzewanie gazowe, piec dwufunkcyjny,
dom jest ocieplony
klimatyzacja w trzech pokojach na piętrze,
alarm, rolety zewnętrzne,
możliwość zrobienia wiaty, miejsca postojowe na podjeździe
5min spacerem do przystanku autobusowego
10min samochodem do Bielan
25min samochodem do centrum
Cena z wyposażeniem: 1 590 000 zł
Zapraszam na prezentacje!
Karolina Urban
Urban Nieruchomości
Ogólne informacje
| Rodzaj | Na sprzedaż |
|---|---|
| Powierzchnia użytkowa | 205 m² |
| Liczba pokoi | 7 |




