Dwupoziomowe mieszkanie do remontu 76m² Toruń ul. Kozacka
Toruń, Kujawsko-Pomorskie
Opis
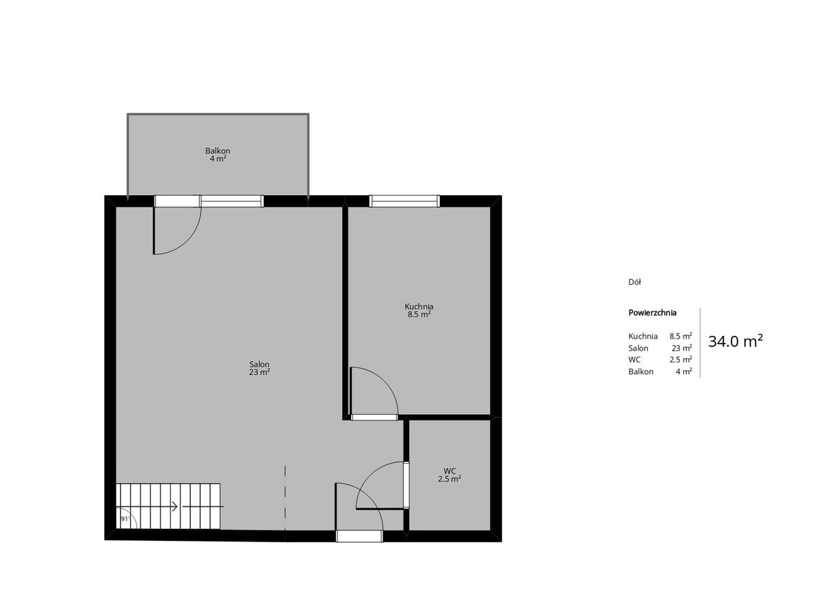
Dwupoziomowe, 4-pokojowe mieszkanie o powierzchni 76 m², położone na 3. piętrze. Na dole salon, kuchnia i WC, na piętrze 3 pokoje i łazienka. Budynek z cegły z 1996 roku. Mieszkanie jest dobrze doświetlone, wygodne, z drewnianymi schodami i podłogami. Oddzielna kuchnia z możliwością przebudowy na aneks. Balkon typu loggia. Przynależna piwnica 3 m².
Bardzo dobra lokalizacja w dzielnicy Koniuchy w Toruniu, przy ul. Kozackiej. Pełna infrastruktura handlowa, usługowa i komunikacyjna.
Ogólne informacje
| Rodzaj | Na sprzedaż |
|---|---|
| Powierzchnia użytkowa | 76 m² |
| Piętro | 3 |
| Liczba pokoi | 4 |




