Dwustronne | Balkon 7,3 m2 | Garderoba | Gotowe w tym Roku | 0%PCC
Wrocław, Dolnośląskie
Opis
ZAKUP BEZPOŚREDNIO OD DEWELOPERA - NIE PŁACISZ PROWIZJI I PODATKU PCC
Nie masz czasu zapoznać się z ogłoszeniem zadzwoń.
Na sprzedaż mieszkania w nowoczesnym, kameralnym projekcie zlokalizowanym w północnej części Wrocław, na dynamicznie rozwijającym się osiedlu Lipa Piotrowska. To miejsce stworzone dla osób, które chcą połączyć komfort życia w spokojnej okolicy z wygodnym dostępem do miejskiej infrastruktury.
Inwestycja wyróżnia się nowoczesną architekturą, kameralnym charakterem zabudowy oraz funkcjonalnymi rozwiązaniami, które zapewniają wygodę codziennego życia. Projekt został zaplanowany z myślą o osobach szukających równowagi między prywatnością domu a praktycznością mieszkania.
W ofercie znajdują się zarówno mieszkania w kameralnych budynkach z czterema lokalami, jak i lokale w eleganckim budynku wielorodzinnym. Dzięki temu przyszli mieszkańcy mogą wybrać przestrzeń najlepiej dopasowaną do swoich potrzeb.
Mieszkania w kameralnych budynkach czterolokalowych to idealna propozycja dla osób, które cenią sobie prywatność oraz niskie koszty utrzymania. Ograniczona liczba części wspólnych przekłada się na bardzo niski czynsz, a każdy lokal posiada dwa miejsca parkingowe – jedno na podjeździe oraz drugie w garażu pod budynkiem. Dodatkowym atutem są przestronne ogrody sięgające nawet około 200 m², które pozwalają stworzyć własną strefę relaksu na świeżym powietrzu. Wysoki standard obejmuje m.in. elektryczne rolety na parterze, estetyczne deski tarasowe oraz nowoczesne szklane balustrady.
Mieszkania w budynku wielorodzinnym to z kolei propozycja dla osób poszukujących komfortu, nowoczesnego designu i dobrze zaprojektowanej przestrzeni. Do dyspozycji mieszkańców przewidziano zieloną strefę wypoczynku przed budynkiem, z estetycznym skwerem, ławkami oraz elementami małej architektury. Dostępna jest szeroka gama układów mieszkań, a wybrane lokale oferują bardzo duże ogrody – nawet do około 300 m², które stanowią wyjątkową przestrzeń do odpoczynku, spotkań z bliskimi czy rekreacji.
To idealna propozycja dla osób, które chcą zamieszkać w spokojnej, zielonej części miasta, a jednocześnie korzystać z wygody życia w jednej z najszybciej rozwijających się okolic Wrocław.
Szukasz idealnego mieszkania? Zaufaj profesjonalistom! Oferujemy szeroki wybór mieszkań od sprawdzonych deweloperów – dopasowanych do Twoich potrzeb i budżetu. Skontaktuj się z nami już dziś, a pomożemy Ci znaleźć wymarzone lokum w najlepszej lokalizacji oraz CENIE.
Ogólne informacje
| Rodzaj | Na sprzedaż |
|---|---|
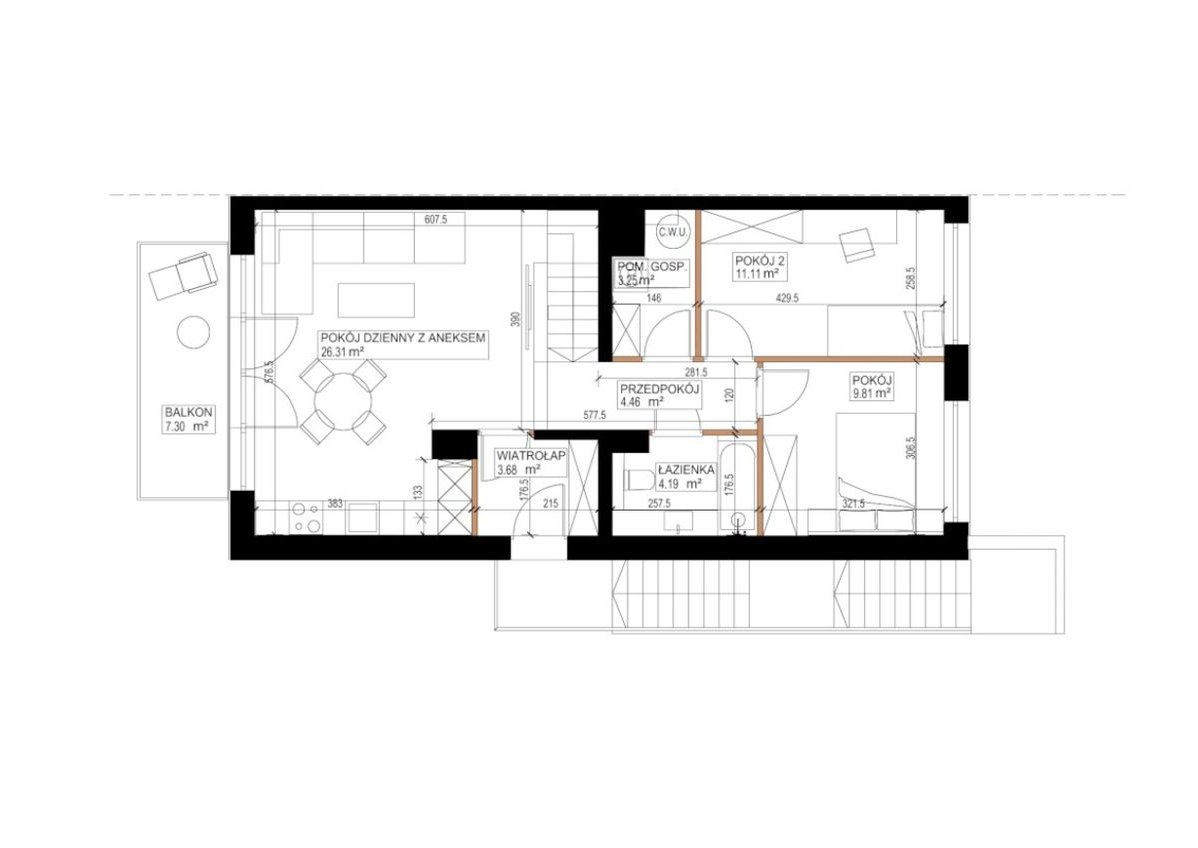
| Powierzchnia użytkowa | 63 m² |
| Piętro | 1 |
| Liczba pokoi | 3 |




