Działka +Dom2026 3 pokoje +salon +poddasze Targowa ECO
Kujawsko-Pomorskie
Opis
Sprzedam bezpośrednio Dom z działką: działkę budowlaną 500m2 (lub o innej powierzchni) z nowym domem 100m2 wg załączonego lub innego wybranego projektu - stan deweloperski lub inny uzgodniony w Brodnicy - pełna własność, zjazd z ul. Targowej, przy granicy Brodnica-Szabda. Bardzo dobry i bliski dojazd do centrum. Unikalne zielone otoczenie - piękne sosny i brzozy, kameralna zabudowa, blisko a zarazem na uboczu.
Działki sąsiednie zabudowane, w trakcie budowy lub częściowo zadrzewione - do wyboru w różnych wielkościach.
Własny dostęp do drogi publicznej.
Malownicza i spokojna okolica.
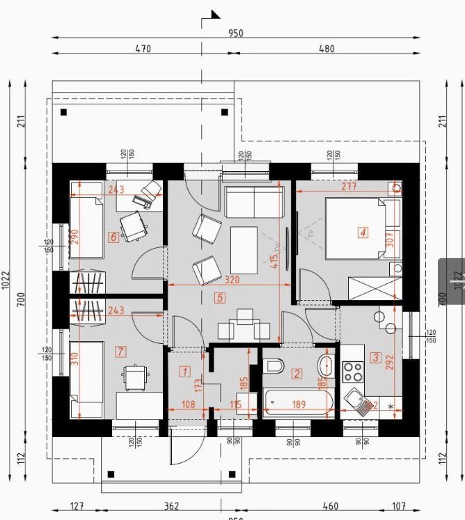
Zdjęcia przedstawiają poglądowo jedną z działek do wyboru oraz jeden z możliwych projektów. Osoby zainteresowane zapraszamy do kontaktu.
Ogłoszenie nie stanowi oferty w rozumieniu Kodeksu Cywilnego, jest informacją ogólną i zaproszeniem do zapoznania się z ofertą.
Ogólne informacje
| Rodzaj | Na sprzedaż |
|---|---|
| Powierzchnia użytkowa | 100 m² |
| Liczba pokoi | 4 |




