Energooszczędny bliźniak PV + magazyn energii Gotowy do zamieszkania
Lubuskie
Opis
Jeśli szukasz nowoczesnego domu gotowego do zamieszkania, energooszczędnego i położonego w spokojnej okolicy blisko miasta — ta oferta spełni Twoje oczekiwania.
Na sprzedaż komfortowy dom w zabudowie bliźniaczej o powierzchni 154 m², wybudowany w 2022 roku, zlokalizowany w Ciecierzycach — zaledwie 7 km od centrum Gorzowa Wielkopolskiego.
To idealne miejsce dla rodzin oraz osób ceniących prywatność, wygodę i kontakt z naturą bez rezygnacji z miejskiej infrastruktury.
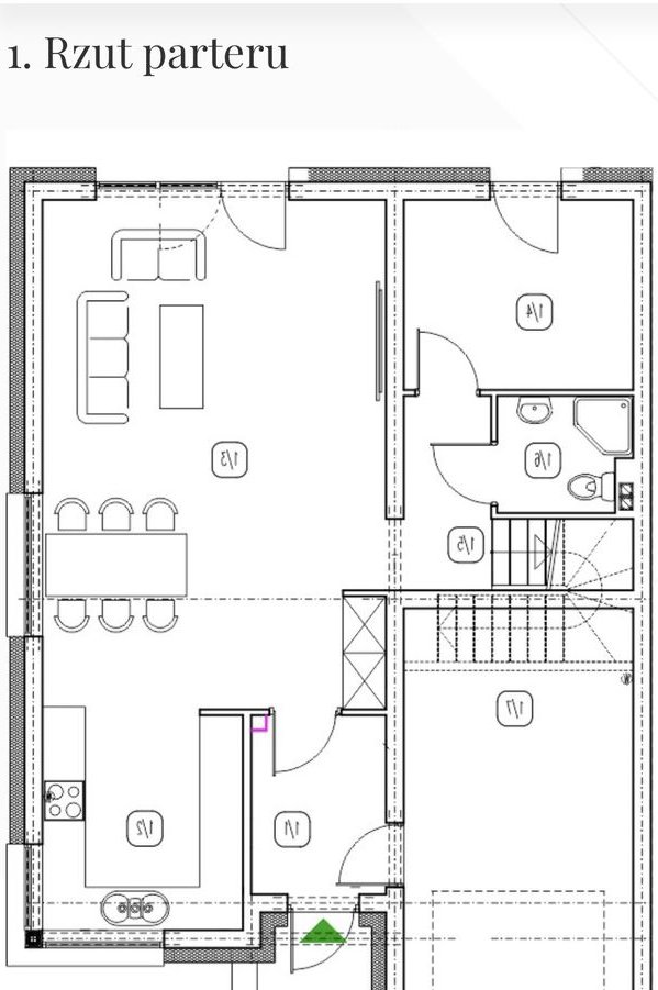
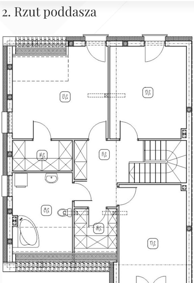
Funkcjonalny układ domu:
- przestronny, jasny salon z kuchnią i strefą jadalnianą
- 4 komfortowe pokoje
- 2 nowoczesne łazienki
- garderoba
- pralnia
- garaż w bryle budynku
Dom został zaprojektowany z myślą o wygodnym codziennym życiu oraz maksymalnej funkcjonalności przestrzeni.
Nowoczesne technologie i wyposażenie:
- ogrzewanie gazowe
- instalacja fotowoltaiczna (PV)
- magazyn energii – realne oszczędności na rachunkach
- rolety zewnętrzne ze sterowaniem automatycznym
- studnia przeznaczona do podlewania ogrodu
- przygotowany system automatycznego nawadniania trawnika i żywopłotu
Lokalizacja – komfort życia:
spokojna, kameralna zabudowa
blisko szkoła, sklep oraz przystanek autobusowy
bezpośrednie sąsiedztwo lasu i terenów rekreacyjnych
szybki dojazd do Gorzowa Wielkopolskiego
Dom łączy nowoczesność, energooszczędność oraz świetną lokalizację — to propozycja dla osób, które chcą wprowadzić się bez konieczności dodatkowych inwestycji.
Cena: 980 000zł
Zapraszam do kontaktu oraz na prezentację nieruchomości.
Ogólne informacje
| Rodzaj | Na sprzedaż |
|---|---|
| Powierzchnia użytkowa | 154 m² |
| Liczba pokoi | 4 |




