Etap 7 bliźniak 1 z miejscem parkingowym i ogrodem
Mazowieckie
Opis
4-pokojowy dom numer 7_1 położony w inwestycji Osiedle Polna
funkcjonalny, ustawny, nowy lokal o powierzchni 89,49 m²
inwestycja dla wymagających osób, które cenią nowoczesne rozwiązania
Poznaj inwestycję - Osiedle Polna
Jeżeli cenisz sobie ciszę i spokój to ta oferta jest dla Ciebie! Zamieszkaj na malowniczo położonym osiedlu i ciesz się swoim domem już w 2026 roku.
Każdy bliźniak ma powierzchnię 89,49 m² oraz działkę 500 m². Do każdego lokalu przynależy miejsce parkingowe. Cena zawiera pompę ciepła.
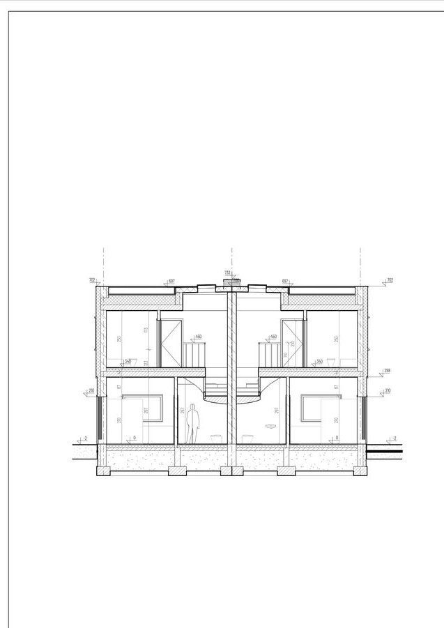
Rozkład pomieszczeń:
Parter:
Pokój dzienny 38,69 m²,
Łazienka 5,03 m²,
Pomieszczenie techniczne 3,69 m²
Łącznie 47,41 m²
Piętro:
Korytarz 4,18 m²,
Sypialnia 9,02 m²,
Sypialnia 9,67 m²,
Łazienka 3,96 m²,
Sypialnia 15,22 m²
Łącznie 42,06 m²
Specyfikacja:
Bloczki gazobetonowe gr.24cm, izolowane z zewnątrz styropianem typu EPS 032 Fasada Super (0,032 W/mK) wykończone tynkiem cienkowarstwowym na siatce.
Stropy międzykondygnacyjne łączące parter z górą żelbetowe prefabrykowane typu Teriva.
Dach kopertowy o kącie nachylenia połaci 20st., o konstrukcji drewnianej kratownicowej, kryty blachą powlekaną. Dostęp do kominów przez wyłazy dachowe.
Izolacja termiczna ze styropianu EPS typu FUNDAMENT Ściany zewnętrzne – izolacja termiczna ze styropianu EPS typu FASADA Dach – folia wysokoparoprzepuszczalna, izolacja.
Lokalizacja:
Centrum Grodziska Mazowieckiego (targowisko) - ok 6 km,
Żłobek - ok 1 km,
Supermarket - ok 4 km,
Trasa S8 - ok 14 km,
Szkoła Podstawowa w Adamowiźnie - ok 4 km,
Szkoła Podstawowa w Żabiej Woli - ok 3 km.
Ogólne informacje
| Rodzaj | Na sprzedaż |
|---|---|
| Powierzchnia użytkowa | 89.46 m² |
| Liczba pokoi | 4 |




