Funkcjonalny dom | Umultowo
Poznań, Wielkopolska
Opis
PRZESTRONNY SEGMENT NA UMULTOWIE W BEZPIECZNEJ I CICHEJ OKOLICY
Fotowoltaika | Wszystkie media miejskie | Cicha i bezpieczna okolica | Idealny dla rodziny
Zapraszam do zapoznania się z ofertą domu, który łączy funkcjonalność miejskiego życia z przestrzenią dla dużej rodziny. Nieruchomość zlokalizowana w sercu poznańskiego Umultowo oferuje ogromny potencjał aranżacyjny i nowoczesne rozwiązania energooszczędne. Idealny dla: rodzin z dziećmi, osób pracujących z domu lub jako inwestycja pod wynajem.
*****
BUDYNEK:
* Technologia: Dom murowany z cegły, dach pokryty dachówką.
* Bezpieczeństwo: Teren w pełni ogrodzony, wyposażony w domofon oraz elektryczne rolety zewnętrzne na parterze.
* Media: Prąd, woda, gaz oraz kanalizacja miejska.
* Ogrzewanie: Nowoczesna instalacja wymieniona 2 lata temu - nowe kaloryfery oraz dwufunkcyjny kocioł gazowy.
* Ekologia: Zamontowane panele fotowoltaiczne o mocy 5,4 kW.
LOKALIZACJA:
Nieruchomość znajduje się w Poznaniu, Różany Potok, Poznań-Stare Miasto - jednej z najbardziej cenionych części miasta. Lokalizacja ta zapewnia idealny balans pomiędzy ciszą terenów zielonych a bliskością pełnej infrastruktury: szkół, punktów usługowych oraz szybkiego połączenia z centrum Poznania.
INFORMACJE DODATKOWE:
* Pomieszczenia dodatkowe: Dom posiada pełne podpiwniczenie, idealne pod działalność gospodarczą.
* Niskie koszty: Czynsz administracyjny wynosi zaledwie ok. 300 PLN (obejmuje m.in. wodę i kanalizację i śmieci).
Serdecznie zapraszam na prezentację!
——————————————
KONTAKT:
Barbara Nawrocka: +48 532 174 054
Przedstawiona wyżej oferta nie jest ofertą handlową w rozumieniu przepisów prawa, lecz ma charakter informacyjny. Partners International dokłada starań, aby treści przedstawione w naszych ofertach były aktualne i rzetelne. Dane dotyczące ofert uzyskano na podstawie oświadczeń Wynajmujących.
Jako agencja nieruchomości pobieramy wynagrodzenie w formie prowizji.
——————————————
CONTACT:
Barbara Nawrocka: +48 532 174 054
The above information is not a commercial offer for the purposes of the law but is informative. All data relating to the real estate was obtained on the basis of statements of the Landlords.
As a real estate agency, we charge a commission.
———————————
SPACIOUS HOUSE IN UMULTOWO IN A SAFE AND QUIET AREA
Photovoltaics | All municipal utilities | Quiet and safe neighborhood | Ideal for families
Take a look at this house, which combines the functionality of city life with space for a large family. Located in the heart of Poznań's Umultowo district, the property offers enormous potential for interior design and modern energy-saving solutions. Ideal for: families with children, people working from home, or as a rental investment.
*****
BUILDING:
* Technology: Brick house with a tiled roof.
* Security: Fully fenced area, equipped with an intercom and electric external blinds on the ground floor.
* Utilities: Electricity, water, gas, and municipal sewage system.
* Heating: Modern system replaced 2 years ago - new radiators and dual-function gas boiler.
* Ecology: 5.4 kW photovoltaic panels installed.
LOCATION:
The property is located in Poznań, Różany Potok, Poznań-Stare Miasto - one of the most valued parts of the city. This location provides the perfect balance between the tranquility of green areas and proximity to full infrastructure: schools, service outlets, and quick access to the center of Poznań.
ADDITIONAL INFORMATION:
* Additional rooms: The house has a full basement, ideal for business activities.
* Low costs: The administrative rent is only approx. PLN 300 (includes water, sewage, and garbage collection).
I cordially invite you to view the property.
Ogólne informacje
| Rodzaj | Na sprzedaż |
|---|---|
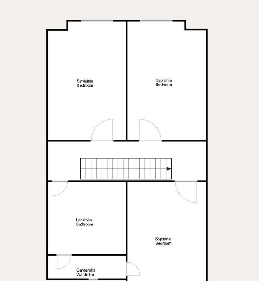
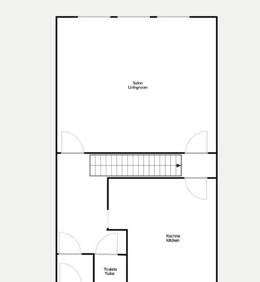
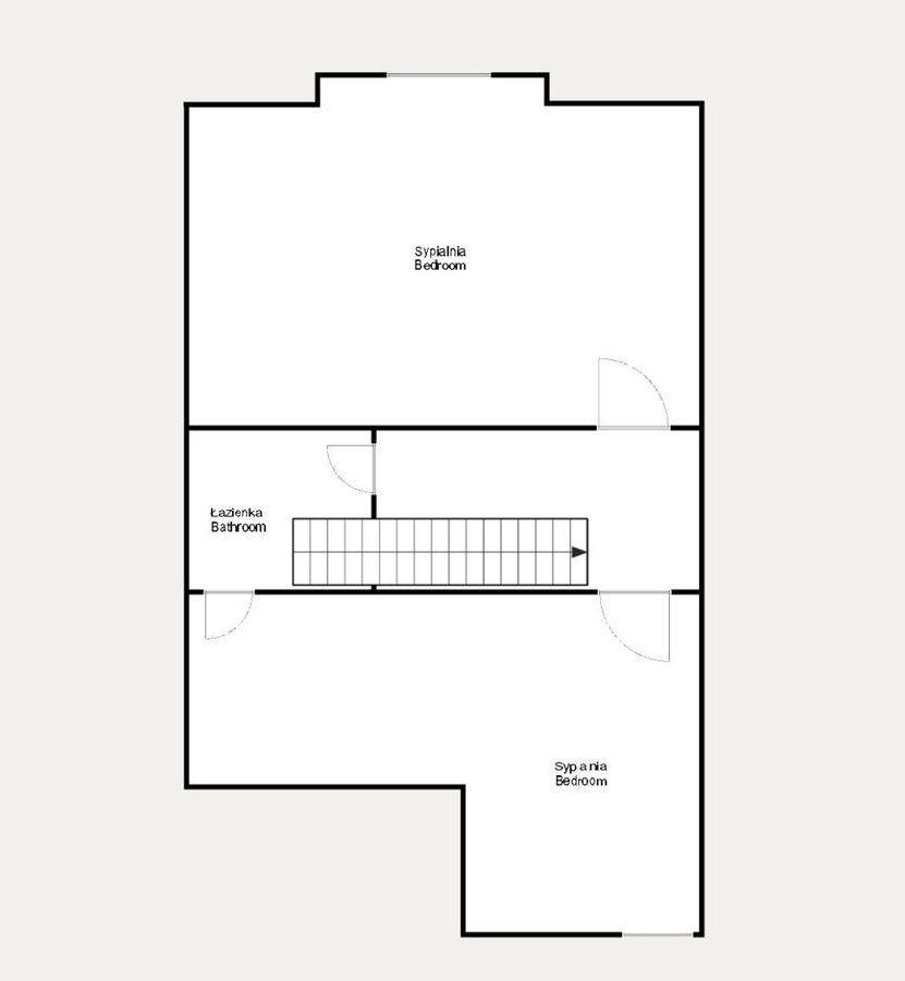
| Powierzchnia użytkowa | 231.48 m² |
| Liczba pokoi | 6 |




