Gotowe przestronne trzypokojowe mieszkanie
Śląskie
Opis
Zapraszamy do zapoznania się z ofertą nowej inwestycji składającej się z dwóch budynków, w których łącznie znajduje się osiem mieszkań. Do mieszkań na parterze przynależne są ogródki, w mieszkaniach na piętrze dwa duże balkony.
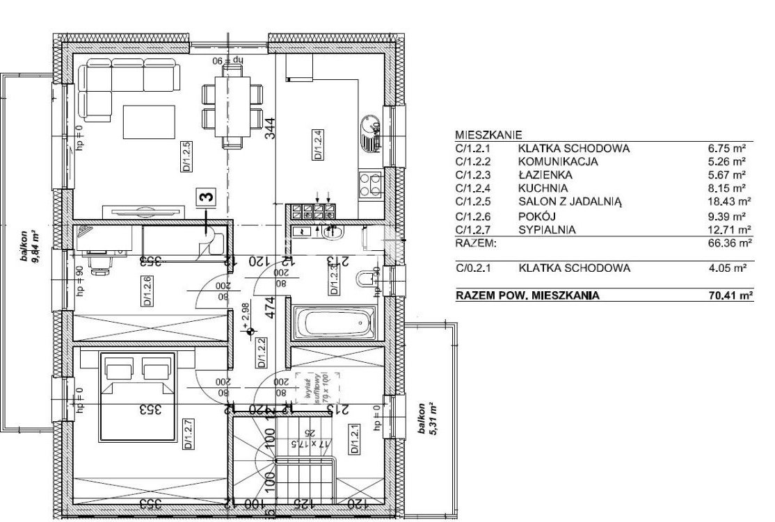
Apartament na piętrze składa się z salonu z jadalnią, kuchni, 2 pokoi, łazienki, komunikacji oraz klatki schodowej o powierzchni użytkowej 70,41m2. Do lokalu przynależą dwa duże balkony, oraz strych.
Miejsce parkingowe dodatkowo płatne 20 000zł
Rozkład pomieszczeń:
- salon z jadalnią 18,43m2
- kuchnia 8,15m2
- pokój 9,39m2
- pokój 12,71m2
- łazienka 5,67m2
- komunikacja 5,26m2
- klatka schodowa 6,75m2
- klatka schodowa parter 4,05m2
Standard wykończenia budynku:
- pustak ceramiczny porotherm
- okna plastikowe 3 szybowe, sześciokomorowe firmy aluplast
- dach pokryty dachówką betonową BRASS
- w lokalach mieszkalnych tynki gipsowe
- we wszystkich pomieszczeniach ogrzewanie podłogowe
- rolety zewnętrzne na wszystkich oknach
- pompa ciepła firmy Panasonic
- przygotowana instalacja pod fotowoltaikę
- ocieplenie styropianem 20cm
- światłowód w budynku
Zalety Inwestycji:
- atrakcyjna lokalizacja
- funkcjonalny układ mieszkań
- dwa duże balkony
- strych
Kupujący nie ponosi kosztów podatku PCC
Jeśli zainteresowała Cię ta oferta to zapraszamy do kontaktu i na prezentację.
Bierzemy odpowiedzialność za bezpieczeństwo transakcji, doradzamy, pomagamy w załatwianiu wszelkich formalności z zakupem nieruchomości. Skontaktujemy Państwa z ekspertem finansowym, który pomoże wybrać najkorzystniejszy kredyt hipoteczny.
Powyższy opis nie stanowi oferty handlowej w rozumieniu art. 66 Kodeksu Cywilnego, a dane w nim zawarte mają charakter informacyjny.
Ogólne informacje
| Rodzaj | Na sprzedaż |
|---|---|
| Powierzchnia użytkowa | 71 m² |
| Piętro | 1 |
| Liczba pokoi | 3 |




