Gotowy 3-pak z atrakcyjną stopą zwrotu
Kraków, Małopolskie
Opis
Na sprzedaż niecodzienne mieszkanie w apartamentowcu przy ul. Wrocławskiej, Kraków
Cena: 1,99 mln zł
Na sprzedaż przestronne mieszkanie o unikalnym układzie, zlokalizowane w nowoczesnym apartamentowcu przy ul. Wrocławskiej w Krakowie. Idealna propozycja zarówno dla inwestora, jak i osób poszukujących wygodnego, dużego mieszkania z możliwością uzyskania niezależnych przestrzeni.
Opis nieruchomości:
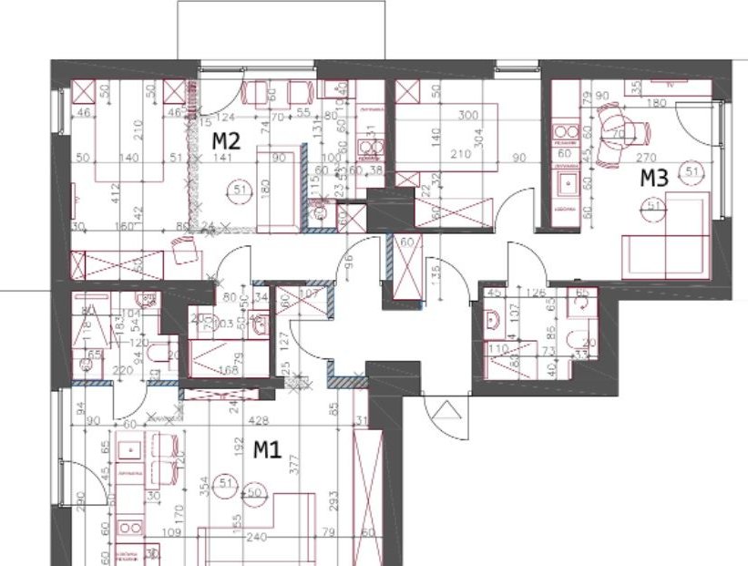
Mieszkanie zostało funkcjonalnie podzielone na trzy niezależne mieszkania, wszystkie są aktualnie wynajęte. Każde z nich posiada:
własną kuchnię,
łazienkę,
osobny balkon,
osobne wejście z korytarza.
Taki układ daje przyszłemu właścicielowi ogromne możliwości – od wynajmu każdego mieszkania oddzielnie po przekształcenie całości w jedno duże mieszkanie, co można zrobić bardzo łatwo i cieszyć się ogromną przestrzenią
Główne atuty:
Lokalizacja:
Mieszkanie znajduje się w jednej z najlepiej skomunikowanych części Krakowa, przy ulicy Wrocławskiej, co stanowi doskonałe połączenie bliskości centrum z kameralnym charakterem okolicy.
Główne zalety lokalizacji:
Bliskość centrum Krakowa: Apartamentowiec przy ul. Wrocławskiej położony jest zaledwie kilka minut od Rynku Głównego, co daje możliwość korzystania z wszystkich atrakcji turystycznych, restauracji, kawiarni, kin, teatrów i instytucji kulturalnych, które oferuje miasto.
Świetne połączenia komunikacyjne: W pobliżu znajduje się wiele przystanków komunikacji miejskiej, które zapewniają szybki i wygodny dojazd do różnych części Krakowa. Linie tramwajowe i autobusowe kursują często, a bliskość głównych tras pozwala na łatwy wyjazd poza miasto.
Infrastruktura handlowo-usługowa: W okolicy znajdują się liczne sklepy spożywcze, apteki, drogerie, siłownie, kluby fitness, a także centra handlowe i lokalne targi. Wszystko, czego potrzebujesz na co dzień, jest w zasięgu spaceru lub krótkiej jazdy samochodem.
Bliskość uczelni i miejsc pracy: To idealne miejsce dla studentów i młodych profesjonalistów. W pobliżu znajdują się znane krakowskie uczelnie, takie jak Uniwersytet Jagielloński czy Akademia Górniczo-Hutnicza, a także liczne biurowce i siedziby firm, co jest wygodne dla osób pracujących w centrum biznesowym.
Zielone tereny i miejsca rekreacyjne: Pomimo bliskości centrum, okolica oferuje liczne parki i zielone tereny, gdzie można odpocząć, spędzić czas z rodziną czy uprawiać sport. W pobliżu znajdują się Park Kleparski oraz bulwary nad Wisłą, które oferują malownicze ścieżki spacerowe i rowerowe.
Bezpieczeństwo i komfort: Ul. Wrocławska to spokojna okolica, która łączy zalety dużego miasta z komfortem mieszkania w dobrze zorganizowanej i bezpiecznej przestrzeni. Apartamentowiec jest nowoczesny i zadbany.
Inwestycja: Możliwość wynajmu trzech niezależnych lokali generujących przychód, co pozwala na maksymalizację stopy zwrotu i stanowi atrakcyjną lokatę kapitału.
Elastyczność: Dzięki możliwości łatwego połączenia, mieszkanie można dostosować do własnych potrzeb, przekształcając je w jedno przestronne mieszkanie rodzinne.
Dodatkowe informacje:
Powierzchnia całkowita: 94 m2.
Stan mieszkania: wysoki standard wykończenia.
Apartamentowiec.
Miejsce parkingowe w cenie
Zapraszam do kontaktu i umówienia się na prezentację!
Ogólne informacje
| Rodzaj | Na sprzedaż |
|---|---|
| Powierzchnia użytkowa | 94 m² |
| Piętro | 2 |
| Liczba pokoi | 5 |




