Gotowy dom wolnostojący 110m2
Małopolskie
Opis
ZAKUP OD DEWELOPERA - BEZ PROWIZJI - DOMY Z POZWOLENIEM NA UŻYTKOWANIE - MOŻLIWOŚĆ WYKOŃCZENIA POD KLUCZ
Zapraszam do zapoznania się z ofertą sprzedaży domów wolnostojących o powierzchni 110m2 (103m2 powierzchni użytkowej), na działkach 400-500m2. Zielona okolica, gwarantująca spokój od miejskiego zgiełku a jednocześnie bliskość miejskiej infrastruktury. Jesteśmy również zainteresowani zakuem działek budowlanych i mieszkań za gotówkę w Krakowie lub okolicy.
◆ Wysoki standard wykończenia
◆ Duże przeszklenia, bardzo dobrze doświetlony dom
◆ W bliskim sąsiedztwie sklep, szkoła, przedszkole, przystanek
◆ W niedalekiej odległości stacja powstaje Stacja PKP, dojazd do Krakowa Głównego w zaledwie 20min
◆ Ogrzewanie podłogowe w całym domu
◆ Miejsce na wiatę
◆ Światłowód
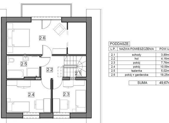
ZESTAWIENIE POMIESZCZEŃ:
PARTER
Hol 4,42
Pomieszczenie gospodarcze 2,85
Łazienka 3,12
Kuchnia 9,58
Salon 32,66
PIĘTRO
Schody 3,89
Hol 4,16
Pokój 7,76
Pokój 10,59
Łazienka 5,02
Pokój 18,25
+ strych
STANDARD DEWELOPERSKI:
budynek wykonany technologią tradycyjną: Pustak ceramiczny 25 cm + Pustak ceramiczny 11,5 cm
• elewacja: ocieplenie - styropian 20 cm + tynk akrylowy
• fundamenty betonowe z hydroizolacją i ociepleniem 15 cm
• pokrycie: dachówka ceramiczna, okna dachowe FAKRO, rynny PCV Gamrat
• podbitka dachu drewniana
• kominy systemowe + przygotowany dopływ powietrza oraz odprowadzenie spalin z kominka.
• okna plastik trzyszybowe: Złoty Dąb/białe
• drzwi wejściowe ocieplane Złoty Dąb
• podłogi: wylewki i izolacje
• ściany: tynki maszynowo-gipsowe
• poddasze ocieplone: wełna 30 cm Isover + system suchej zabudowy
• zamontowane schody strychowe Fakro
• barierki ocynk + malowanie
• parapety wewnętrzne: aglomarmur
• przyłącz prądu, wody, kanalizacji i gazu wraz z wykonanymi instalacjami w budynku
• wykonana instalacja antenowa
• kocioł dwufunkcyjny: ogrzewanie + ciepła woda użytkowa
• ogrzewanie podłogowe
• zamontowany zestaw podtynkowy GEBERIT
• instalacja alarmowa z czujkami i centralą
• budynek w trakcie budowy, oddany do użytkowania 3Q 2025
• bez drzwi wewnętrznych, podłóg, szpachlowania, malowania, białego montażu
• podjazd do budynku wyłożony kostką brukową
• działka ogrodzona systemem panelowym 3D w kolorze czarnym
• brama wjazdowa i furtka
• taras z pięknym widokiem
• teren wokół budynku wstępnie uporządkowany i zniwelowany
Po więcej informacji zapraszam do kontaktu pod numerem: 886*356*622
Ogólne informacje
| Rodzaj | Na sprzedaż |
|---|---|
| Powierzchnia użytkowa | 100 m² |
| Liczba pokoi | 4 |




