Inwestycyja przy Polu Mokotowskim - Batorego 33
Warszawa, Mazowieckie
Opis
Szukasz bezpiecznej lokaty kapitału w jednej z najbardziej pożądanych lokalizacji w Warszawie?
Lokalizacja, która wygrywa wszystko. Mieszkanie znajduje się przy ul. Batorego 33, w samym sercu warszawskiego Mokotowa, tuż przy granicy ze Śródmieściem. To adres, który studenci i młodzi profesjonaliści wybierają najchętniej.
Edukacja pod ręką: Dosłownie kilka minut spacerem dzieli Cię od SGH (Szkoła Główna Handlowa) oraz gmachów Politechniki Warszawskiej.
Zielone płuca stolicy: Widok z balkonu rozpościera się na panoramę miasta i okolice Pola Mokotowskiego – idealnego miejsca na relaks, jogging czy wyjście ze znajomymi.
Komunikacja: Doskonały dostęp do metra (stacja Pole Mokotowskie), tramwajów i autobusów. Do ścisłego centrum dotrzesz w mniej niż 10 minut.
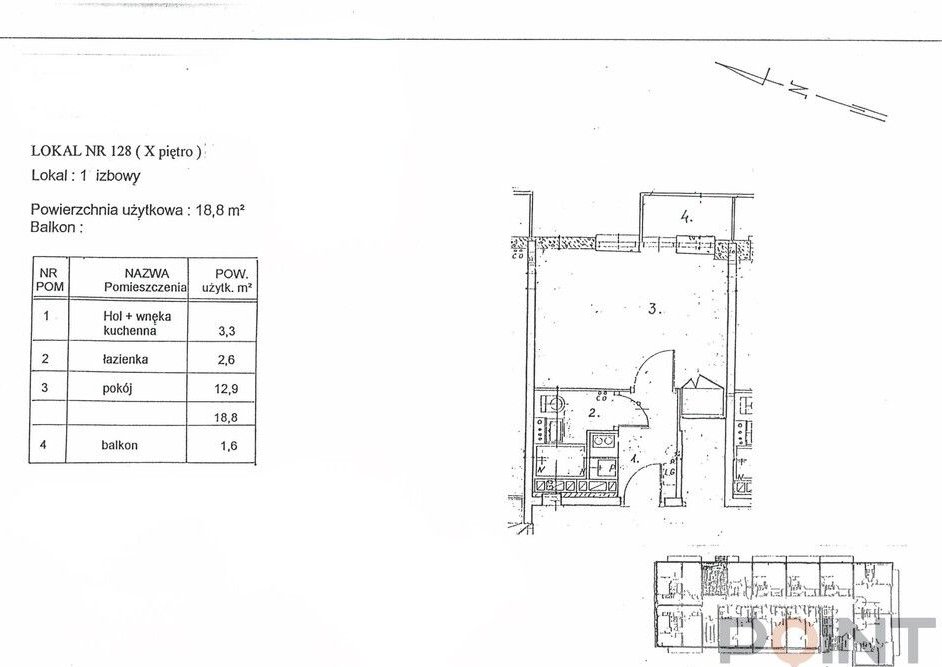
Lokal o powierzchni 18,8 m² to klasyczna, funkcjonalna przestrzeń do własnej aranżacji.
Potencjał: Mieszkanie wymaga generalnego remontu, co pozwala na wykończenie go w standardzie premium, co znacznie podniesie stopę zwrotu z wynajmu.
Rozkład: Ustawny pokój z zachowanym, klasycznym parkietem w jodełkę, oddzielna wnęka kuchenna, łazienka oraz to co jest rzadkością przy tym metrażu czyli balkon z imponującym widokiem.
Piętro i budynek: Budynek z 1970 roku, wyposażony w nowoczesne windy. Czyste klatki schodowe i zadbane otoczenie.
Atuty inwestycyjne i stan prawnyPełna własność z Księgą Wieczystą – możliwość posiłkowania się kredytem.
Czynsz: około 450 zł.
Target: Idealne pod wynajem długoterminowy dla studenta.
Dlaczego warto? To nie tylko nieruchomość, to bezpieczny aktyw. Ceny mieszkań w tej okolicy, ze względu na bliskość uczelni i parku, stabilnie rosną. Kupujesz lokalizację, której nie da się podrobić.
Zapraszam na prezentację, chętnie pokaże mieszkanie!
Rafał Szulc
516 916 731
Oferta wysłana z programu dla biur nieruchomości ASARI CRM ()
Ogólne informacje
| Rodzaj | Na sprzedaż |
|---|---|
| Powierzchnia użytkowa | 19 m² |
| Piętro | 10 |
| Liczba pokoi | 1 |




