Jednorodzinny dom w stanie surowym otwartym
Śląskie
Opis
Oferujemy na sprzedaż wolnostojący dom jednorodzinny w stanie surowym otwartym o projektowanej powierzchni użytkowej wynoszącej 528,56 m2.
Budynek położony jest w Będzinie, ul. Poprzeczna.
Budynek mieszkalny jednorodzinny, 2-kondygnacyjny, niepodpiwniczony, wzniesiony na działce o powierzchni 2708,00 m2. Działka ma kształt prostokąta, występuje spadek terenu z kierunku południowego na północ, wzdłuż dłuższego boku działki. Przeznaczenie terenu oznaczone jest jako "B" - tereny mieszkaniowe. Garaż czterostanowiskowy w obrębie bryły budynku. Wejście do domu od strony północnej, zlokalizowane w środkowej części budynku. Wjazd do garażu od strony zachodniej.
Powierzchnia działki: 2708,00 m2, w tym:
- Pow. zabudowy: 530,35 m2
- Pow. utwardzona: 570,90 m2
- Pow. biologiczna czynna: 1606,75 m2
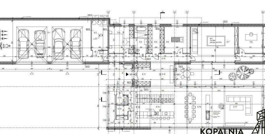
W skład budynku wchodzi (wg projektu):
Parter (408.13 m2) (h: 410 cm):
- Garaż (103,01 m2)
- Kotłownia (11,58 m2)
- Sypialnia (15,69 m2)
- Łazienka (8,14 m2)
- Garderoba (9,91 m2)
- Siłownia (16,35 m2)
- Pokój (39,46 m2)
- Biuro (15,36 m2)
- Komunikacja (5,00 m2)
- Komunikacja (15,16 m2)
- Wiatrołap (8,04 m2)
- Strefa Wejściowa (14,52 m2)
- WC (2,25 m2)
- Spiżarnia (2,64 m2)
- Klatka ze schodami (55,31 m2)
- Jadalnia (31,33 m2)
- Salon (54,38 m2)
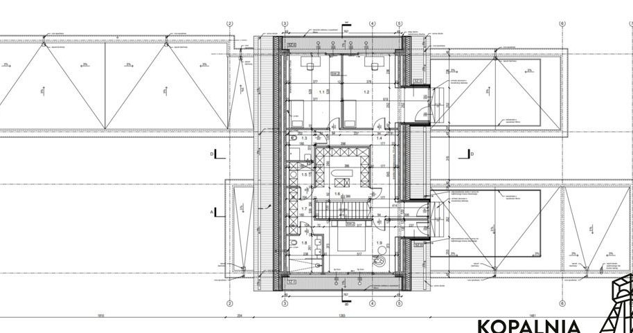
Piętro (120.43 m2)- poddasze użytkowe:
- Pokój (18,63 m2)
- Pokój (25,36 m2)
- Łazienka (3,47 m2)
- Komunikacja (22,52 m2)
- Pralnia (2,72 m2)
- Garderoba (14,71 m2)
- Garderoba (5,23 m2)
- Łazienka (5,58 m2)
- Sypialnia (22,21 m2),
- Przedpokój (6,53 m2).
/poglądowy plan budynku zamieszczony w ofercie/
Informacje techniczne:
- Budynek ma bezpośredni dostęp do drogi publicznej ul. Poprzeczna.
- Należy zainstalować dwie duże pompy ciepła.
- Dach dwuspadowy, symetryczny, o nachyleniu połaci wynoszącej 45°.
- System ukrytych rynien.
- Na stropach nad parterem zaprojektowano tarasy z roślinnością ekstensywną.
- Jest gaz doprowadzony na działkę.
- Projektowana przydomowa oczyszczalnia ścieków 10m3 oraz zbiornik na wodę deszczowa 10m3.
Dostępne media: woda, prąd, gaz.
Treść niniejszego ogłoszenia nie stanowi oferty handlowej w rozumieniu przepisów Kodeksu Cywilnego i informacje w nim zawarte mogą ulec zmianie.
Pośrednik odpowiedzialny zawodowo za wykonanie umowy pośrednictwa: Weronika Chrobok (licencja nr: 15939)
Oferta wysłana z programu dla biur nieruchomości ASARI CRM ()
Ogólne informacje
| Rodzaj | Na sprzedaż |
|---|---|
| Powierzchnia użytkowa | 528.56 m² |
| Liczba pokoi | 8 |




