Kalinówka - bliźniak 146 m2, 6 pokoi
Lubelskie
Opis
NOWA INWESTYCJA W KALINÓWCE - BLIŹNIAKI PRZY UL. CHMIELNEJ
TERMIN ZAKOŃCZENIA BUDOWY: III KWARTAŁ 2026
*** Kontakt: 535 991 113 ***
*** BIURO SPRZEDAŻY DEWELOPERA ***
*** BEZ PCC ***
Deweloper: FLJ KONSTRUKCJE spółka z o.o.
Biuro sprzedaży: Biuro Dewelopera BIG CITY BROKER
Link do strony Dewelopera:
FUNKCJONALNY DOM Z DODATKOWYM POKOJEM NA PARTERZE
Prezentowany dom to kolejny etap znanej i lubianej inwestycji Villa Laura zlokalizowanej w podlubelskiej Kalinówce przy ulicy Chmielnej.
Kompleks domów w zabudowie jedno i dwurodzinnej z dobrym połączeniem komunikacyjnym i bliskością Lublina i Świdnika przy jednoczesnym sąsiedztwie terenów zielonych to idealny wybór dla Rodzin.
**** OPIS NIERUCHOMOŚCI ****
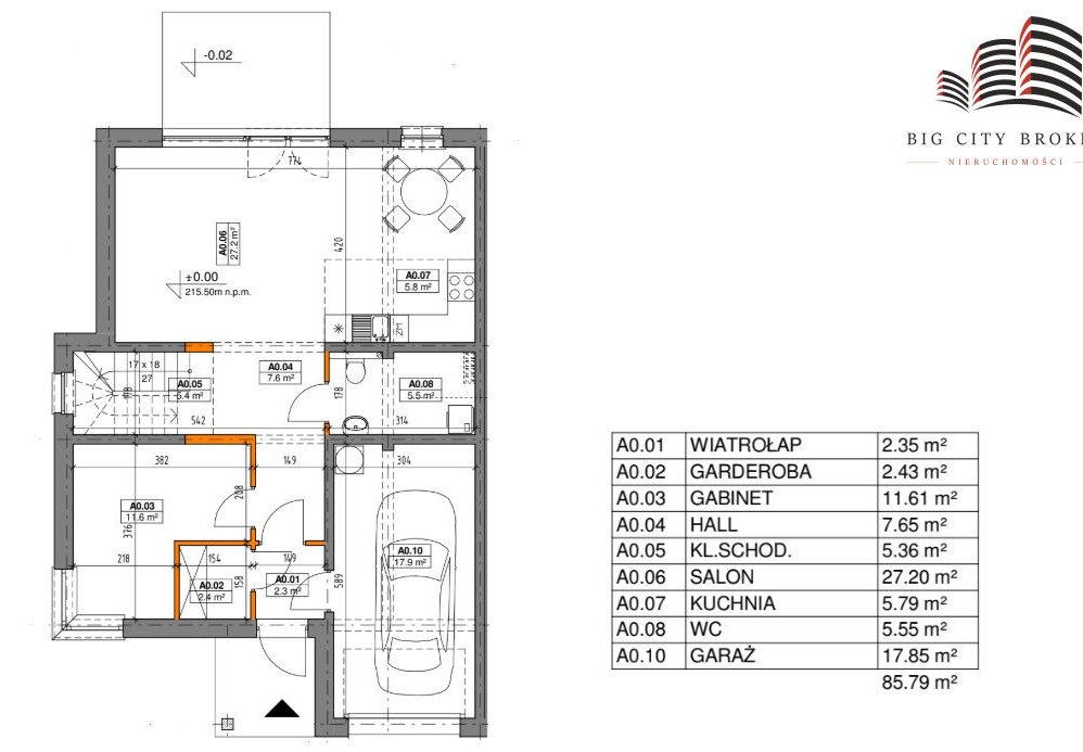
Powierzchnia domu: 145,79 m2, w tym garaż 18 m2
Powierzchnia działki: ok. 456 m2
Dom o nowoczesnym układzie, składający się z 2 poziomów:
Parter:
- salon z kuchnią
- gabinet/pokój gościnny
- hol
- wiatrołap
- łazienka
- garderoba
- garaż
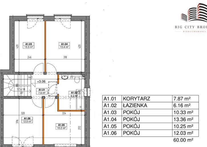
Piętro:
- 4 przestronne pokoje
- łazienka
- komunikacja
**** FUNKCJONALNY PROJEKT ****
- przestronna przestrzeń dzienna
- 4/5 sypialni
- garaż w bryle budynku
- niskie koszty utrzymania
- pompa ciepła
- ogrzewanie podłogowe w całym domu
**** DOSKONAŁA LOKALIZACJA ****
Bliźniak przy ulicy Chmielnej w Kalinówce to połączenie atutów posiadania własnego domu z prywatnym ogródkiem oraz udogodnień lokalizacji na nowoczesnym osiedlu w bliskim sąsiedztwie Świdnika i Lublina.
- niespełna 10 km do Centrum Lublina,
- blisko Świdnika
- ok 2 km do szkoły podstawowej i przedszkola
- kilka minut autem do węzła obwodnicy
- liczne ścieżki rowerowe i spacerowe
**** MEDIA ****
- prąd
- wodociąg
- przydomowa oczyszczalnia
- światłowód
Dom przy ul. Chmielnej w Kalinówce to doskonały wybór dla Rodzin szukających wymarzonego domu w korzystnej cenie.
Zapraszamy do kontaktu po szczegółowe informacje i spotkania na miejscu inwestycji.
Treści zawarte na stronie służą wyłącznie celom informacyjnym i nie stanowią oferty handlowej w rozumieniu art. 66, ust. 1 Kodeksu Cywilnego.
Przedstawione wizualizacje mają charakter poglądowy. Wygląd budynków oraz zagospodarowanie terenu mogą ulec zmianie na etapie realizacji inwestycji.
Ogólne informacje
| Rodzaj | Na sprzedaż |
|---|---|
| Powierzchnia użytkowa | 145.79 m² |
| Liczba pokoi | 6 |




