klasyczna rezydencja | unikatowy ogród | łomianki
Mazowieckie
Opis
NIERUCHOMOŚĆ:
Rezydencja o powierzchni użytkowej 463m2, zaś powierzchni całkowitej 605,2m2 (dom: 463m2, garaż wraz z mieszkaniem nad nim: 142m2) położona na działce o powierzchni 1751m2 w Dąbrowie Leśnej (Łomianki).
Parter stanowi część reprezentacyjną rezydencji - znajdziemy tu przestronny salon połączony z jadalnią z wyjściem na taras i do ogrodu, kuchnię ze spiżarnią, gabinet połączony z łazienką, a także toaletę dla gości i garderobę na odzież wierzchnią.
Pierwsze piętro to prywatna strefa dla mieszkańców - znajdziemy tutaj 2 sypialnie połączone z łazienkami oraz garderobami, 3 dodatkowe pokoje oraz łazienkę dostępną z korytarza. Z dwóch sypialni wyjście na przestronny balkon z widokiem na pięknie zagospodarowany ogród (ekspozycja północno-zachodnia).
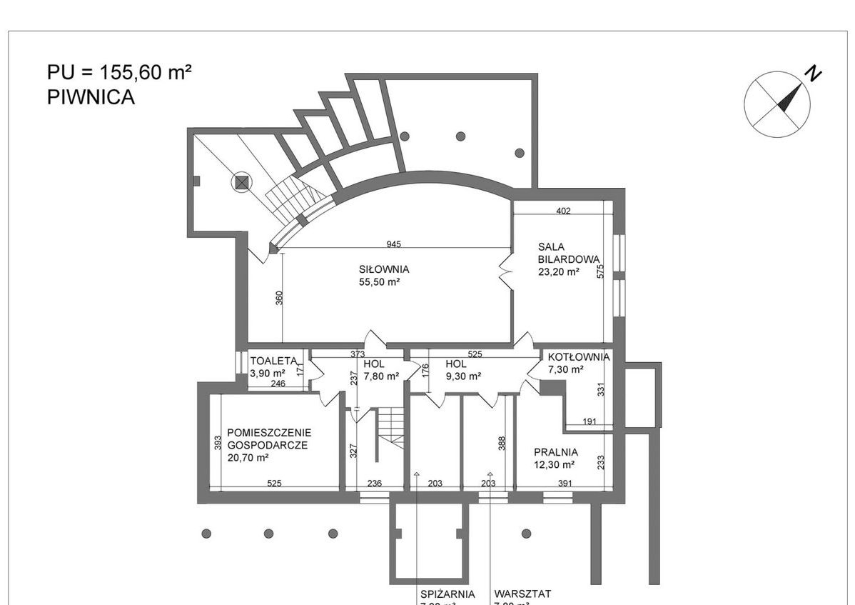
W piwnicy mamy dodatkową przestrzeń - największą jej część stanowi siłownia oraz sala bilardowa, do dyspozycji jest również dodatkowy pokój, który można zaaranżować np. na saunę lub pokój telewizyjny. Na tym poziomie znajdziemy również dodatkową spiżarnię, pomieszczenie warsztatowe, toaletę, pralnię oraz kotłownię.
W bryle budynku na poziomie parteru garaż na 3 auta, przy którym znajdują się dodatkowe 2 pomieszczenia gospodarcze. Nad garażem zostało zaaranżowane dodatkowe mieszkanie, które składa się z salonu, osobnej kuchni, sypialni z garderobą, a także łazienki.
STANDARD WYKOŃCZENIA:
Dom został wykończony w bardzo wysokim standardzie, z dbałością o najmniejszy szczegół. Wysokość pomieszczeń oraz okna z widokiem na otaczającą zieleń dają poczucie przestrzeni i podkreślają niepowtarzalny klimat miejsca. W kuchni zastosowano sprzęt w zabudowie renomowanych firm, w łazienkach natomiast użyto eleganckiej armatury. Na podłodze piękna deska. W domu ogrzewanie podłogowe, w ogrodzie system automatycznego podlewania.
OKOLICA:
Dąbrowa Leśna to jedna z najbardziej prestiżowych części Łomianek - została założona w latach 20. XX wieku jako osiedle podmiejskie nawiązujące do idei miasta-ogrodu. Niska, willowa zabudowa oraz bliskość Kampinoskiego Parku Narodowego z licznymi ścieżkami spacerowymi i rowerowymi sprawiają, że wciąż jest to jedna z najbardziej pożądanych lokalizacji. Do centrum handlowego Auchan Łomianki dojedziemy autem w 5 minut, do centrum Warszawy w około 25 minut.
=====
Jako agencja nieruchomości pobieramy wynagrodzenie.
Przedstawiona wyżej propozycja nie jest ofertą handlową w rozumieniu przepisów prawa.
W przypadku zgłoszenia telefonicznego lub wiadomości, przetwarzamy dane osobowe zgodnie z RODO w celu przedstawienia oferty.
PROPERTY:
A residence with an usable area of 463m2, full area 605,2m2 (house: 463m2, garage with apartment above: 142m2) residence located on a 1751m2 plot in Dąbrowa Leśna, Łomianki.
The ground floor serves as the representative part of the residence - featuring a spacious living room connected to a dining area with access to a terrace and garden, a kitchen with a pantry, a study connected to a bathroom, as well as a guest toilet and a cloakroom.
The first floor comprises the private area for residents - including 2 bedrooms each with an ensuite bathroom and wardrobe, 3 additional rooms, and a bathroom accessible from the hallway. Two of the bedrooms have access to a spacious balcony overlooking the beautifully landscaped garden (north-west exposure).
In the basement, there is additional space - the largest part includes a gym and a billiards room, with an additional room that could be arranged as a sauna or a TV room. This level also features an additional pantry, a workshop, a toilet, a laundry room, and a boiler room.
Within the building structure, on the ground floor level, there is a garage for 3 cars, with an additional 2 utility rooms adjacent to it. Above the garage, there is an additional apartment comprising a living room, separate kitchen, bedroom with a wardrobe, and a bathroom.
FINISHING STANDARD:
The house has been finished to a very high standard, with attention to every detail. High ceilings and windows overlooking the greenery provide a sense of space and highlight the unique atmosphere of the place. The kitchen features built-in appliances from renowned brands, while the bathrooms are equipped with elegant fixtures. Beautiful hardwood floors throughout the house, underfloor heating, and an automatic irrigation system in the garden and rainwater tanks are also included.
NEIGHBOURHOOD:
Dąbrowa Leśna is one of the most prestigious parts of Łomianki, established in the 1920s as a suburban settlement inspired by the idea of a garden city. Its low-density, villa-style buildings and proximity to Kampinos National Park with numerous walking and cycling paths make it one of the most desirable locations. Auchan Łomianki shopping center is a 5-minute drive away, and Warsaw city center can be reached in approximately 25 minutes by car.
=====
As a real estate agency, we charge a commission.
The above proposal is not a commercial offer within the meaning of the law.
In the case of contact via telephone or message, we process personal data in accordance with the GDPR in order to present an offer.
Ogólne informacje
| Rodzaj | Na sprzedaż |
|---|---|
| Powierzchnia użytkowa | 605.20 m² |
| Liczba pokoi | 9 |




