Kocmyrzów- ładne płaskie działki, blisko centrum
Małopolskie
Opis
NOWA INWESTYCJA W KOCMYRZOWIE! PRZY ULICY WIDOKOWEJ.
Oferta bez prowizji od kupującego i bez PCC!
Jeśli cisza i spokój mają dla Ciebie znaczenie, ale równocześnie chcesz być blisko centrum ta oferta spełni Twoje oczekiwania.
Inwestycja jest zlokalizowana przy ulicy Widokowej w Kocmyrzowie.
Do centrum miejscowości, gdzie znajduje się wszelka niezbędna infrastruktura Urząd Gminy, Poczta, przychodnia zdrowia, szkoła podstawowa, centra handlowe, bazar, apteki, skład budowlany, laboratoria itp jest około 1,3 km. Do stacji PKP (P&R) jest 6min (3,5km), Kocmyrzów jest też bardzo dobrze skomunikowany z Krakowem (10 linii autobusowych) oraz wewnętrzne linie gminne.
Do najbliższego przedszkola jest 350m, do przystanku autobusowego 300m.
Inwestycja obejmuje budowę 4 budynków jednorodzinnych, wolnostojących w pięknej, nowoczesnej bryle.
Powierzchnie działek od 550m2 (4a bez drogi) do 600m2 (4,5a bez drogi)
Inwestycja odznacza się bardzo przemyślanym zagospodarowaniem terenu.
Działki są prostokątne, dzięki temu ogród jest przestronny, a odległości między budynkami są duże - 24m długości!
Teren działki jest wysoko położony, działki są płaskie.
W bezpośrednim sąsiedztwie jest luźna zabudowa jednorodzinna i sporo terenów zielonych.
Budynki są parterowe z poddaszem użytkowym.
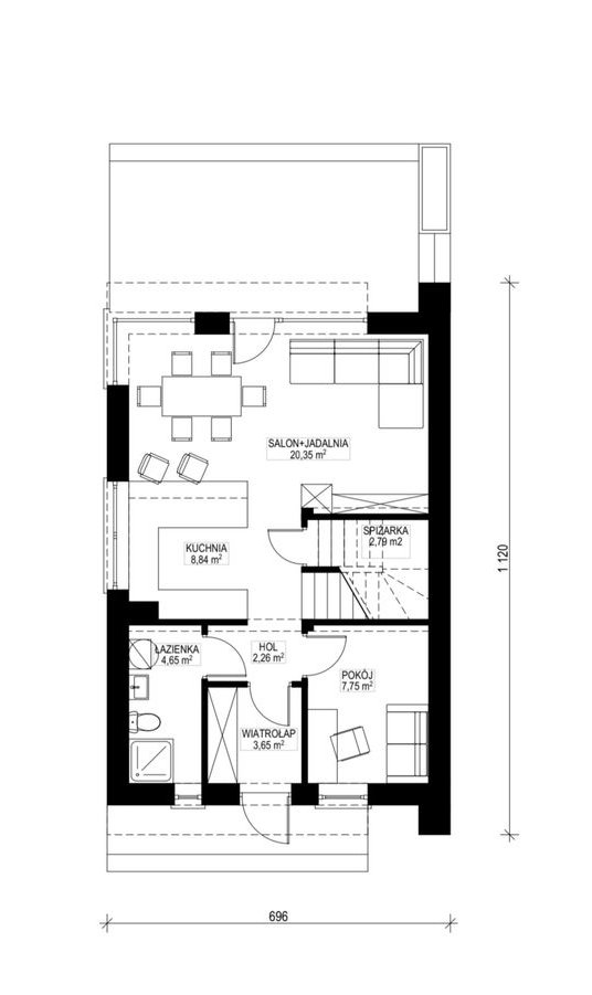
Budynek numer 1 i budynek numer 2 powierzchnia - 103m2.
Na parterze znajdują się salon z kuchnią o łącznej powierzchni 30m2 i pokój 7,7m2,
łazienka 4,5m2, wiatrołap 3,5m2 oraz hol- 2,5m2 i spiżarnia ok 4m2.
Poddasze 3 pokoje (10,5m2, 11,5m2 i 9,5m2), łazienka 8m2 i pomieszczenie gospodarcze 2,5m2.
Ścianka kolankowa na poddaszu jest wysoka -160cm, dzięki temu pokoje są większe i przestrzeń można lepiej i łatwiej zagospodarować.
Powierzchnia całkowita budynku numer 1 i 2 - 148m2
Budynki 3 i 4 są nieco większe o powierzchni 114m2.
Na parterze znajdują się salon z kuchnią o łącznej powierzchni 33m2 i pokój niecałe 8,9 m2,
łazienka 5,25 m2, wiatrołap 4,5 m2 oraz hol- 2,5m2 i spiżarnia ok 4m2.
Poddasze 3 pokoje (9,7m2, 10,45m2 i 13m2), łazienka 6,8m2 i pomieszczenie gospodarcze 3,7m2.
Ścianka kolankowa na poddaszu 160 cm.
Powierzchnia całkowita budynku numer 3 i 4 - 162m2.
Domy są oferowane w stanie surowym otwartym. Budynek jest wybudowany z porothermu, fundamenty i strop są żelbetonowe, dachówka jest ceramiczna firmy Roben (Bergamo).
Przyłącz wody został wykonany, przyłącz prądu będzie wykonany na początku roku, gaz w II połowie przyszłego roku.
Aktualnie ukończone są budynki:
budynek nr 1 - 103m2 na działce 4,5 ara z możliwością wjazdu zarówno z drogi wewnętrznej, jak i z drogi gminnej, asfaltowej- cena 665.000zł
budynek nr 2 - 103m2 na działce 4 arowej - cena 645.000zł
budynek nr 3 - 114m2 na działce 4arowej - cena 665.000zł
budynek nr 4 -114m2 na działce 4arowej - cena 665.000zł
Zapraszam na prezentację nieruchomości.
Powyższy opis nie stanowi oferty w rozumieniu przepisów K.C., ma charakter wyłącznie informacyjny.
Ogólne informacje
| Rodzaj | Na sprzedaż |
|---|---|
| Powierzchnia użytkowa | 148 m² |
| Liczba pokoi | 4 |




