Komfortia IV | mieszkanie 3-pok. | 13-2
Wielkopolska
Opis
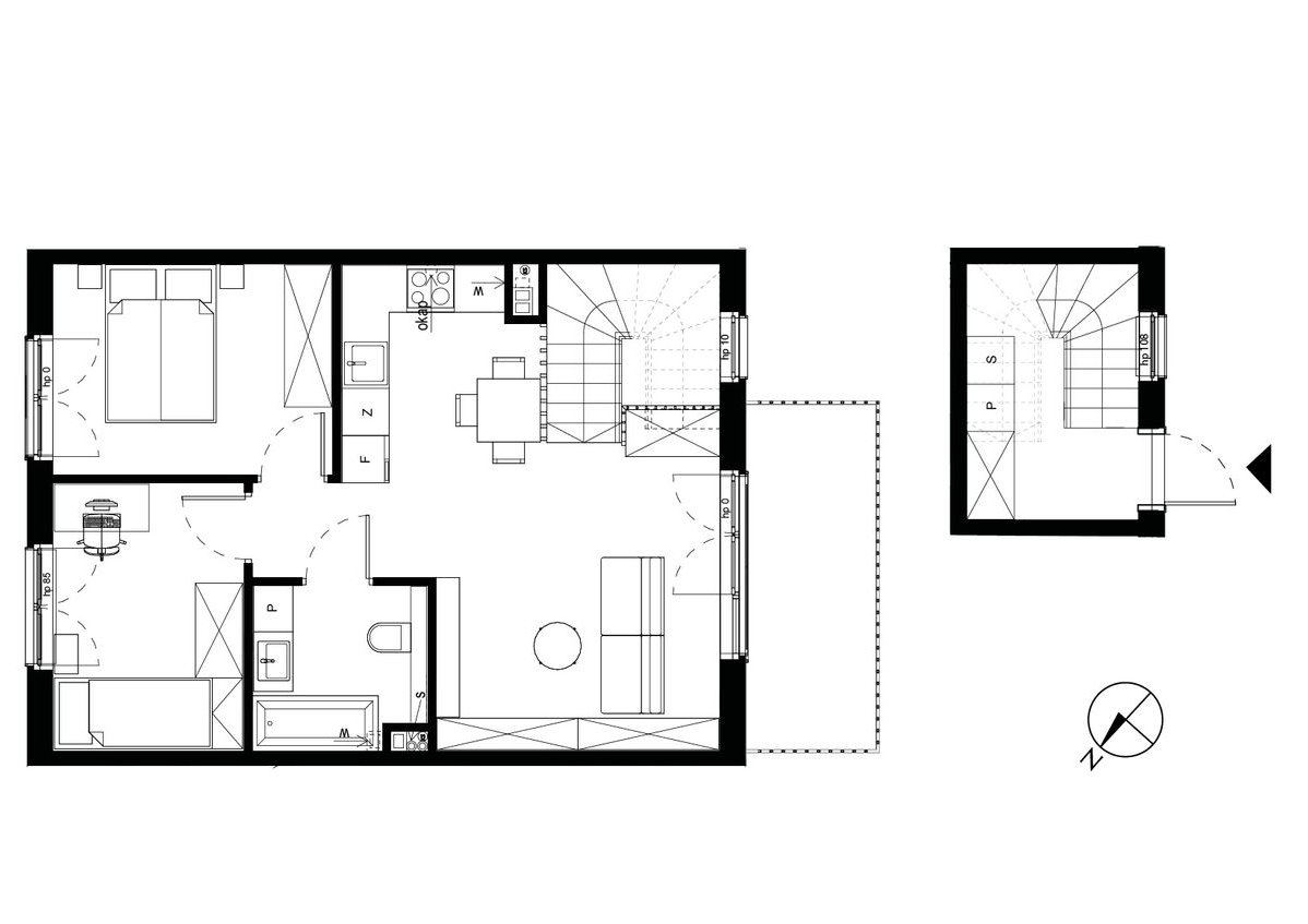
3-pokojowe mieszkanie numer 13_2 na 1. piętrze w budynku 11-15 w Inwestycji Osiedle Komfortia IV Dewelopera Twoje M
Park w Dąbrówce (6 minut samochodem)
Przystanek autobusowy (6 minut spacerem)
Dino (10 minut spacerem), Biedronka, Lidl, Netto (5 minut samochodem)
CH King Cross Marcelin (13 minut samochodem)
Przedszkole Publiczne "Diamentowa Kraina" (10 minut spacerem)
Szkoła Podstawowa nr 2 im. Ignacego Jana Paderewskiego w Skórzewie (6 minut spacerem)
Osiedle Komfortia IV - poznaj inwestycję
Cel jaki przyświeca nam od początku realizacji Komfortii to stworzenie mieszkań, w których niemal natychmiast czujemy się jak u siebie. Realizujemy go poprzez projektowanie otwartych przestrzeni - rozplanowanych w sposób przemyślany oraz gwarantujących wygodę i funkcjonalność na co dzień. Proponowane przez nas lokale są pełne światła, dzięki dużym i energooszczędnym oknom. Otaczająca budynek zieleń pozwala natomiast złapać oddech po ciężkim dniu. Z kolei dla zwolenników aktywnego spędzania wolnego czasu - do dyspozycji jest Orlik oraz trasy biegowe i rowerowe. Wszystko dla Twojej wygody i lepszego życia.
Zalety inwestycji
Przestronne i jasne pokoje dzienne
Zaplanowane miejsce na szafy
Duże ogrody | Przestronne balkony
Możliwość wyodrębnienia oddzielnej kuchni
Niektóre mieszkania posiadają okno w łazience
Przesuwne okna w salonach
Niektóre mieszkania posiadają doświetlenie z dwóch stron świata
Inspiracją do powstania osiedla Komfortia IV były potrzeby naszych klientów. Ustawne i przestronne mieszkania o optymalnym metrażu, poczucie komfortu i intymności oraz doskonała lokalizacja w dynamicznie rozwijającym się Skórzewie to główne atuty naszej inwestycji. Osiedle Komfortia IV to sześć powtarzalnych, dwukondygnacyjnych szeregów z mieszkaniami o powierzchni 41 mkw. lub 49 mkw. oraz z bliźniakami o metrażu 69 mkw. Mieszkania w bliźniakach to lokale czteropokojowe z ogrodami. Usytuowane są na szczytach szeregów, co zapewnia prywatność i poczucie komfortu. Mniejsze lokale usytuowane są wewnątrz szeregów. Do wyboru mamy parterowe mieszkania dwupokojowe z ogrodami oraz mieszkania trzypokojowe z balkonami. Oba typy lokali mają własne, niezależne wejścia. Do każdego lokalu obligatoryjny jest zakup miejsca postojowego (jednego lub dwóch). Tutaj każdy znajdzie coś dla siebie.
Osiedle umiejscowione jest przy ul. Chopina w Skórzewie.
Skórzewo to doskonałe miejsce do życia. Wygodny dojazd trasą S11 to dopiero początek zalet. Jeśli nie masz samochodu, możesz skorzystać z komunikacji miejskiej. W sąsiedztwie znajdują się szkoły, przedszkola i żłobki, liczne punkty handlowe i usługowe, restauracje, apteki, punkty opieki medycznej oraz Kościół.
Twórczość. Wartość. Otwartość. Jakość. Elegancja. Misja..., czyli Twoje M!
Działamy inaczej niż wszyscy. Projektując – szukamy ciekawych lokalizacji, gdzie tworzymy miejsca, w których żyje się po prostu lepiej. Współpracujemy z architektami, którzy podzielają nasze wartości – dbają jednocześnie o estetykę, jak i funkcjonalność projektowanych powierzchni. Naszą misją jest spełnianie Twoich Marzeń!
Osiedle Komfortia IV - lokalizacja
na zachód od Poznania, ul. Chopina, Skórzewo, gmina Dopiewo
2,1 km do granicy miasta
6 min. spacerem do przystanku autobusowego
dojazd do centrum: 18 min samochodem
Istotne punkty w okolicy inwestycjiPrzystanek autobusowy (433 m, 6 minut spacerem)
Przedszkole (713 m, 9 minut spacerem)
Szkoła Podstawowa (793 m, 10 minut spacerem)
Restauracja (792 m, 10 minut spacerem)
Ogólne informacje
| Rodzaj | Na sprzedaż |
|---|---|
| Powierzchnia użytkowa | 50.06 m² |
| Piętro | 1 |
| Liczba pokoi | 3 |




