Komfortowy Apartament z ogródkiem, wysoki standard
Śląskie
Opis
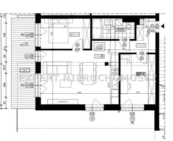
Prezentuję i polecam na sprzedaż przestronny i nowocześnie urządzony apartament o powierzchni 64 m2 zlokalizowany w spokojnej części Knurowa, pośród zabudowy jednorodzinnej.
Lokal mieszkalny usytuowany na parterze w dwupiętrowym nowoczesnym bloku z 2021 roku.
Do nieruchomości przynależy ogródek, oraz dwa wybrukowane miejsca parkingowe.
Mieszkanie doskonale rozplanowane i przestronne z ogromnymi oknami tarasowymi z wyjściem do prywatnego ogródka, czyni je doskonałą alternatywą dla domu jednorodzinnego.
Lokal składa się z:
- salonu z otwartą kuchnią w zabudowie wraz ze sprzętem AGD (lodówka dwudrzwiowa, piekarnik, płyta indukcyjna, okap, zmywarka) jadalnią i dwoma wyjściami do zagospodarowanego i ogrodzonego ogródka
- dwóch sypialni, w tym jedna również z wyjściem do ogródka i z ogromną szafą
- łazienki z wanno-prysznicem
- przestronnego przedpokoju z szafą w zabudowie.
Mieszkanie efektownie i nowocześnie urządzone, z zastosowaniem dobrej jakości materiałów, dzięki temu nie ponosisz dodatkowych nakładów i nie tracisz czasu na poszukiwanie ekip remontowych.
Podczas wykończenia wnętrz, zastosowano świetne rozwiązania zabudowy szaf ii licznych schowków, zachowując równocześnie przestrzeń do relaksu i swobodnego poruszania się.
Okna PCV, trzyszybowe, tarasowe, rolety zewnętrzne, klimatyzacja.
Niskie koszty utrzymania ok. 800 zł.w tym fundusz remontowy, opłata eksploatacyjna, 16 kubików wody, wywóz odpadów za 4 osoby, utrzymanie czystości klatki schodowej.
Ogrzewanie podłogowe i ciepła woda z kotła gazowego, klimatyzacja sterowane przez aplikację.
Budynek zlokalizowany w spokojnej części Knurowa, a zarazem w pobliżu centrum, szkoły, przystanków komunikacji miejskiej, sklepów, ścieżek rowerowych, terenów spacerowych, parków i lasów.
Mieszkanie godne polecenia!, wolne od zaraz!
Zadzwoń: 664 257 655, umów się na prezentację i przekonaj się osobiście o atutach tej nieruchomości. Nasz Doradca bezpłatnie zweryfikuje Twoją zdolność kredytową oraz pomoże w wyborze najkorzystniejszej oferty kredytu hipotecznego.
Ubezpieczamy każdą transakcję, pomagamy w kompletowaniu niezbędnych dokumentów, oraz we wszelkich formalnościach na całym etapie transakcji.
Informacje o nieruchomości zostały sporządzone na podstawie oświadczeń i mogą ulec zmianie. Przedstawiona propozycja nie jest ofertą handlową w rozumieniu przepisów Art.66 par.1 Kodeksu Cywilnego, lecz ma charakter informacyjny.
Ogólne informacje
| Rodzaj | Na sprzedaż |
|---|---|
| Powierzchnia użytkowa | 63.80 m² |
| Liczba pokoi | 3 |




