Komfortowy dom w cichej okolicy / blisko miasta
Kujawsko-Pomorskie
Opis
Toporzysko - nowy dom - 10 km od Bydgoszczy - cicha i spokojna okolica
Mam przyjemność zaprezentować nieruchomość, którą Ty zamienisz w DOM.
Na razie to budynek w pięknej okolicy, na obrzeżu nowopowstającego osiedla, z widokiem na las. Działka to prawie 1000 m2, ale o jej koszenie nie trzeba się martwić, bo w komplecie każdy mieszkaniec otrzymuje robot koszący (bez obsługi, bez hałasu).
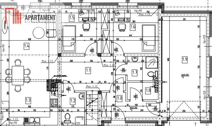
Wejście do domu prowadzi przez wiatrołap, gdzie wejdziemy także z ogrzewanego i doświetlonego garażu. Strefa dzienna z kominkiem to obszerny salon z jadalnią z wyjściem na taras oraz kuchnia. W sąsiedztwie kuchni spiżarnia.
Poza tym na parterze są dwie łazienki, z których jedna może pełnić funkcję pralni oraz dwie przestronne sypialnie.
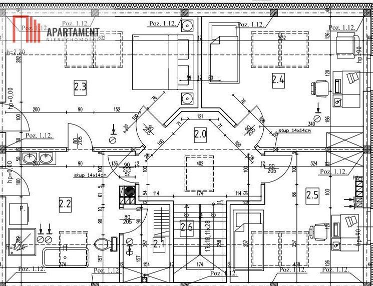
Efektowna klatka schodowa prowadzi na poddasze, gdzie znajdują się trzy sypialnie i pokój kąpielowy.
Czyste powietrze gwarantują pompy ciepła, zainstalowane w każdym domu na tym osiedlu.
Odległość do drogi DK 80 to około 1 km, do szkoły podstawowej ok 2,5 km.
Kupujący nie płaci prowizji ani podatku PCC.
Zapraszam
Mariusz
797 231 720
Kontaktując się z agentem odpowiedzialnym za ofertę, koniecznie zapytaj jakie są warunki współpracy z naszym biurem oraz co w związku ze współpracą zapewniamy.
Dbając o bezpieczeństwo klientów sprzedających, a często także na ich wyraźne życzenie, nie podajemy adresów nieruchomości bez podpisania uprzednio umowy o pośrednictwo w kupnie lub najmie.
Prowizja jest uzgadniania indywidualnie, na spotkaniu i zależy od zakresu wykonywanych obowiązków na rzecz klienta zamawiającego.
Wszelkie podane przez Biuro informacje nie są ofertą w rozumieniu Kodeksu Cywilnego.
Zgodnie z Ustawą z dnia 26 lipca 2024 r. o zmianie ustawy o prawie autorskim i prawach pokrewnych, ustawy o ochronie baz danych oraz ustawy o zbiorowym zarządzaniu prawami autorskimi i prawami pokrewnymi, wykorzystywanie autorskich pomysłów, rozwiązań, kopiowanie, rozpowszechnianie zdjęć, fragmentów grafiki, tekstów opisów w celach zarobkowych, bez zezwolenia autora jest zabronione i stanowi naruszenie praw autorskich oraz podlega karze. Znaki towarowe i graficzne są własnością firmy Nieruchomości Apartament.
Ogólne informacje
| Rodzaj | Na sprzedaż |
|---|---|
| Powierzchnia użytkowa | 171.21 m² |
| Liczba pokoi | 6 |




