KOSZALIN-3POKOJE 54,4m2, OGRÓDEK +PIWNICA+PARKING
Koszalin, Zachodniopomorskie
Opis
Na sprzedaż komfortowe, w pełni umeblowane mieszkanie o powierzchni 54,4 m2, usytuowane na spokojnym, dobrze zagospodarowanym osiedlu. Lokal wyróżnia się funkcjonalnym układem oraz dostępem do prywatnego ogródka, co stanowi idealne połączenie mieszkania w bloku z komfortem domu.
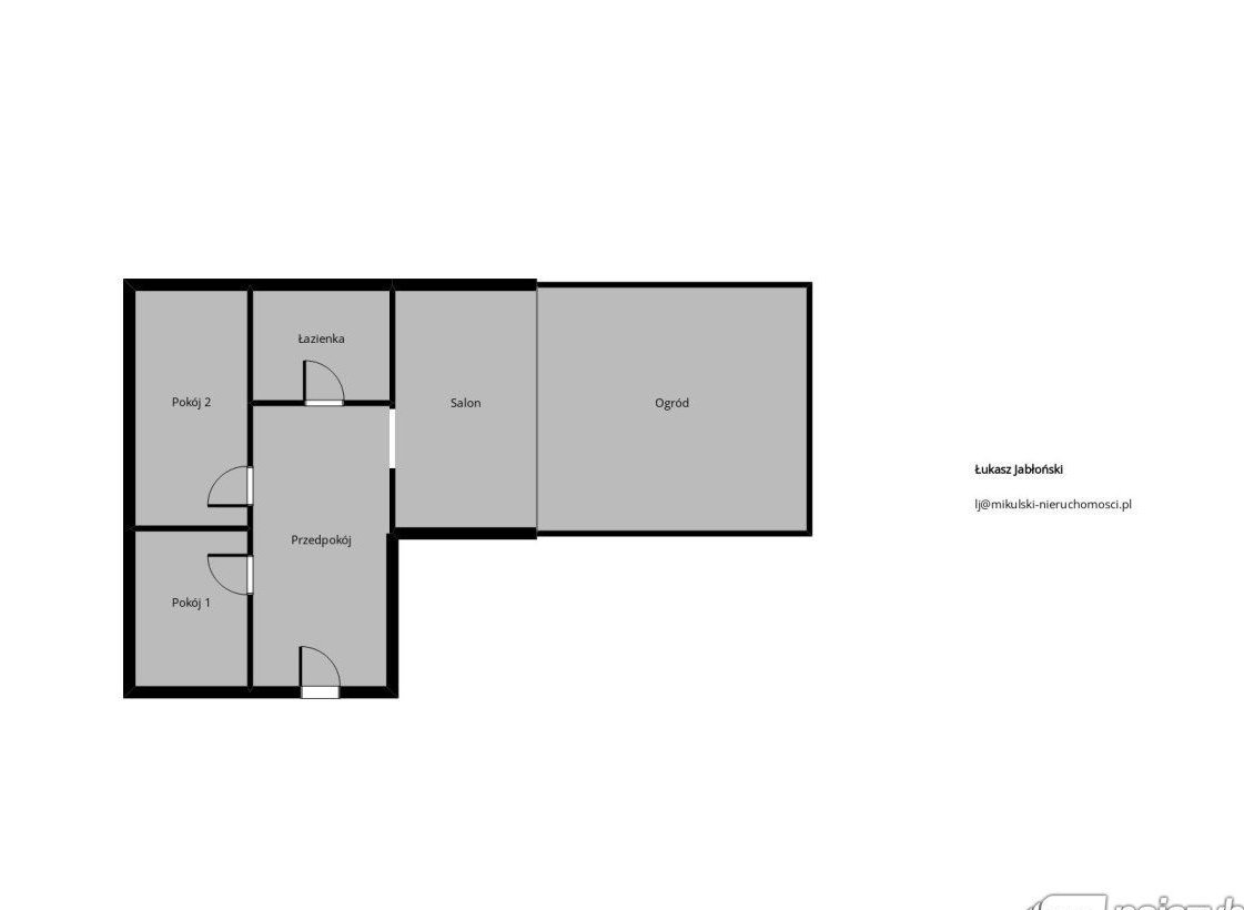
Rozkład pomieszczeń:
-salon z aneksem kuchennym
-2 niezależne sypialnie
-łazienka
-przedpokój
Mieszkanie jest dwustronne, jasne i bardzo ciepłe, co przekłada się na wysoki komfort użytkowania oraz niskie koszty eksploatacyjne (niskie opłaty + wysokie zwroty roczne).
Dodatkowe atuty:
-prywatny ogródek - idealny do wypoczynku, rekreacji lub dla dzieci i zwierząt
-piwnica (3,54 m2) w cenie mieszkania
-prywatne miejsce postojowe (dodatkowo płatne 15 000 zł)
-mieszkanie w pełni umeblowane i gotowe do zamieszkania
-nowoczesne wykończenie
Lokalizacja: Cicha i spokojna okolica, zapewniająca komfort codziennego życia, z jednoczesnym dostępem do niezbędnej infrastruktury.
Dlaczego warto:
-idealne dla rodziny, pary lub jako inwestycja
-połączenie funkcjonalności mieszkania z namiastką domu
-brak konieczności dodatkowych nakładów finansowych
Zapraszam do kontaktu w celu uzyskania szczegółowych informacji oraz umówienia prezentacji pod numerem 883 514 830.
"Opis nieruchomości zawarty w niniejszej ofercie został sporządzony na podstawie informacji przekazanych nam przez stronę sprzedającą. Zwracamy uwagę, że mogą one zawierać błędy lub nieścisłości. W przypadku zainteresowania ofertą zalecamy osobistą weryfikację tych informacji. Oferta ta nie stanowi oferty w rozumieniu przepisu art. 66 i nast. kodeksu cywilnego."
-
Mikulski Nieruchomości - licencjonowana sieć biur nieruchomości. Baza sprawdzonych nieruchomości. Nasza firma posiada 7 oddziałów. Pracujemy w systemach wymiany ofert z biurami nieruchomości na terenie całej Polski. Posiadamy polisę OC. Obsługujemy teren całego województwa zachodniopomorskiego. Nasz skład liczy blisko 40 osób.
Dobierzemy dla Państwa najtańszy kredyt na zakup każdej nieruchomości. Nie musisz kupować z nami nieruchomości, by otrzymać świetny kredyt! W ofercie mamy ponad 20 banków! Zadzwoń po kredyt hipoteczny już dziś: +48 790 588 531
CENTRALA FIRMY:
+48 530 855 003
Nasze oddziały:
Oddział GOLENIÓW
ul. M. Konopnickiej 76
72-100 Goleniów
Tel. +48 91 418 56 57
Oddział STARGARD
ul. Mikołaja Reja 8/1
73-110 Stargard
Tel. +48 91 577 07 57
Oddział NOWOGARD
ul. Bankowa 3B/1
72-200 Nowogard
Tel. +48 91 307 66 87
Oddział SZCZECIN
ul. Łaziebna 1, U1/1
70-557 Szczecin
Tel. +48 91 307 91 64
Oddział ŚWINOUJŚCIE
ul. Bolesława Chrobrego 5B
72-600 Świnoujście
Tel. +48 91 307 89 01
Oddział KOŁOBRZEG
ul. Mariacka 38/2
78-100 Kołobrzeg
Tel. +48 94 700 00 23
Zapraszamy do naszych oddziałów!
:: Oferta wysłana z programu mediaRent (media-rent.eu) ::
Ogólne informacje
| Rodzaj | Na sprzedaż |
|---|---|
| Powierzchnia użytkowa | 54.38 m² |
| Liczba pokoi | 3 |




