Koszalin, Jantarowa 4pok, parter, garaż, loggia
Koszalin, Zachodniopomorskie
Opis
**Na sprzedaż mieszkanie – spółdzielcze własnościowe**
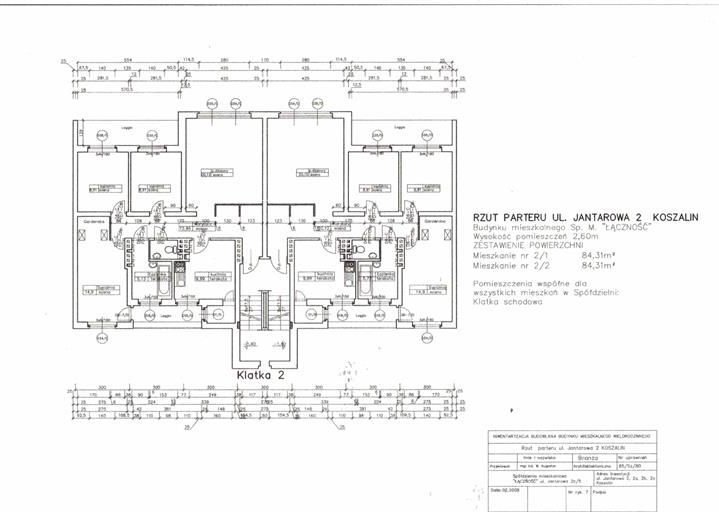
Lokalizacja: Koszalin, ul. Jantarowa (Os. Morskie)
Powierzchnia: 84,31 m² | wysoki parter | 4 pokoje
Budynek: blok 2-piętrowy z 1990 r. (cegła, murowany)
Cena: 597 000 zł
Informacje dodatkowe:
* Wszystkie media doprowadzone
* Okna drewniane nowego typu, podłogi – lakierowane deski sosnowe
* Duża łazienka z wanną oraz osobne WC
* Ogrzewanie gazowe – piec Immergas (przegląd 2025 r.)
W cenie:
* Kuchnia w zabudowie + AGD (zmywarka, zlewozmywak)
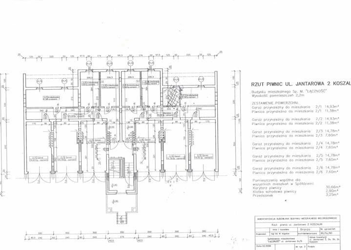
* Garaż o powierzchni 14,93 m² (z wodą i prądem)
* Piwnica: 10,40 m²
* Pomieszczenie użytkowo-mieszkalne do adaptacji na poddaszu: 16,92 m² w stanie surowym zamkniętym (doprowadzona woda i kanalizacja, niezależne opomiarowanie)
Dodatkowe udogodnienia:
* Dwie loggie
* Wejście z klatki schodowej
* Instalacje: telewizja kablowa
* Zabezpieczenia: domofon, drzwi z zamkiem Gerda
* Opłaty: około 607 zł miesięcznie od sierpnia 2025 r. (zarząd, fundusz remontowy, podatki, wody opadowe, śmieci)
Otoczenie:
* W pobliżu parki i tereny rekreacyjne
* Świetna lokalizacja – blisko szkół, przychodni i innych ważnych miejsc Zadzwoń lub napisz — sprawdź to mieszkanie na żywo!
nr. tel. (792 763 241)
Ogólne informacje
| Rodzaj | Na sprzedaż |
|---|---|
| Powierzchnia użytkowa | 84.31 m² |
| Liczba pokoi | 4 |




