ŁUPIŃSKI DEVELOPMENT dom wraz z działką bez *
Gorzów Wielkopolski, Lubuskie
Opis
ŁUPIŃSKI DEVELOPMENT
Zapraszamy do zapoznania się z ofertą gotowych domów. Wybudowaliśmy już domy dla ponad 400 szczęśliwych rodzin. Domy można w każdej chwili zobaczyć, czekają na Państwa!
LOKALIZACJA
Zamieszkaj z dala od miejskiego zgiełku w naszym nowoczesnym domu bliźniaku, położonym w niezwykle spokojnej i cichej okolicy. To idealne miejsce dla tych, którzy pragną harmonii i wytchnienia po intensywnym dniu.
Najważniejsze Atuty Naszych Inwestycji:
- Spokojna i Cicha Okolica:
Oferujemy domy położone z dala od miejskiego hałasu, w sąsiedztwie, gdzie cisza i spokój są na porządku dziennym. To miejsce stworzone dla tych, którzy cenią sobie atmosferę bezpieczeństwa i prywatności.
- Bliskość Lasów:
Odkryj urok natury, spacerując po pobliskich lasach. To doskonała okazja do relaksu i odprężenia się na łonie przyrody, bez konieczności oddalania się zbyt daleko od domu.
- Super Połączenie Komunikacyjne z Centrum Miasta:
Pomimo malowniczego otoczenia, nasze domy zapewniają szybkie i wygodne połączenie z centrum miasta. Dzięki temu, możesz cieszyć się spokojem na co dzień, nie rezygnując z dostępu do wszystkich udogodnień miejskiego życia.
GŁÓWNE CECHY:
Przestronne wnętrza, idealne dla rodzin.
Nowoczesny design z dbałością o detale.
Jasne i przestronne pokoje.
Funkcjonalne rozwiązania zapewniające wygodę codziennego życia.
MATERIAŁY i EKSPLOATACJA
Ogrzewanie gazowe piec z przyłączem do sieci,
Ocieplony strop,
Elewacja ocieplona styropianem 20cm o niskim współczynniku przenikania ciepła,
Zainstalowana nowoczesna wymiana powietrza – rekuperacja,
Okna trzyszybowe o niskim współczynniku przenikania ciepła,
W cenie taras z kostki polbrukowej,
Kanalizacja.
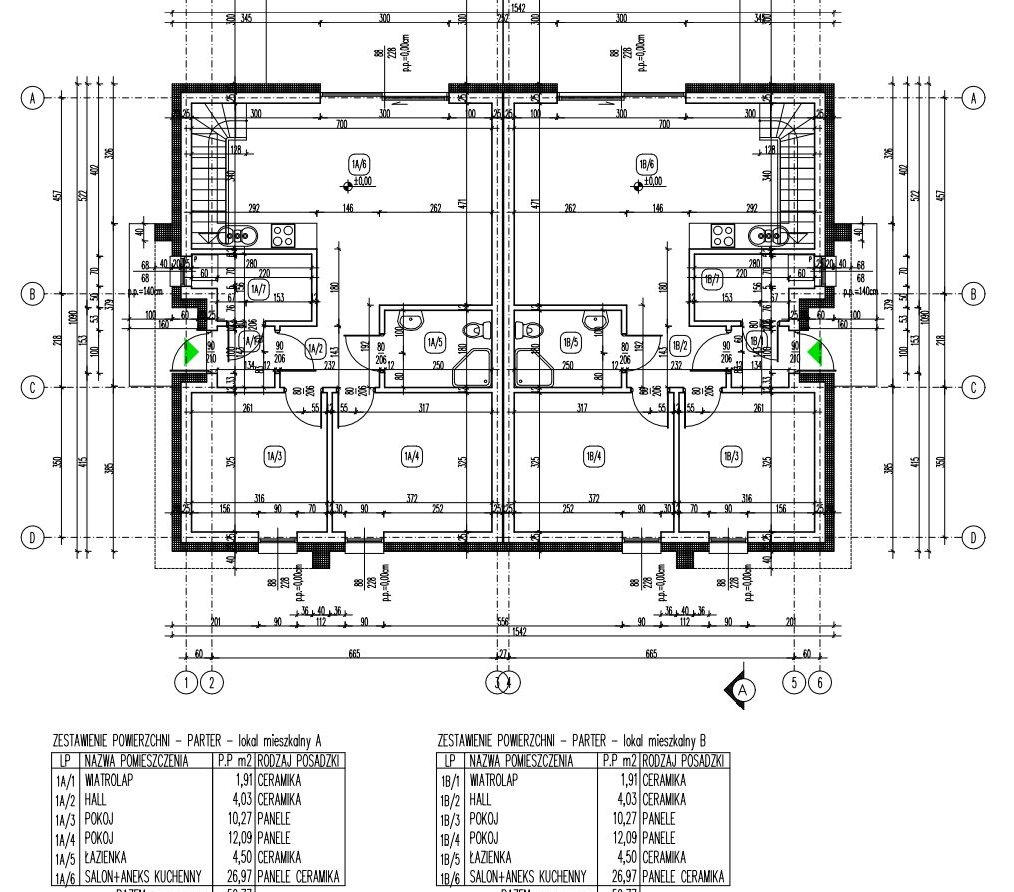
METRAŻ i POMIESZCZENIA
Dom o powierzchni 87,70m² (63,77m² na dole, 23,5m² u góry),
Dom na działce ok. 500m² w cenie domu,
Droga do budynków jest utwardzona.
Metraż pomieszczeń:
- wiatrołap 2.37m²
- hall 4,76m²
- (1) pokój 9,28m²
- (2) pokój 10,25m²
- łazienka 5,30m²
- salon + kuchnia 29,30m² (kuchnia 12,30m² + 17m²)
- kotłownia 2,51m²
- (3) pokój na piętrze 23,5m².
***************
PROPONUJEMY PAŃSTWU KILKA WARIANTÓW ZAKUPU DOMU WRAZ Z DZIAŁKĄ:
Istnieje możliwość wykończenia domu pod klucz
STAN SUROWY ZAMKNIĘTY
- fundamenty,
- wymurowane ściany zewnętrzne,
- wymurowane ścianki działowe,
- podłączona KANALIZACJA MIEJSKA, woda,
- prąd na granicy działki,
- dach,
- okna zewnętrzne pcv okna trzy szyby,
- drzwi zewnętrzne Gerda,
- podbitka (tynk mineralny biały),
- elewacja (tynk mineralny biały + styropian 20cm),
- rynny ocynk,
- parapety zewnętrzne, (kolorystyka dopasowana do koloru okien),
STAN DEWELOPERSKI 535.000 - cena z ogłoszenia
- wszystko jak w standardzie surowym otwartym i zamkniętym plus:
- instalacja elektryczna (zamontowane gniazdka, kontakty 60pkt.) po stronie klienta jedynie przepisanie licznika w ENEA,
- instalacja hydrauliczna ogrzewanie podłogowe, woda, kanalizacja,
- przyłącze gazu wraz z piecem, w momencie zakupu domu przez klienta należy przepisać jedynie licznik,
- woda podłączona do wodociągu miejskiego, w momencie zakupu domu przez klienta należy przepisać jedynie licznik,
- tynki wewnętrzne,
- posadzki,
- ocieplony strop, wełną 20cm,
- taras z kostki polbrukowej 12m²,
- rekuperacja,
W momencie sprzedaży klient otrzymuje zaświadczenie z urzędu Starostwa Powiatowego o braku sprzeciwu do zamieszkania.
KONTAKT
Zadzwoń dowiedz się więcej, konsultacja nic nie kosztuje. Umów się, przyjedź, zobacz – te domy stoją i czekają na Ciebie!
Pełna własność, bez czynszu, bez ukrytych kosztów, bez gwiazdek (*)
Opłaty miesięczne – 0zł (pełna własność) płacisz za tyle ile zużyjesz energii, wody itd.
Zamieszkaj w wymarzonym domu który jest w cenie mieszkania.
Cena za metr kwadratowy domu, jedna z najniższych w Polsce.
Oferta bezpośrednia, bez pośredników i dodatkowych opłat.
Budujemy od 18 lat.
KUPUJĄCY ZWOLNIONY Z PODATKU PCC 2% (oszczędzasz ok. 10000zł)
Niniejsze ogłoszenie jest wyłącznie informacją handlową i nie stanowi oferty w myśl art. 66, § 1. Kodeksu Cywilnego. Sprzedający nie odpowiada za ewentualne błędy lub nieaktualność ogłoszenia.
Ogólne informacje
| Rodzaj | Na sprzedaż |
|---|---|
| Powierzchnia użytkowa | 87.70 m² |
| Liczba pokoi | 4 |
Lokalizacja
Polecane lokalizacje
Nieruchomości na sprzedaż - Gorzów Wielkopolski
- Mieszkania na sprzedaż - Gorzów Wielkopolski
- Domy na sprzedaż - Gorzów Wielkopolski
- Działki na sprzedaż - Gorzów Wielkopolski
- Lokale użytkowe na sprzedaż - Gorzów Wielkopolski
- Biura na sprzedaż - Gorzów Wielkopolski
- Hale i magazyny na sprzedaż - Gorzów Wielkopolski
- Garaże na sprzedaż - Gorzów Wielkopolski




