Mieszkanie 2 sypialnie i salon z wyjściem na ogród Prochowice/Lisowice
Dolnośląskie
Opis
Poczuj się jak w domu!
MIESZKANIE Z WŁASNYM OGRODEM
Nowoczesny charakter, niebanalny wygląd, atrakcyjna lokalizacja - na sprzedaż ekologiczne i nowoczesne apartamenty usytuowane w budynkach 4 lokalowych.
Do każdego mieszkania przynależy ogród o powierzchni od 60m2, a także miejsce parkingowe.
Mieszkania dzięki przemyślanemu projektowi będą zapewniały komfort i prywatność.
Oferta dotyczy mieszkania:
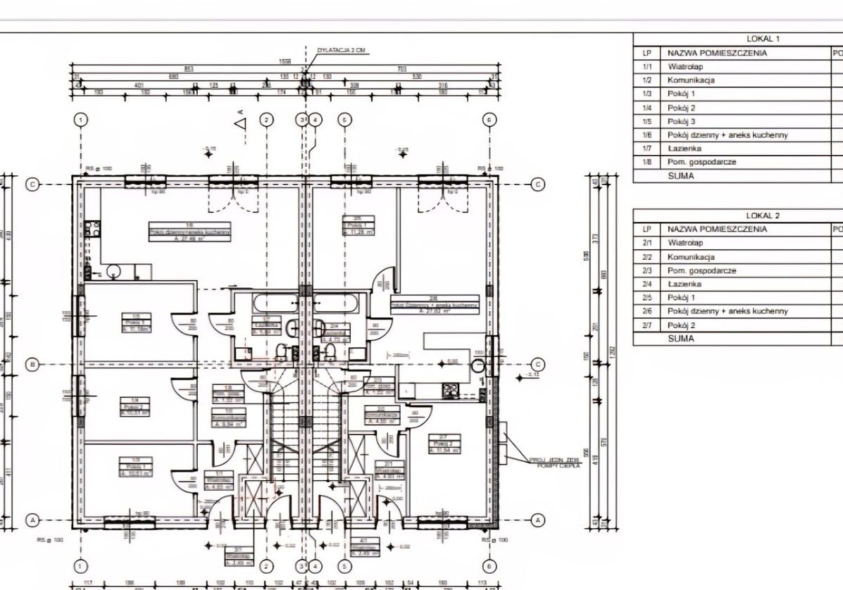
Lokal prawy PARTER o powierzchni 65,19m2 ( lokal 3d)
· Pokój 1 – 11, 28 m2
· Pokój 2 – 11,54 m2
· Salon + aneks kuchenny z wyjściem na ogród – 27,02 m2
· Łazienka – 4,70 m2
· Wiatrołap 1 ( wejście do mieszkania ) – 4,93 m2
· Pomieszczenie gospodarcze – 1,22 m2
· Komunikacja – 4.50 m2
Wolny również jest:
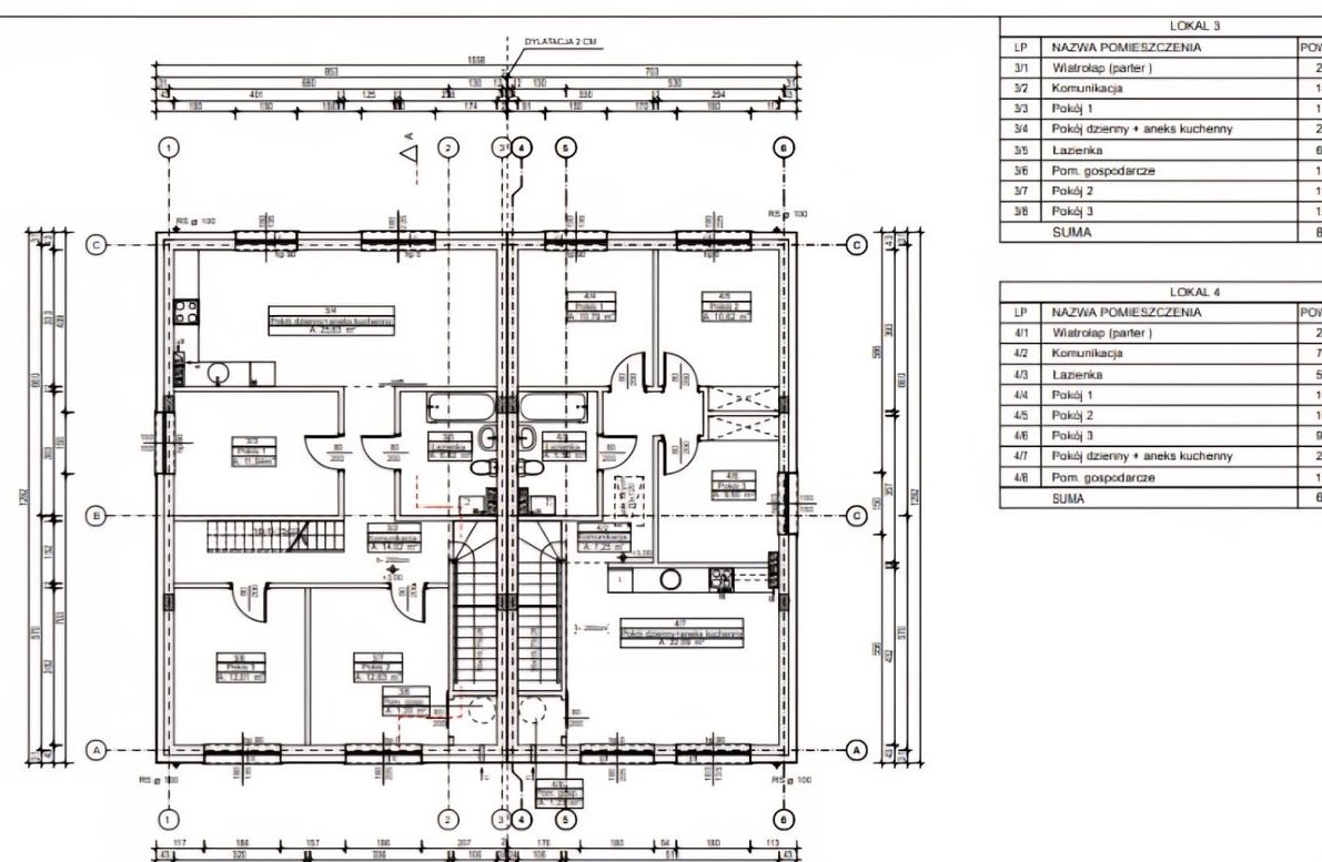
Lokal prawy PIĘTRO o powierzchni 69,56 m2 (lokal 3g)
· Pokój 1 – 10,79 m2
· Pokój 2 – 10,62 m2
· Pokój 3 – 9,50 m2
· Łazienka – 5,59 m2
· Salon + aneks kuchenny – 22,09 m2
· Pomieszczenie gospodarcze – 1,23 m2
· Komunikacja – 7,25 m2
· Wiatrołap na parterze -2,49 m2
· Możliwość adaptacji poddasza użytkowego we własnym zakresie.
Mieszkania wybudowane będą metodą tradycyjną z najwyższej jakości materiałów.
Zabudowa czterolokalowa gwarantuje niższy koszt eksploatacji mieszkania.
Zamknięte osiedle stworzy klimat niezakłóconego spokoju i bezpieczeństwa.
Nieruchomość sprzedawana jest w stanie deweloperskim , w cenie otrzymują Państwo :
· Rozprowadzone media po całym domu
· Ściany przygotowane pod gładź
· Podłogi przygotowane pod położenie paneli lub kafli
· Ogrzewanie podłogowe ( powietrzna pompa ciepła )
· Okna PCV 3 szybowe z roletami elektrycznymi
· Ceramiczne lub cementowe pokrycie dachowe
· Dom ocieplony styropianem 20cm grafit
· Możliwość modyfikacji ścianek działowych na etapie budowy
LOKALIZACJA:
Miejscowość: Lisowice koło Prochowic
Odległość do : Legnicy - 18 km, Lubina - 17 km, Wrocławia - 57 km
Spokojna i malownicza okolica, ścieżki rowerowe, lasy pełne grzybów
CHARAKTERYSTYKA MIESZKAŃ:
Mieszkania o różnych metrażach, dostosowane do różnych potrzeb
Każde mieszkanie posiada własny uroczy ogród, idealny na relaks, grillowanie i zabawę
Miejsce parkingowe do każdego lokalu
Nowoczesne pompy ciepła zapewniające efektywność energetyczną
Jasne i przestronne wnętrza
Wysokiej jakości materiały wykończeniowe
Przestronne pokoje z dużą ilością naturalnego światła
ZALETY NIERUCHOMOŚCI:
Spokojna i przyjazna okolica
Bliskość natury
Doskonała komunikacja z Legnicą i okolicznymi miastami
Własne ogrody, idealne dla miłośników przyrody i ogrodnictwa
Nowoczesne pompy ciepła, oszczędność energii i kosztów ogrzewania
1,2 km do żłobka, przedszkola, i szkoły podstawowej
650 m Market Dino
1,7 km Biedronka
Nie zwlekaj, dwa mieszkania są już zarezerwowane.
Zapraszam do kontaktu telefonicznego.
Ogólne informacje
| Rodzaj | Na sprzedaż |
|---|---|
| Powierzchnia użytkowa | 65.19 m² |
| Liczba pokoi | 3 |




