Mieszkanie 3 pokojowe z ogrodkiem
Szczecin, Zachodniopomorskie
Opis
Budowa rozpoczęta: Budowa rozpoczęta: stan zero rozpoczęty! Planowane zakończenie budowy maj 2026
Możliwość obejrzenia gotowych lokali z poprzednich etapów
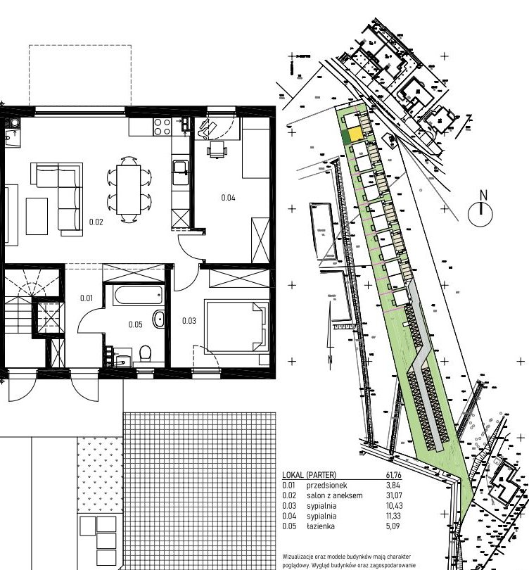
Przedmiot ogłoszenia to lokal położony na parterze o powierzchni 61,4m2. Do mieszkania przynależy również teren zielony (30-40m2), który jest oddalony od budynku około 50 metrów i znajduje się przy miejscach parkingowych.
W cenie 3 miejsca postojowe. Jeden znajdujący się bezpośrednio przy lokalu oraz 2 na parkingu głównym.
Bardzo istotną korzyścią jest fakt, że od strony południowo zachodniej (okna salonu i balkonu oraz sypialni) teren jest wyłączony z zabudowy i nigdy nie powstanie nic na sąsiedniej działce - widok nie zmieni się.
Świetna okolica - około 900m od Szczecińskiej Gubałówki, 1,5 km od nowej szkoły przy ul. Kredowej, 3,5 km od Jeziora Głębokiego.
Wydanie Grudzień 2025
GWARANCJA STAŁEJ CENY ZAWARTEJ W UMOWIE
Na powierzchnię 61,4m2 składają się:
-przedsionek 3,84
-salon z aneksem 31,7
-sypialnia 10,43
-sypialnia (2) 11,33
-łazienka 5,09
W 2025 rozpocznie się modernizacja drogi Andersena podczas której powstanie nowa nawierzchnia, oświetlenie, chodniki, ścieżka rowerowa oraz przystanki autobusowe.
MIESZKANIE WYDAWANE JEST W STANIE DEWELOPERSKIM
(Na zdjęciach widoczne przykładowe zagospodarowanie salonu połączonego z kuchnią oraz sypialnią).
*Cena dotyczy lokalu B1
(Możliwość obejrzenia gotowych lokali z poprzednich etapów.)
Ogólne informacje
| Rodzaj | Na sprzedaż |
|---|---|
| Powierzchnia użytkowa | 61.40 m² |
| Liczba pokoi | 3 |




