Mieszkanie 64m², garaż, komórka lokatorska w świetnej lokalizacji!
Wrocław, Dolnośląskie
Opis
Dzień dobry,
na sprzedaż oferujemy z żoną swoje 3-pokojowe mieszkanie z ogródkiem, miejscem postojowym w garażu podziemnym oraz komórką lokatorską w cenie!
Jest ono położone na spokojnym, rodzinnym osiedlu Nowe Miasto Różanka w północnej części Wrocławia.
Podstawowe informacje:
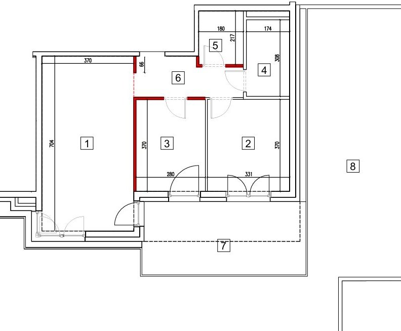
Powierzchnia: 64,17 m²
Liczba pokoi: 3
Piętro: parter (wraz z przyległym ogródkiem)
Rok budowy: 2019
Stan prawny: pełna własność
Dostępność: od zaraz
Możliwość zawarcia wcześniejszej umowy przedwstępnej
Dodatkowe informacje:
(1) przestronny salon z dużym aneksem kuchennym (25,76 m²) z wyjściem na ogród,
(2) i (3) dwie ustawne sypialnie (12,07 m² oraz 10,23 m²),
(4) komfortowa łazienka z dużym prysznicem,
(5) garderoba z możliwością przerobienia na dodatkową łazienkę, pralnię lub gabinet,
(6) przedpokój z dużą i dobrze zagospodarowaną szafą na wymiar,
(7) taras o powierzchni 20,36 m²,
(8) ogród o powierzchni 103,89 m².
Mieszkanie ma ekspozycję wschodnią oraz południową.
Standard wykończenia:
Lokal wykończony w wysokim standardzie, gotowy do zamieszkania bez jakichkolwiek nakładów finansowych:
kuchnia na wymiar z pełnym, energooszczędnym AGD, systemy Blum + cargo Blum,
zabudowy stolarskie na wymiar: kuchnia, przedpokój, łazienka,
armatura Grohe / Hansgrohe,
we wszystkich oknach rolety zewnętrzne elektryczne.
Parkowanie i dodatkowa przestrzeń:
miejsce postojowe w garażu podziemnym,
komórka lokatorska – 4,31 m²,
całość na jednej księdze wieczystej.
Budynek i osiedle:
nowoczesny budynek z windą,
budynek posiada system filtracji i zmiękczania wody,
monitoring wokół budynku i na całym osiedlu,
zadbane części wspólne,
rowerownia,
zewnętrzna siłownia, place zabaw i wielofunkcyjne boisko sportowe w bliskiej odległości,
osiedle bardzo ciche i spokojne,
przyjaźni sąsiedzi i pomocna grupa sąsiedzka w mediach społecznościowych.
W bezpośrednim sąsiedztwie: Aldi, Biedronka, Lidl, Żabki, Rossmann, apteki, przychodnia, a także żłobki, przedszkola i szkoły.
Jedna z najlepiej skomunikowanych części Wrocławia:
5 min pieszo do tramwaju,
5 min do autobusu,
szybki dojazd do centrum i innych części miasta,
szybki dojazd do węzła obwodnicy autostradowej A8 oraz S5,
ok. 20 min spacerem znajduje się Galeria Marino,
tereny spacerowe nad Odrą,
mimo bliskości głównych arterii – cisza i spokój na terenie osiedla.
Cena
980 000 zł – z ogródkiem, miejscem postojowym i komórką lokatorską w cenie!
Cena obejmuje całe wyposażenie w stałej zabudowie.
Czynsz: ok. 600 zł + prąd + zaliczka na wodę.
Mieszkanie zostało już opróżnione, w pełni odmalowane i przygotowane do zamieszkania – nie wymaga ŻADNEGO wkładu finansowego. Możliwość zamieszkania od zaraz.
Sprzedaż prywatna. Pośrednikom dziękuję.
Zapraszam do kontaktu – chętnie odpowiem na pytania i zaprezentuję mieszkanie.
Ogólne informacje
| Rodzaj | Na sprzedaż |
|---|---|
| Powierzchnia użytkowa | 64.17 m² |
| Liczba pokoi | 3 |




