Mieszkanie 78m2 w centrum Poznania z wyjściem do parku nad Wartą
Poznań, Wielkopolska
Opis
Kompleks Galileo:
Apartament w ścisłym centrum Poznania, w zamkniętym kompleksie Galileo z bezpośrednim wyjściem do parku nad Wartą. Wejście główne do budynku od strony ulicy Kazimierza Wielkiego prowadzi przez eleganckie lobby. W kompleksie znajduje się całodobowa ochrona, wewnętrzny, zielony dziedziniec z miejscami na rowery dla mieszkańców, ławkami i placem zabaw.
Opis mieszkania:
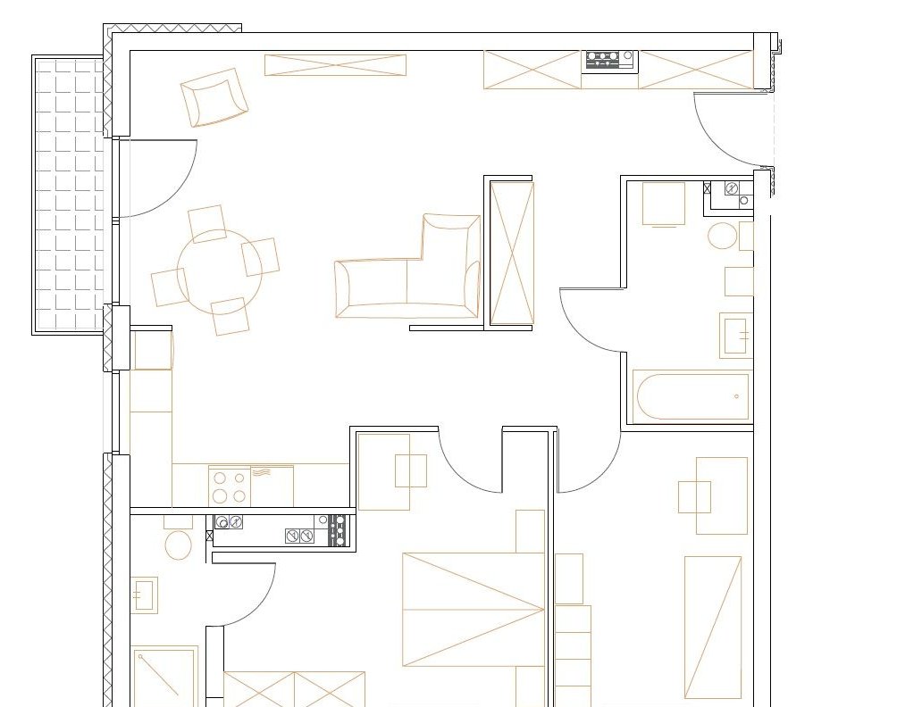
Mieszkanie ma 78.16m2 i usytuowane jest na pierwszym piętrze. Praktyczny i przemyślany układ prowadzi przez hol, zabudowany pojemnymi szafami zapewniającymi przestrzeń do przechowywania. Z holu przechodzimy do przestronnego i pełnego światła salonu.
Salon połączony jest z w pełni wyposażoną częścią kuchenną (m.in. lodówka Samsung Bespoke z możliwością wymiany frontu, piekarnik Electrolux z opcją sterowania za pomocą smartphone). W salonie nowa sofa (zakupiona pod koniec 2025 roku), drewniana komoda Miloo Home "Hamptons Long Island").
W głębi mieszkania znajdują się dwa osobne pokoje oraz dwie łazienki (jedna bezpośrednio przy sypialni głównej). Jeden z pokoi pełni aktualnie funkcję pokoju dziecięcego.
Mieszkanie jest w pełni umeblowane i gotowe do zamieszkania.
Lista pomieszczeń:
Hall - 13m2
Salon z kuchnią - 30m2
Sypialnia 1 - 15m2
Sypialnia 2 - 11m2
Łazienka 1 - 6m2
Łazienka 2 - 3m2
Balkon - 4m2
Dodatkowo, do mieszkania przynależy miejsce w podziemnej hali garażowej.
Niski czynsz administracyjny wynosi 1225 zł w tym zaliczki na ogrzewanie, wodę, śmieci, ochronę obiektu i utrzymanie miejsca parkingowego.
Koszty zakupu nieruchomości:
- cena mieszkania 1 130 000 zł
- dodatkowo miejsce postojowe w hali garażowej 60 000 zł
Sprzedaż bezpośrednio od właściciela
Ogólne informacje
| Rodzaj | Na sprzedaż |
|---|---|
| Powierzchnia użytkowa | 78.16 m² |
| Piętro | 1 |
| Liczba pokoi | 3 |




