Mieszkanie, do którego chce się wracać — Matejki przy Parku Wilsona
Poznań, Wielkopolska
Opis
Mieszkanie z duszą przy ul. Matejki – tam, gdzie Poznań opowiada swoją historię szeptem
Są adresy, które coś znaczą. I są takie, które się czuje.
Matejki to jedna z tych ulic, gdzie miasto zwalnia. Gdzie między odrestaurowanymi, przedwojennymi kamienicami — pieczołowicie odbudowanymi po wojnie — historia przeplata się z codziennością.
Zaledwie kilka kroków dzieli Cię od zielonego serca tej części miasta — Parku im. Park Wilsona — w którym można przysiąść obok popiersia samego Woodrow Wilson i na chwilę zapomnieć, że jesteśmy w centrum.
A jednak… to właśnie centrum.
Możesz też pójść w druga stronę i zajrzeć w ciągu 5 minut do Park Kasprowicza i Areny, czy butikowych restauracji i sklepów przy ul.Wojskowej w City Parku.
Mieszkanie, którego nie da się opisać — trzeba je poczuć
Ukryte w przejściu za klimatycznym patio, na 2. piętrze odrestaurowanej kamienicy.
Już sama droga do drzwi buduje nastrój. Po wejściu…dzieje się coś, czego nie oddadzą ani zdjęcia, ani słowa.
Ciepło. Spokój. Miękkie światło.
To przestrzeń, która nie udaje loftu. Nie próbuje być "instagramowa". Ona po prostu jest prawdziwa.
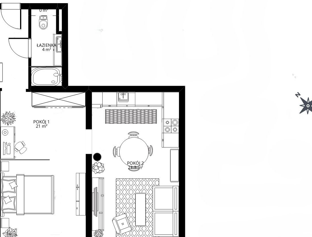
Wysokie stropy – 3,60 m i powierzchnia 50,4 m2:
wysokość 3,6m
pokój 1 (garderoba, biuro, sypialnia) 21m2
pokój 2 (kuchnia, jadalnia, strefa wypoczynku) 21m2
łazienka 4m2
korytarz 4,4m2
Dodatkowo do mieszkania przynależy jasna, sucha i wysoka piwnica – ok. 6m2.
Wnętrze, które otula
Już od progu widać, że to przestrzeń zaprojektowana nie pod trendy — ale pod codzienność.
Naturalne drewno na podłogach prowadzi przez całe mieszkanie, nadając mu ciepło i szlachetność. Jasna, stonowana paleta barw, miękkie tkaniny i subtelne oświetlenie budują atmosferę spokoju.
Salon płynnie łączy się z częścią jadalnianą i kuchnią, tworząc harmonijną, otwartą przestrzeń do życia — nie tylko do oglądania.
Kuchnia została zaprojektowana minimalistycznie, ale z charakterem:
naturalne fronty
otwarte półki
przemyślana ergonomia
To miejsce, w którym chce się gotować powoli.
Duże okna z południowo-zachodnią ekspozycją wpuszczają miękkie światło, które w ciągu dnia wędruje po drewnianej podłodze i ścianach, zmieniając nastrój wnętrza.
Strefa prywatna
Sypialnia zachowuje tę samą estetyczną ciszę.
Wysokie sufity i lekkie przeszklenie subtelnie wydzielają przestrzeń do pracy — tworząc naturalne miejsce na domowe biuro bez zabierania światła.
To rozwiązanie, które daje prywatność i oddech jednocześnie.
I najważniejsze…
Mimo położenia w sercu miasta — za oknem panuje cisza.
Tu nie słychać Poznania. Tu się od niego odpoczywa.
Styl?
Najbliżej mu do współczesnej interpretacji stylu japandi:
prostota, naturalność, światło i funkcja.
Nie dominuje — pozwala odpocząć.
To wnętrze nie krzyczy designem.
Ono buduje nastrój.
Generalny remont
Mieszkanie zostało kompleksowo odnowione:
nowe instalacje wodno-kanalizacyjne
nowa instalacja elektryczna
nowe ogrzewanie – panele na podczerwień - nowoczesne i ekonomiczne
nowe ściany i sufity,
cyklinowanie i lakierowanie oryginalnej drewnianej podłogi
zamontowanie nowych drzwi wejściowych i łazienkowych;
drzwi
sprzęt AGD
starannie dobrane wyposażenie i dodatki
Wysokie stropy nadają przestrzeni oddechu, a okna od strony południowo-zachodniej wypełniają wnętrze naturalnym światłem przez cały dzień.
Kamienica z charakterem
Wejście zarówno od ul. Matejki, jak i od strony podwórza.
domofon
monitoring
bezpieczna i zadbana przestrzeń wspólna
Miejsce z historią
Okolica Matejki od lat była symbolem elegancji i miejskiego stylu życia. Mieszkanie znajduje się w pięknej kamienicy, należącej do kompleksu mieszkaniowego Johow-Gelände. To wyjątkowy fragment Poznania, powstały na początku XX wieku jako przemyślane, nowoczesne osiedle zaprojektowane z myślą o komforcie życia i harmonii przestrzeni dla elity finansowej ówczesnego Poznania. Secesyjna architektura, uporządkowany układ zabudowy i kameralny charakter do dziś tworzą niepowtarzalny klimat tego miejsca. Położone na terenie Łazarza osiedle zachowało historyczny urok, który wciąż czuć w codziennym rytmie tej części miasta — w bezpośrednim sąsiedztwie Parku Wilsona, pełniącego w owym czasie funkcję ogrodu botanicznego i stanowiącego eleganckie zaplecze spacerowe dla mieszkańców.
To tu powstawały modernistyczne perełki jak słynny Betonhaus — jeden z pierwszych żelbetowych budynków który dziś po odrestaurowaniu przyciąga przestrzenią gastronomiczną i kulturalną.
Dziś tę atmosferę wciąż można tu odnaleźć — w architekturze, zieleni i… w tym mieszkaniu.
To nie jest mieszkanie "do zamieszkania".
To mieszkanie do życia.
Takie, do którego wraca się z ulgą.
Podsumowanie prawno-finansowe
Cena sprzedaży: 790 000 zł.
Pełna własność z Księgą Wieczystą
Kamienica zarządzana przez prężną Wspólnotę Mieszkaniową – niski czynsz 347,00 zł./mc z zaliczką na wodę i wywóz odpadów.
Możliwość parkowania auta na podwórku należącym do kamienicy
Piwnica przynależąca do mieszkania ok. 6m2 (sucha, wysoka, z okienkiem)
Wybrane wyposażenie do uzgodnienia z właścicielem – częściowo możliwość pozostawienia za dodatkową opłatą.
Ogólne informacje
| Rodzaj | Na sprzedaż |
|---|---|
| Powierzchnia użytkowa | 50.40 m² |
| Piętro | 2 |
| Liczba pokoi | 2 |




