Mieszkanie z widokiem na Jeziorak – Iława, ul. Gdańska - 2 sypialnie
Iława, Warmińsko-mazurskie
Opis
To mieszkanie na 3. piętrze przy ul. Gdańskiej w Iława jest propozycją dla osób, które chcą mieszkać funkcjonalnie, blisko usług i z widokiem na wodę.
Przemyślany układ, dwie sypialnie i balkon z widokiem na Mały i Duży Jeziorak sprawiają, że to mieszkanie dobrze odpowiada na potrzeby codziennego życia.
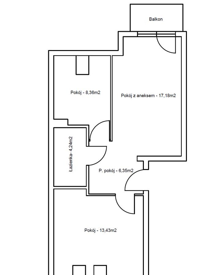
Mieszkanie o powierzchni użytkowej 49,56 m² znajduje się w budynku z 2013 roku, zarządzanym przez wspólnotę.
Układ jest funkcjonalny i praktyczny. Część dzienna to salon z aneksem kuchennym, który pozwala zachować kontakt z domem podczas codziennych czynności. Aneks jest wyposażony w piekarnik, płytę grzewczą, wyciąg oraz pralkę.
Strefa prywatna obejmuje dwie sypialnie z oknami połaciowymi. Większa z nich jest w pełni umeblowana – z dużymi szafami w zabudowie, łóżkiem i szafkami nocnymi. Druga, mniejsza, sprawdzi się jako pokój dziecięcy, gabinet lub sypialnia gościnna.
Łazienka została zaprojektowana uniwersalnie– znajduje się tu zarówno wanna, jak i prysznic. Całość uzupełnia przedpokój.
Mieszkanie jest w stanie dobrym, nosi ślady codziennego użytkowania, które nowy Nabywca może zdecydować się odświeżyć. Mieszkanie zostało odmalowane na kolor biały.
ATUTY TEJ NIERUCHOMOŚCI
mieszkanie o powierzchni 49,56 m²
budynek z 2013 roku
ustawny balkon z widokiem na Mały i Duży Jeziorak
salon z aneksem kuchennym
aneks wyposażony w AGD: piekarnik, płyta, wyciąg, pralka
dwie sypialnie z oknami połaciowymi
duża sypialnia z bardzo pojemnymi szafami w zabudowie i przemyślanych rozwiązaniach
łazienka z wanną i oddzielnym prysznicem
parking przy budynku
plac zabaw na terenie osiedla
niski czynsz – ok. 550 zł
wspólnota mieszkaniowa
Ulica Gdańska to lokalizacja, która dobrze łączy codzienną wygodę z dostępem do usług. W bezpośrednim sąsiedztwie znajdują się gabinety lekarskie, fryzjer, weterynarz oraz sklepy spożywcze – wszystko, co potrzebne na co dzień, jest w zasięgu krótkiego spaceru.
Widok na jezioro i bliskość terenów spacerowych pozwalają złapać oddech po pracy, bez konieczności wyjazdu z miasta.
Zadzwoń i umów się na prezentację.
Mieszkania z widokiem na jezioro, w tej części miasta i w tym metrażu, pojawiają się na rynku rzadko.
Jeśli szukasz funkcjonalnego lokum z realnym atutem lokalizacji, ta oferta zasługuje na obejrzenie.
Kupujący nie ponosi kosztów Biura Nieruchomości.
Na zdjęciu widoczna jest symulacja umeblowania salonu.
Ogólne informacje
| Rodzaj | Na sprzedaż |
|---|---|
| Powierzchnia użytkowa | 49.56 m² |
| Piętro | 3 |
| Liczba pokoi | 3 |




