Na działalność gospodarczą | Klimatyzacja
Warszawa, Mazowieckie
Opis
BUDYNEK PRZEZNACZONY I PRZYSTOSOWANY NA CELE BIUROWE
Na cele biurowe lub studio nagrań | Elektroniczna kontrola dostępu | Klimatyzacja | Kameralna lokalizacja
*****
ROZKŁAD POMIESZCZEŃ:
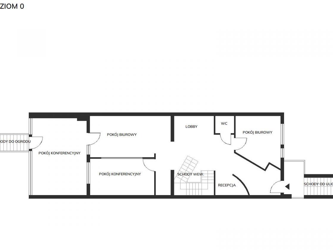
Parter:
* Recepcja,
* lobby,
* 2 pokoje biurowe,
* 2 salki konferencyjne,
* toaleta.
I Piętro:
* Hall,
* cztery pokoje-pracownie,
* gabinet,
* serwerownia,
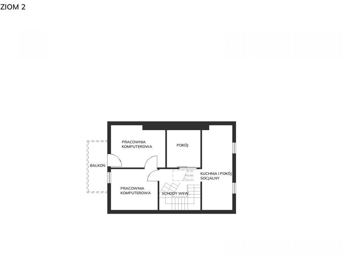
II Pietro:
* Hall,
* dwie pracownie,
* gabinet,
* pokój socjalny.
Na poddaszu - archiwum.
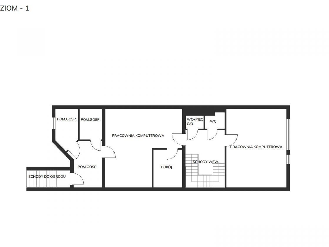
Przyziemie:
* Hall,
* dwie pracownie komputerowe,
* trzy pomieszczenia gospodarcze,
* pokój,
* 2 toalety,
* kotłownia.
STANDARD:
Wnętrza przystosowane do celów biurowych oraz wymagań nagrań dźwiękowych. Szerokopasmowe łącza internetowe. Elektroniczna kontrola dostępu do pomieszczeń. Podniesiona klasa energetyczna do zasilania urządzeń komputerowych. Wszystkie pokoje klimatyzowane. W całym budynku system alarmowy.
LOKALIZACJA:
Służew to dynamiczna i nowoczesna dzielnica, odgrywająca istotną rolę w gospodarczym i biznesowym krajobrazie Warszawy, która jednocześnie oferuje dostęp do terenów rekreacyjnych, chociażby do zlokalizowanego w bliskim sąsiedztwie Parku Dolinka Służewiecka. Kameralne sąsiedztwo domów mieszkalnych w zabudowie szeregowej.
Dogodny punkt komunikacyjny - blisko Metro Wilanowska, przystanki autobusowe i tramwajowe.
INFORMACJE DODATKOWE:
* Dwa miejsca parkingowe przed budynkiem i na podjeździe do garażu. Parkowanie na ulicy bez opłat.
* Podana cena jest ze zwolnieniem z VAT.
Zapraszam do kontaktu!
——————————————
KONTAKT
Tomasz Romanowski (licencja zawodowa nr 6919)
Przedstawiona wyżej oferta nie jest ofertą handlową w rozumieniu przepisów prawa, lecz ma charakter informacyjny. Partners International dokłada starań, aby treści przedstawione w naszych ofertach były aktualne i rzetelne. Dane dotyczące ofert uzyskano na podstawie oświadczeń Sprzedających.
Jako biuro nieruchomości pobieramy wynagrodzenie w formie prowizji.
——————————————
CONTACT
Tomasz Romanowski (professional licence nr. 6919)
Broker responsible: Joanna Czapska (professional license No. 4585)
Outlined above proposal is not a commercial offer for the purposes of the law but is informative. All data relating to real estate was obtained on the basis of statements from the Sellers.
As a real estate agency, we charge a commission.
BUILDING DESIGNED AND ADAPTED FOR OFFICE PURPOSES
For office purposes or a recording studio | Electronic access control | Air conditioning | Intimate location
*****
ROOM LAYOUT:
Ground floor:
* Reception area,
* lobby,
* 2 office rooms,
* 2 conference rooms,
* restroom.
1st Floor:
* Hall,
* four rooms-workrooms,
* office,
* server room,
2nd Floor:
* Hall,
* two studios,
* office,
* a social room.
In the attic - an archive room.
Underground floor:
* Hall,
* two computer labs,
* three utility rooms,
* a room,
* 2 toilets,
* boiler room.
STANDARD:
Interiors adapted for office purposes and sound recording requirements. Broadband internet connections. Electronic control of access to the premises. Upgraded energy class to power computer equipment. All rooms air-conditioned. Alarm system throughout the building.
LOCATION:
Służew is a dynamic and modern district, relevant fot economic and business landscape of Warsaw. Not only this, but also it offers access to recreational areas, such as the Służewiecka Valley Park located in close proximity. Intimate neighborhood of terraced houses.
Convenient transportation point - close to Metro Wilanowska, bus and streetcar stops.
ADDITIONAL INFORMATION:
* Two parking spaces in front of the building and in the driveway to the garage. Parking on the street without charge.
You are cordially invited to the presentation!
Ogólne informacje
| Rodzaj | Na sprzedaż |
|---|---|
| Powierzchnia użytkowa | 302.50 m² |




