Nowa inwestycja - 63,5 m2 - 3 pokoje z ogródkiem i 2 m. postojowymi
Mazowieckie
Opis
Nowoczesne 3 pokoje z ogródkiem i 2 miejscami postojowymi – bez prowizji i PCC!
Kobyłka, ul. Mickiewicza – kameralna inwestycja w zielonej części miasta
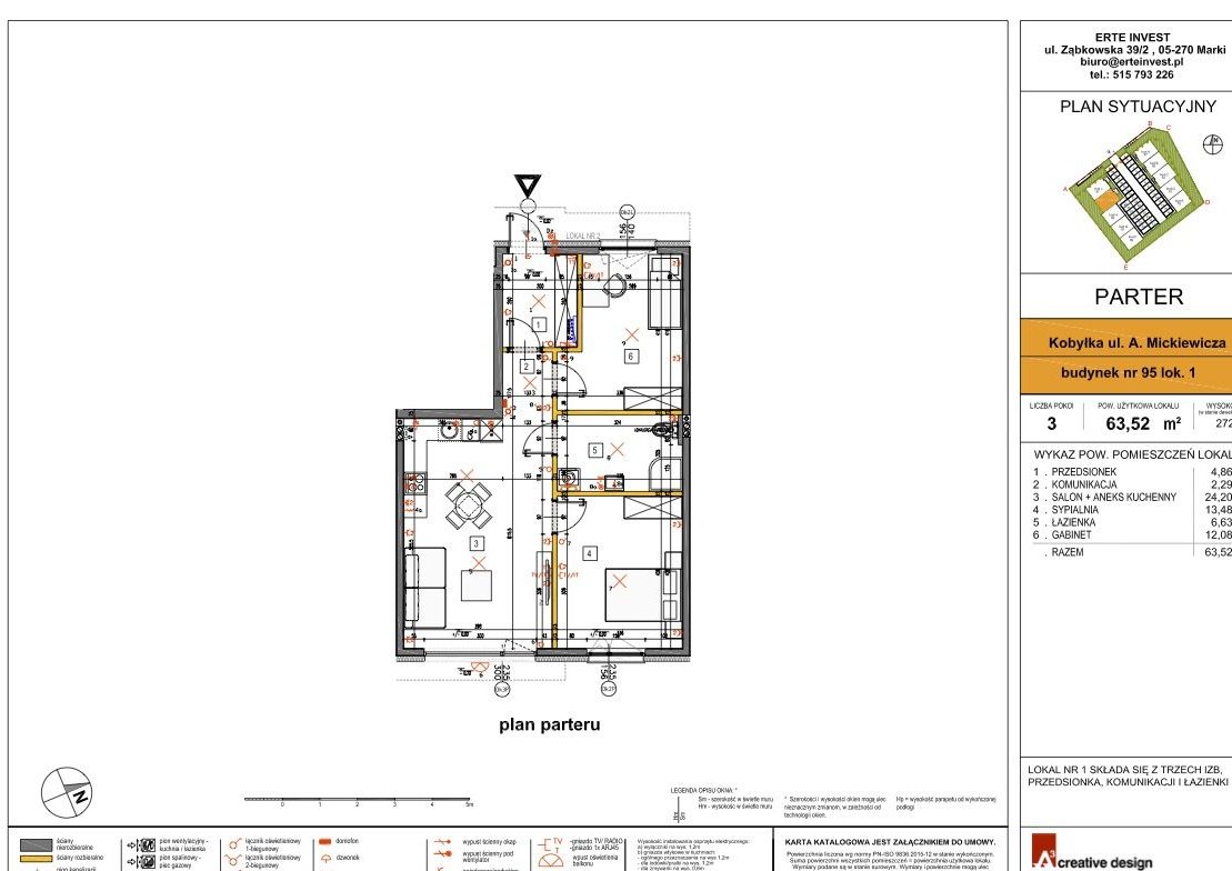
Metraż: 63,52 m² + ogródek 48 m²
Oddanie: grudzień 2026
2 miejsca postojowe w cenie!
Zamieszkaj w spokojnej okolicy, z dala od miejskiego zgiełku, a jednocześnie z szybkim dojazdem do Warszawy.
Przemyślany i funkcjonalny układ:
- Przedsionek – 4,86 m²
- Komunikacja – 2,29 m²
- Salon z aneksem kuchennym – 24,20 m² –
- Sypialnia – 13,48 m²
- Gabinet – 12,08 m²
- Łazienka – 6,63 m²
Dodatkowym atutem jest prywatny ogródek, który daje komfort odpoczynku na świeżym powietrzu.
Kameralne osiedle w otoczeniu zieleni
Inwestycja obejmuje tylko 10 budynków w zabudowie szeregowej – to gwarancja prywatności i spokojnej atmosfery.
Bliskość lasu i terenów rekreacyjnych sprzyja spacerom, bieganiu i wycieczkom rowerowym.
Świetna komunikacja:
3 min do trasy S8
10 min do stacji PKP Kobyłka – szybki dojazd do Warszawy
W pobliżu: Biedronka, Aldi, stacja benzynowa
Wysoki standard wykonania:
- Ogrzewanie podłogowe w całym mieszkaniu
- Nowoczesny, dwufunkcyjny piec gazowy
- Duże, trzyszybowe okna PCV – bardzo dobra izolacja
- Światłowód doprowadzony do lokalu
- Indywidualne liczniki mediów
- Tynki gipsowe maszynowe, posadzki cementowe
Bezpośrednio od dewelopera – bez prowizji i bez podatku PCC!
Zadzwoń i umów się na prezentację – poznaj wszystkie szczegóły inwestycji i zarezerwuj swoje miejsce w spokojnej części Kobyłki.
Ogólne informacje
| Rodzaj | Na sprzedaż |
|---|---|
| Powierzchnia użytkowa | 63.52 m² |
| Liczba pokoi | 3 |




