➤ Nowe ✔2 Pokoje ✔Balkon ✔ Gotowe ✔0%
Dolnośląskie
Opis
* Oferta Bez Prowizji (0 zł) i Bez Podatku PCC (0 zł)
* Kontakt: Piotr - TEL. 663 172 229
* 2 POKOJE
* GOTOWE DO ODBIORU
Zapraszam do zakupu nowooddanego do użytkowania, 2 pokojowego mieszkania w Lutyni graniczącej z Wrocławiem.
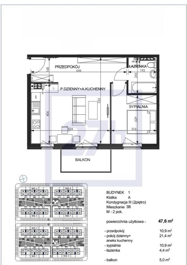
Powierzchnia użytkowa mieszkania: 47,6 m2
- pokój dzienny + aneks kuchenny: 21,4 m2
- sypialnia: 10,9 m2
- przedpokój: 10,9 m2
- łazienka: 4,4 m2
- balkon: 5,0 m2
Nowoczesne osiedle znajduje się w Lutyni blisko Wrocławia w bezpośrednim sąsiedztwie Lasu Ratyńskiego.
Można stąd dojechać do parkingu Park & Ride w 15 minut, a następnie tramwajem dojechać do centrum (pl. Jana Pawła II) w 32 minuty.
W Lutyni znajduje się m.in.:
+ Sklep,
+ Szkoła Podstawowa - nowowybudowana,
+ Przedszkola,
+ Ośrodek Zdrowia,
+ Kościół.
Na osiedlu znajduje się 8 budynków wielorodzinnych. Łącznie znajdzie się tam 288 mieszkań. Budynki przewidziano w technologii prefabrykowanej oraz uzupełniająco w technologii tradycyjnej, mieszanej żelbetowo – murowanej. Ten rodzaj konstrukcji obiektów zapewnia wysoką jakość i wydajność. Dzięki nowoczesnej technologii staje się coraz bardziej zaawansowany, wykazując ogromny potencjał na rynku budowlanym.
Bliskość położonego nieopodal Lasu Ratyńskiego, gwarantuje, że na spacery z dziećmi czy też wyprawy rowerowe nie trzeba będzie wybierać się w odległe rejony.
W samej Lutyni znajduje się szkoła i sklep. To więc doskonałe rozwiązanie dla tych, którzy nie chcąc wyprowadzać się daleko od miasta, marzą też o mieszkaniu w miejscu, w którym można wypocząć na łonie natury i napawać wzrok odprężającymi widokami.
A jeśli najdzie Cię ochota, by wyskoczyć do centrum, błyskawicznie przedostaniesz się tam zarówno samochodem, jak i komunikacją miejską lub pociągiem.
Na osiedlu nie przewidziano elementy małej architektury np. ławki. Są też dwa funkcjonalne place zabaw i sporo zadbanej zieleni.
Nie można zapomnieć też o istotnym potencjale gospodarczym samego powiatu średzkiego. Jest tu zlokalizowana strefa ekonomiczna i wiele zakładów produkcyjnych i firm. Najnowszą inwestycję zapowiedział Intel, który postawi w okolicy nowoczesny Zakład Integracji i Testowania Półprzewodników. To przyciągnie nowych inwestorów i stworzy nowe miejsca pracy.
W ofercie także inne mieszkania z tej i innych lokalizacji.
Pozostałe informacje:
Oferta bez prowizji (0 zł) i bez podatku PCC (0 zł). Cena zawiera już w sobie 8% podatku VAT.
Niniejszy opis zawarty na tej stronie internetowej może podlegać aktualizacji i nie stanowi oferty określonej w art. 66 i następnych K.C.
Pewnie macie pytania a ja z przyjemnością na nie odpowiem.
Dzwońcie śmiało! Nazywam się Piotr Walendowski a mój numer TEL. to 663 172 229.
UWAGA: W OFERCIE WIELE INNYCH MIESZKAŃ, SZEREGÓW, SEGMENTÓW I BLIŹNIAKÓW Z WROCŁAWIA, LUTYNI, WILKSZYNA, BRZEZINY, MIĘKINI I OKOLIC WROCŁAWIA!
Oferta wysłana z programu dla biur nieruchomości ASARI CRM ()
Ogólne informacje
| Rodzaj | Na sprzedaż |
|---|---|
| Powierzchnia użytkowa | 47.60 m² |
| Piętro | 2 |
| Liczba pokoi | 2 |




