Nowe 3 pokoje 56.53m2 + balkon 7.5m2 Raków-Instalatorów 0% Prowizji
Warszawa, Mazowieckie
Opis
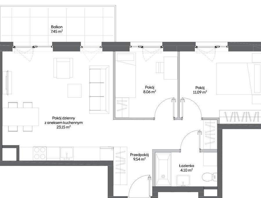
Do nabycia bez prowizji 3 pokoje o powierzchni 56.53m2 w zrealizowanej inwestycji w rejonie ul. Instalatorów na warszawskim Rakowie, w pobliżu Al. Krakowskiej i stacji PKP Rakowiec. Mieszkanie składa się z foremnego kwadratowego salonu z otwartą kuchnią o powierzchni ponad 23m2, 2 sypialni około 11m2 i 8m2, dużej łazienki ponad 4m2. Do mieszkania przynależy balkon o powierzchni 7,45 m2. Odbiór kluczy styczeń 2026.
Mieszkanie ma słoneczną zachodnią ekspozycję i wychodzi na ciche wewnętrzne patio osiedla, brak styczności z ulicami i terenem zewnętrznym.
Inwestycja obejmuje dwa starannie zaprojektowane budynki, trzy- i siedmiopiętrowy, oraz wewnętrzne patio. Przestrzeń wspólna została zaprojektowana w taki sposób, by sprzyjać integracji. Dziedziniec, z jednej strony osłonięty przez starodrzew, przemyślany jest w taki sposób, by jego wyposażenie było atrakcyjne zarówno dla dużych, jak i małych mieszkańców. Unikatowym rozwiązaniem jest szklarnia, w której każdy może uprawiać własne rośliny.
W najbliższym sąsiedztwie osiedla znajdują się szkoły i przedszkola, jest też bogata oferta handlowa min. Centrum Handlowe Łopuszańska i Targowisko Bakalarska. Do centrum można dostać się samochodem, co zajmuje 20 minut lub korzystając z dogodnej komunikacji miejskiej, obejmującej min. linie tramwajowe 7,9,15.
Ogólne informacje
| Rodzaj | Na sprzedaż |
|---|---|
| Powierzchnia użytkowa | 56.53 m² |
| Piętro | 3 |
| Liczba pokoi | 3 |




