Nowe domy wolnostojące, garaż, Rogoźna!
Śląskie
Opis
Zapraszam do zapoznania się z ofertą sprzedaży nowych domów wolnostojących zlokalizowanych na nowo powstającym osiedlu domów jednorodzinnych w bardzo zielonej dzielnicy Żor-Rogoźna. Domy budowane są przez solidną firmę działająca na rynku od ponad 10 lat.
Przedmiotem oferty są nowe dom wolnostojące w Żorach, dzielnica Rogoźna. Nieruchomość piętrowa z poddaszem użytkowym i garażem w bryle budynku o powierzchni 153,50 m2 jest sprzedawana w stanie surowym zamkniętym. Działka płaska w kształcie prostokąta o powierzchni 537,01 m2. Wymiary działki ok. 35 m x 15 m.
Nieruchomość znajduje się na nowo powstającym osiedlu domów jednorodzinnych w bardzo cichej i urokliwej okolicy. Wnętrza zapewniają optymalny układ pomieszczeń i duży dostęp do światła dziennego. Na szczególną uwagę zasługują bardzo duże przeszklenia w salonie. W ramach adaptacji poddasza istnieje możliwość dowolnej zmiany wymiarów sypialni, łazienki i garderoby. Dodatkowo każdy dom posiada garaż w bryle budynku oraz dodatkowe miejsce postojowe na podjeździe. Domy rozmieszczone są w sposób zapewniający pełną swobodę i prywatność mieszkańców podczas korzystania z ogrodu i tarasu. Bezpieczeństwo zapewnia cicha i spokojna okolica, las, tereny zielone. Osiedle budowane jest na podstawie indywidualnego projektu, który charakteryzuje się przede wszystkim przemyślaną i funkcjonalną architekturą zapewniającą komfort i wygodę mieszkania.
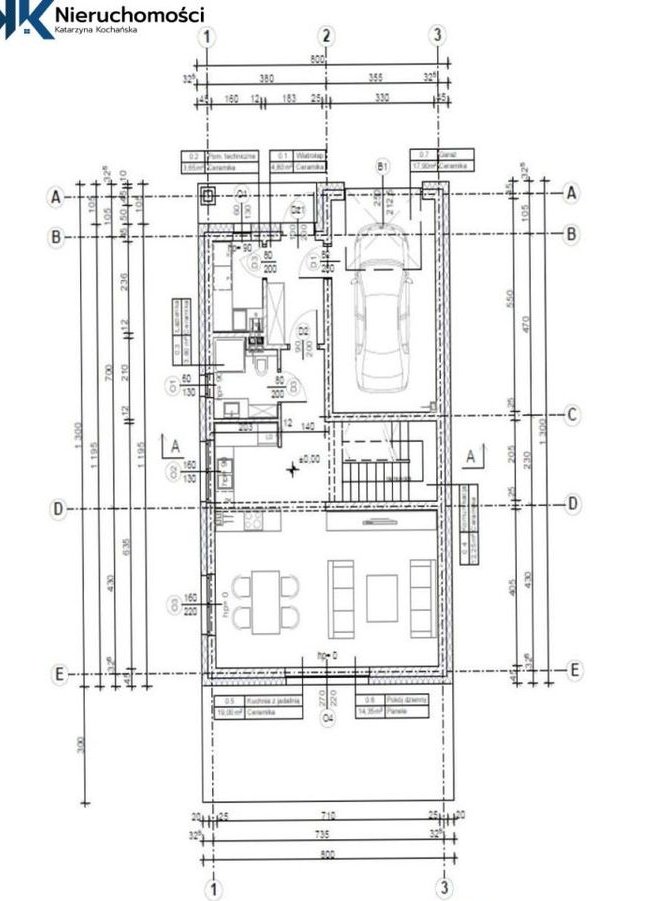
Na parterze domu znajdują się następujące pomieszczenia:
• garaż 17,90 m2,
• pomieszczenie techniczne 3,65 m2,
• wiatrołap 4,80 m2,
• komunikacja 12,90 m2,
• łazienka 3,80 m2,
• kuchnia z jadalnią 19 m2,
• pokój dzienny 14,35 m2
Łącznie parter 76,40 m2
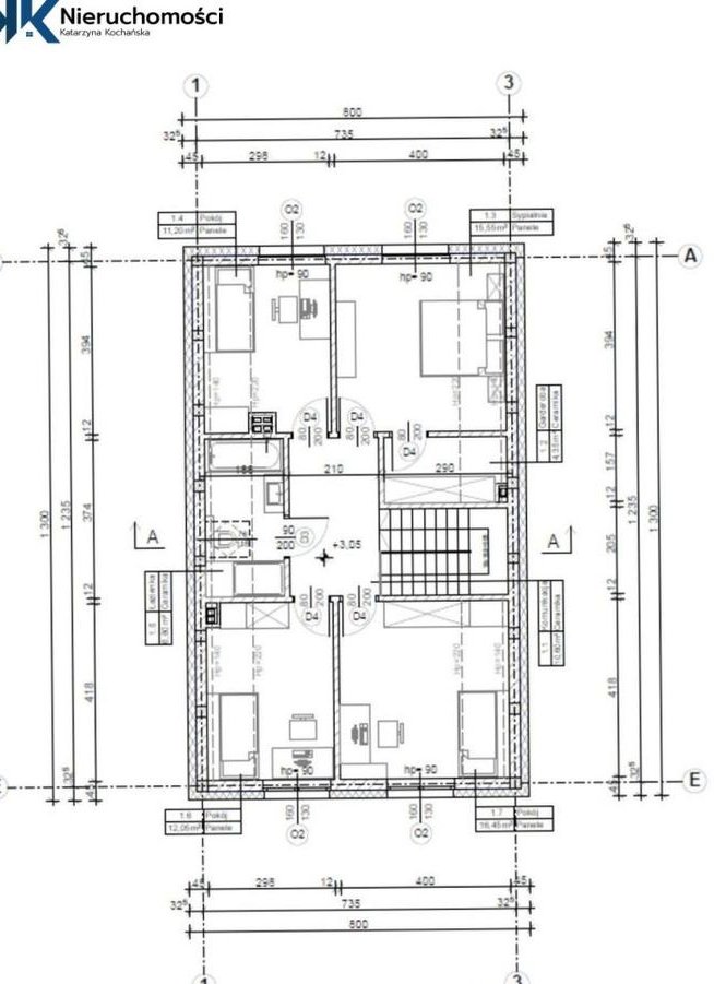
Poddasze użytkowe:
• sypialnia 15,55 m2,
• pokój 11,20 m2,
• pokój 12,05 m2
• pokój 16,45 m2
• garderoba 4,45 m2,
• łazienka 6,80 m2.
• komunikacja 10,60 m2,
Łącznie poddasze użytkowe 77,10 m2
Zestawienie powierzchni łącznie 153,50 m2.
Budynek w stanie surowym zamkniętym obejmuje: fundament, chudy beton, ściany nośne parteru, strop monolit, ściany nośne piętra, wieniec, komin, więźba dachowa, pokrycie dachu dachówką wraz z wyłazem dachowym oraz rynnami bez rur spustowych, okna plastikowe (kolor zewnętrzny antracyt, wewnętrzny - biały), brama garażowa segmentowa antracyt, drzwi wejściowe antracyt.
Ze względu na istniejący stan wykończenia istnieje możliwość dowolnej aranżacji przestrzeni za pomocą ścian działowych. Wielkości pomieszczeń są orientacyjne wg. projektu. Każdy nowy Właściciel może dowolnie zaaranżować przestrzeń wg. własnego uznania.
Wysoki standard materiałów wykorzystanych do budowy:
• sześciokomorowe okna o najlepszych właściwościach w zakresie termoizolacji, bezpieczeństwa oraz tłumienia dźwięku; zastosowanie ciepłych ramek czyli ramek dystansowych wykonanych z materiałów o bardzo dobrych właściwościach izolacyjnych.
• pustaki ceramiczne (marki Porotherm), które pozwalają budować domy w standardzie niemal zeroenergetycznym, a ściany z nich wybudowane znacznie przekraczają wymagania stawiane przez przepisy budowlane w zakresie termoizolacyjności ścian;
• drzwi wejściowe;
• dach pokryty dachówką marki BRAAS o doskonałych walorach zarówno wytrzymałościowych, jak też estetycznych;
• konstrukcja dachu drewniana;
Projektowany komin wentylacyjno-spalinowy (wentylacja i odprowadzania spalin z kotła gazowego).
Stan przyłączenia mediów:
- energia elektryczna- skrzynka w granicy działki
- woda: wodociąg bezpośrednio w drodze głównej,
- kanalizacja sanitarna,
- gaz ziemny- skrzynka w granicy działki.
Bardzo łatwy i szybki dojazd do centrum i miast ościennych (Droga nr 81 tzw. Wiślanka 8 min, autostrada A1 8 min ). W bliskiej odległości znajduje się szkoła podstawowa i przedszkole, kościół, sklepy, przystanek komunikacji miejskiej, rynek, Galeria Wiślanka, basen. Bliska odległość centrum miasta.
Spokojna i urokliwa okolica. Dużo zieleni i miejsc do aktywnego wypoczynku na łonie natury. Idealne rozwiązanie dla osób szukających swojego miejsca w spokojnej i cichej lokalizacji, z dala od miejskiego zgiełku. Ekspozycja tarasu południe – zachód lub południe-wschód.
Atrakcyjna cena nowego domu z działką. Gwarancja ceny przy podpisaniu umowy przedwstępnej. Nieruchomość dostępna "od ręki".
Dom przedstawiony na zdjęciach jest przedmiotem sprzedaży.
Nieruchomość pochodzi z rynku pierwotnego i kupujący zwolniony jest z podatku od czynności cywilno-prawnych w wysokości 2%.
Zapraszam do kontaktu.
Opis oferty zawarty na stronie internetowej sporządzany jest na podstawie oględzin nieruchomości oraz informacji uzyskanych od właściciela, może podlegać aktualizacji i nie stanowi oferty określonej w art. 66 i następnych K.C.
Gwarantuję:
pełen zakres obsługi i asystę w Kancelarii Notarialnej,
organizację sporządzenia świadectwa charakterystyki energetycznej,
ofertę ubezpieczeniową,
pomoc w załatwieniu kredytu hipotecznego lub gotówkowego,
realizację protokołów zdawczo-odbiorczych z Zakładem Energetycznym, Gazownią i Spółdzielnią Mieszkaniową lub Zarządcą Nieruchomości
wsparcie w organizacji przeprowadzki lub opróżnieniu mieszkania,
dodatkowe rabaty m. in w firmach z branży bezpieczeństwa, systemów alarmowych, monitoringu czy w marketach budowlanych.
Dodatkowo wszyscy Klienci KK Nieruchomości otrzymują gwarantowane Vouchery ze specjalną ofertą 10% rabatu na zakupy w sieci sklepów Leroy Merlin.
Zapraszam do kontaktu:
Katarzyna Kochańska
Nr licencji 1493
Tel. 500-807-395
e-mail: oferty /
Ogólne informacje
| Rodzaj | Na sprzedaż |
|---|---|
| Powierzchnia użytkowa | 153.50 m² |
| Liczba pokoi | 5 |




