Nowe domy z ogródkiem i garażem – bezpośrednio od Developera bez PCC.
Warszawa, Mazowieckie
Opis
Na sprzedaż oferuję 4 nowoczesne domy w zabudowie szeregowej zlokalizowane w spokojnej, zielonej części Warszawy – Rembertowie, przy ul. Chełmżyńskiej. Bezpośrednio od Developera , bez podatku PCC.
Oferujemy również dodatkowo płatną usługę wykończenia pod klucz.
Lokalizacja zapewnia ciszę i bliskość natury (las w niedużej odległości), a jednocześnie dogodny dojazd do centrum Warszawy.
Dostępne lokale:
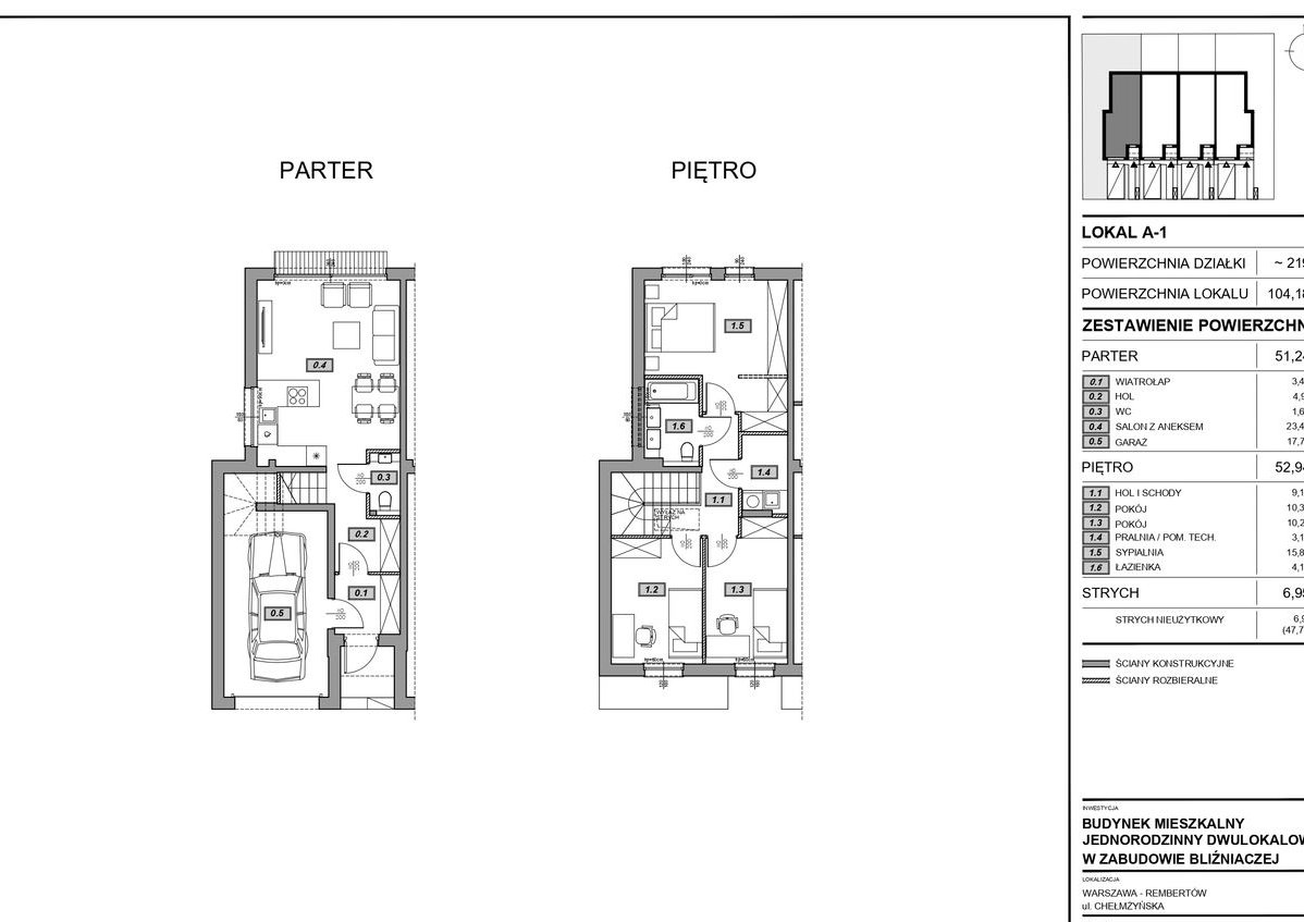
*A1 – ok 104,18 m² | działka ok 219 m²
*A2 – ok 114,49 m² | działka ok 140 m²
*B1 – ok 114,49 m² | działka ok 139 m²
*B2 – ok 104,18 m² | działka ok 222 m²
Każdy lokal posiada funkcjonalny układ, przestronne wnętrza oraz możliwość aranżacji według własnych potrzeb.
Lokalizacja:
Warszawa, dzielnica Rembertów, ul. Chełmżyńska
Położenie w mieście, w otoczeniu zieleni i zabudowy jednorodzinnej.
Atuty:
*Nowe budownictwo (2025)
*Kameralne osiedle szeregowe
*Blisko lasu i terenów rekreacyjnych
*Cisza, spokój i szybki dojazd do centrum Warszawy
Kontakt bezpośredni – osoba prywatna
Zapraszam do kontaktu i umówienia prezentacji!
Przedstawiona wyżej propozycja nie jest ofertą handlową w rozumieniu przepisów prawa lecz ma charakter informacyjny.
Ogólne informacje
| Rodzaj | Na sprzedaż |
|---|---|
| Powierzchnia użytkowa | 104.18 m² |
| Liczba pokoi | 4 |




