Nowe energooszczędne domy, dostępne ostatnie dwa segmenty
Katowice, Śląskie
Opis
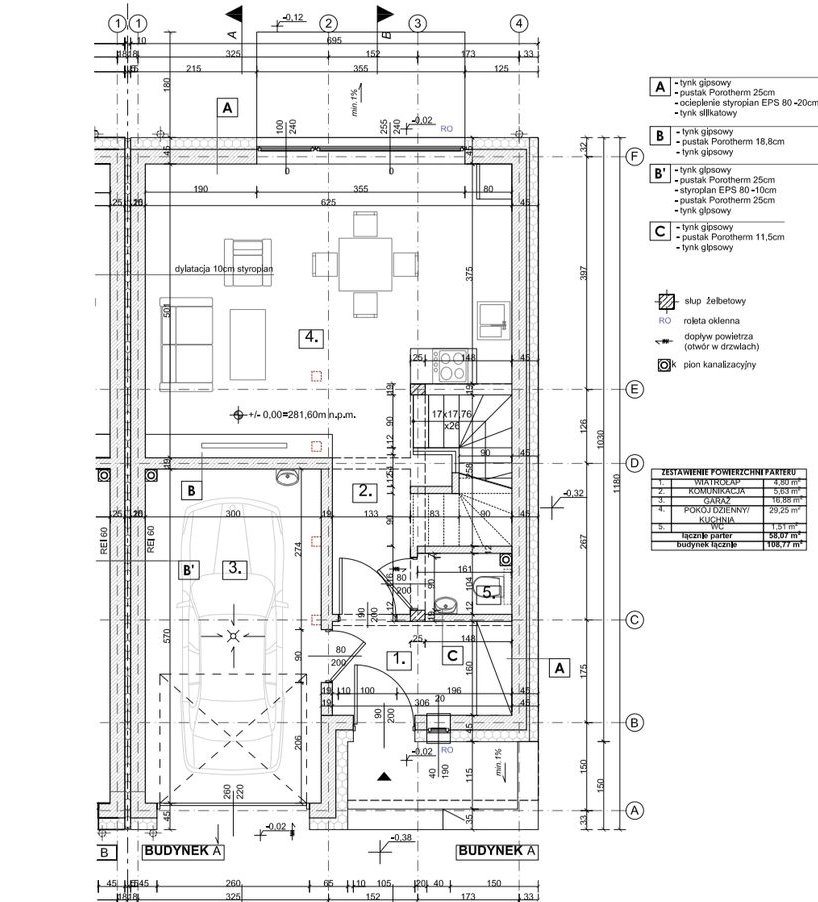
Zapraszam Państwa do zapoznania się z kameralną inwestycją deweloperską wyróżniającą się funkcjonalnym projektem, wysokim standardem wykończenia oraz zastosowaniem materiałów wysokiej jakości, dodatkowo w atrakcyjnej cenie. Oferta dotyczy sprzedaży nowego domu w zabudowie szeregowej w cichej i zielonej dzielnicy Katowic Zarzeczu, to już kolejny etap naszej inwestycji w ramach którego powstanie 10 segmentów. Oferowana nieruchomość to dom o powierzchni 109 m² z garażem w bryle budynku, posadowiony na działce 201 m².
W skład nieruchomości wchodzą:
PARTER
salon z aneksem kuchennym
wc
pomieszczenie gospodarcze
korytarz
wiatrołap
garaż
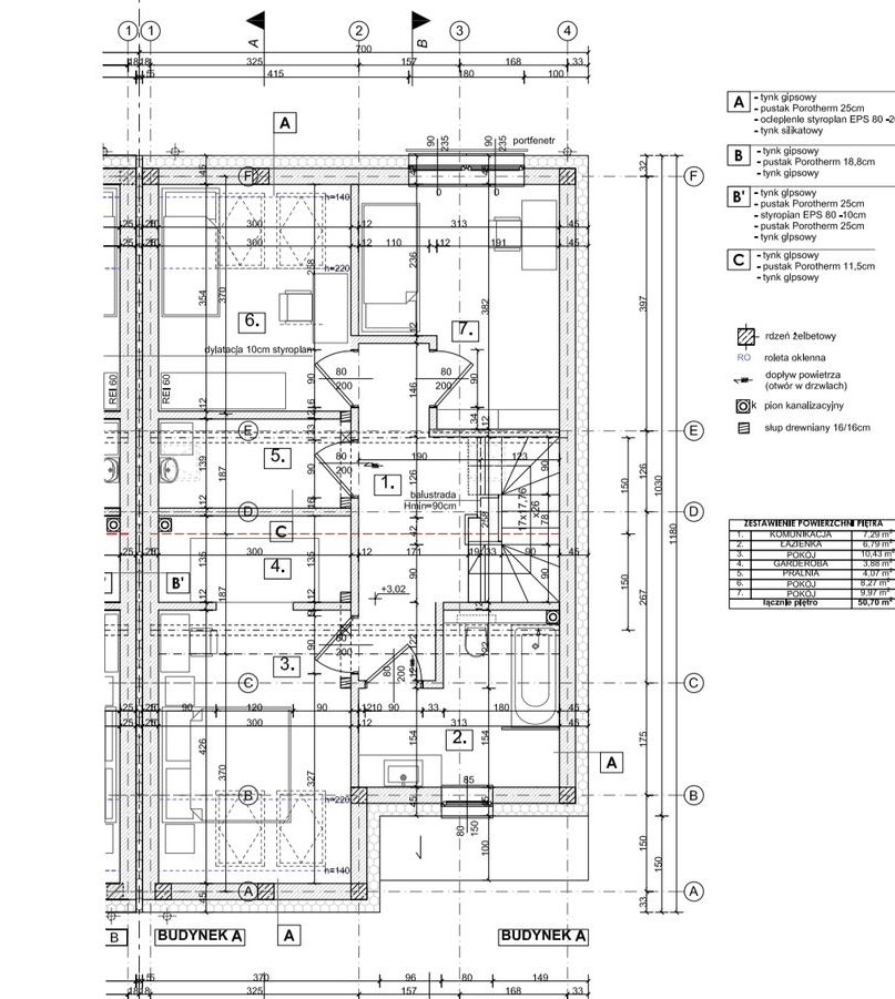
PIĘTRO:
sypialnia z garderobą
2 pokoje
łazienka
pralnia
korytarz
Dom w stanie podwyższonym deweloperskim, wybudowany techniką tradycyjną murowaną. Dach dwuspadowy pokryty dachówką, okna PCV, dodatkowo zamontowane rolety zewnętrzne, drzwi wejściowe oraz brama garażowa w tej samej kolorystyce. Budynek ocieplony i otynkowany, elewacja w odcieniu grafitu z dodatkiem drewna. Doprowadzone wszystkie media (woda, kanalizacja, prąd). Ogrzewanie indywidualne pompa ciepła, ogrzewanie podłogowe, rekuperacja. Dodatkowo w budynku rozprowadzone instalacje do podłączenia alarmu, monitoringu oraz klimatyzacji. Teren inwestycji będzie ogrodzony i zabezpieczony bramą wjazdową na pilota, dodatkowo powstanie tutaj plac zabaw dla najmłodszych mieszkańców. Cicha i spokojna okolica, z dala od zgiełku centrum miasta a jednocześnie doskonale skomunikowana, nie tylko z centrum Katowic, ale także z sąsiadującym Mikołowem czy Tychami, dzięki szybkiemu dojazdowi do DK 81 oraz bliskości komunikacji miejskiej. W niedalekiej odległości znajduje się także pełna infrastruktura, szkoła, przedszkole, apteka, punkty usługowo-handlowe oraz gastronomiczne. To idealna propozycja dla rodzin oraz osób, które chcą zakupić nieruchomość pod inwestycję.
Dodatkowo przy zakupie tej nieruchomości otrzymają Państwo od naszego partnera OBI Polska 10% rabatu na zakup materiałów oraz projekt kuchni lub łazienki tylko za 1 zł.
Zapraszam do obejrzenia nieruchomości po uprzednim kontakcie telefonicznym.
Zdjęcia przedstawiają domy wybudowane w ramach I etapu inwestycji.
Treść niniejszego ogłoszenia może podlegać aktualizacji, nie stanowi oferty w rozumieniu art. 66 i następnych K.C.
Ogólne informacje
| Rodzaj | Na sprzedaż |
|---|---|
| Powierzchnia użytkowa | 109 m² |
| Liczba pokoi | 4 |




