Nowe!, Lux!, ogródek, Mp!
Wrocław, Dolnośląskie
Opis
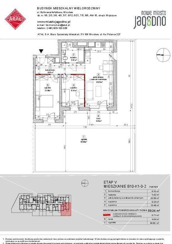
Polecam do kupna przestronne mieszkanie w bloku z 2024r., w pełni wykończone i umeblowane (w bardzo wysokim standardzie wykończenia), z dużym ogródkiem ok. 88 m2.
Z każdego pokoju wyjście drzwiami balkonowymi (okna trzyszybowe) na ogródek, w każdym oknie rolety zewnętrzne antywłamaniowe.
Mieszkanie w pełni rozkładowe, 3 osobne niezależne, zamykane pokoje!
Ekspozycja południowo-zachodnia.
Wykończenie zostało wykonane przez profesjonalną firmę wykończeniową, w tym m.in:
- wyciszenie większości pomieszczeń (na zamówienie),
- wysokiej klasy naturalna podłoga ułożona w tzw. jodełkę (parkiet barlinecki- koloru salt dąb), z ukrytymi listwami przypodłogowymi,
- drzwi zewnętrzne wzmocnione,
- drzwi wewnętrzne bez przylgowe f. Polskone, ościeżnice wbudowane w ściany działowe, zamki magnetyczne,
- kafle hiszpańskie,
- pełne oświetlenie pomieszczeń,
- kuchnia z meblami na wymiar (meble z frontami EGGER "jasny dąb" naturalne) ze sprzętem AGD f. Bosch i Samsung: lodówko- zamrażarka, płyta indukcyjna, piekarnik, zmywarka,
Mieszkanie wykończone z gustem i ze smakiem, wystrój i wyposażenie stanowi spójną elegancką całość.
Możliwość pozostawienia dodatkowego umeblowania pokoi (szafy w pokojach) w cenie sprzedaży.
Dodatkowym atutem jest przynależne gwarantowane miejsce postojowe oraz komórka lokatorska o po. 2,43 m2.
Lokal o przyjemnej temperaturze Latem i ciepły w zimie!
W każdym pomieszczeniu gniazda TV I Internet.
Pełna własność.
Kw bez obciążeń.
Otoczenie nieruchomości:
Mieszkanie znajduje się w kameralnej zabudowie, z dala od hałasu miasta, w cichej i zielonej części osiedla, gdzie nie ma ruchu drogowego od strony mieszkania, na granicy osiedla Jagodno i Wojszyce.
Otoczenie nieruchomości:
Mieszkanie znajduje się w kameralnej zabudowie, z dala od hałasu miasta, w cichej i zielonej części osiedla.
Dojazd Autobusem (wydzielony bus pas), do Dworzec Główny/Autobusowy, pl. Dominikański) można dojechać bezpośrednimi liniami autobusowymi, w tym przyspieszonymi: N, 110, 145, 148, 310 oraz nocnym 255. Czas przejazdu do okolic Dworca Autobusowego wynosi tylko 14 minut.
Wydanie kluczy do 3 miesiące od umowy sprzedaży.
Aktualne Świadectwo charakterystyki energetycznej lokalu.
Zapraszam na prezentację.
Wyłączność!
Aneta Samborska BN Ostoja 601 39 29 53
Uwaga!
Prezentowane w serwisie oferty nie stanowią oferty handlowej w rozumieniu art. 66 Kodeksu Cywilnego i mogą być nieaktualne.
Pośrednik odpowiedzialny zawodowo za wykonanie umowy pośrednictwa: Aneta Samborska nr licencji 6646
Oferta 29170908 z systemu LocumNet-OnLine.
Ogólne informacje
| Rodzaj | Na sprzedaż |
|---|---|
| Powierzchnia użytkowa | 59.31 m² |
| Liczba pokoi | 3 |




