Nowe Mieszkanie W Odrestaurowanej Kamienicy!
Katowice, Śląskie
Opis
Do sprzedania Mieszkanie zlokalizowane w Zrewitalizowanej Kamienicy w ścisłym śródmieściu Katowic w świetnej Kultowej Lokalizacji przy ul. Krzywej!
Nieruchomość w stanie po generalnym remoncie w wysokim standardzie, gotowa pod wynajem lub do zamieszkania
Cena obejmuję mieszkanie z pełnym widocznym na zdjęciach umeblowaniem i wyposażeniem AGD , w tym indukcja, zmywarka itp.
Minuta pieszo do dworca!
Ul. Krzywa to wyjątkowa, kultowa wręcz brukowana uliczka zlokalizowana przy samym Dworcu oraz Placu Andrzeja!
Bardzo urokliwa, ustronna oraz cicha uliczka, która jednakowo znajduje się w Ścisłym Śródmieściu Katowic.
Świetna lokalizacja inwestycyjna nadająca się idealnie pod najem Długo oraz Krótko-Terminowy typu Booking, Airbnb itp.
Na ulicy znajdują się miejsca takie jak : Nowo otwarta Winiarnia oferująca włoskie produkty, ekskluzywny zakład krawiecki itp.
W najbliższej odległości również wszelkie inne niezbętne punkty usługowe.
Świetny widok z okien na Śródmieście - Praktycznie wszystkie kamienice na tej ulicy posiadają odnowione elewacje. Na ulicy rosną również drzewa
Mieszkanie w zrewitalizowanej Kamienicy:
-Nowa Klatka schodowa,
-Nowe piony Wodno-Kanalizacyjne
-Nowa instalacja elektryczna z licznikiem 3-fazowym na każde mieszkanie
-Nowa kotłownia wraz z rozprowadzeniem nowej instalacji miejskiego
ogrzewania
-Nowe Pokrycie Dachu,
-Nowe okna,
-Parking, Piwnice, Komórki)
Remont mieszkań obejmuje:
- nowa instalacja elektryczna/hydrauliczna w całym mieszkaniu
- ogrzewanie Miejskie!
- ścianki działowe
- gładzie na ścianach
- malowanie
- okna plastikowe
- nowe drzwi wejściowe antywłamaniowe
- drzwi wewnętrzne
-panele / salon
-kuchnia na wymiar z pełnym wyposażeniem AGD
- łazienka
-płytki kuchnia/łazienka
- Zabudowa oraz wszystkie meble i sprzęty są zawarte w cenie mieszkania.
-Możliwość zakupu mieszkania bez wyposażenia (łóżko szafki szafy sofa stolik itd)
Dodatkowo możliwość dokupienia na własność:
-Piwnicy
-Komórki lokatorskiej
W razie pytań proszę o kontakt telefoniczny:
601-426-110
Treść niniejszego ogłoszenia nie stanowi oferty handlowej w rozumieniu Kodeksu Cywilnego.
Oferta wysłana z programu IMO dla pośredników
Ogólne informacje
| Rodzaj | Na sprzedaż |
|---|---|
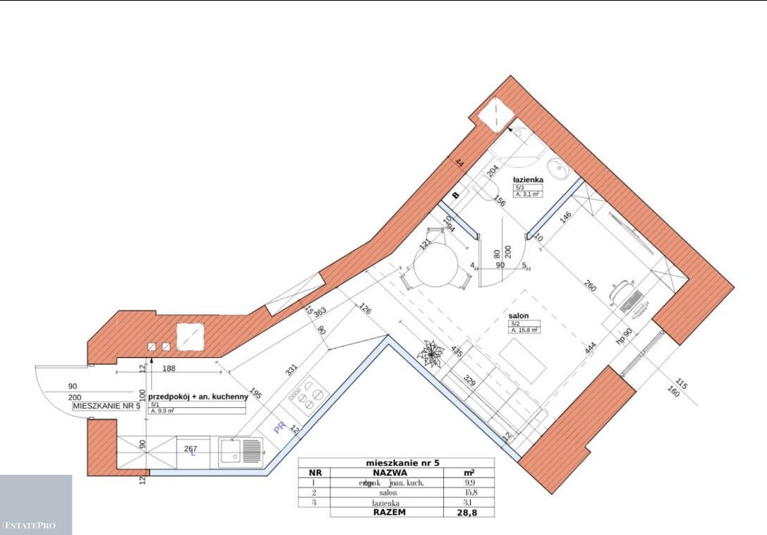
| Powierzchnia użytkowa | 29.50 m² |
| Liczba pokoi | 1 |




