Nowe mieszkanie z widokiem na Gdańsk
Gdańsk, Pomorskie
Opis
NOWOCZESNY APARTAMENT Z WIDOKIEM NA GDAŃSK I TARASAMI W ODEA PARK
ODEA Park | Widok na panoramę miasta | Ekologiczne rozwiązania | Dla rodzin | Duże tarasy | Antresola | Blisko centrum Gdańska | Kameralna zabudowa
Apartament w inwestycji ODEA Park to połączenie komfortu, nowoczesności i natury. Zaledwie 1,5 km od Starego Miasta Gdańska, położony na wzgórzu w otoczeniu zieleni, oferuje niezwykłe widoki, ciszę oraz klimat idealny do życia rodzinnego.
*****
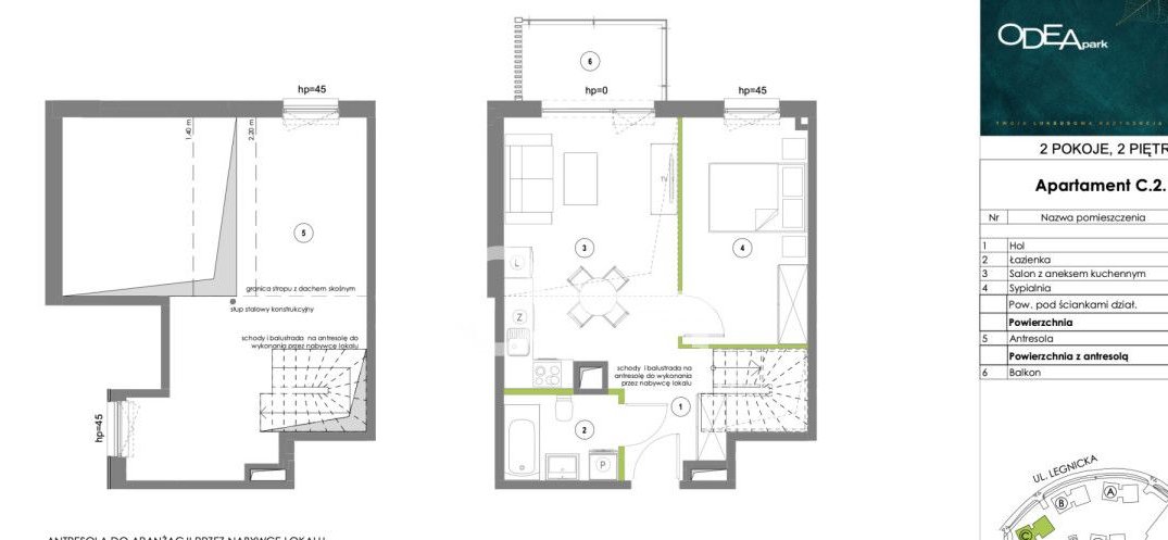
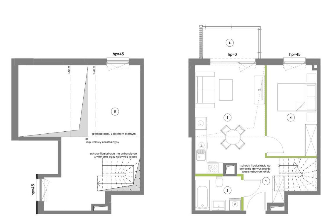
ROZKŁAD POMIESZCZEŃ:
Wyjątkowy apartament dwupoziomowy zlokalizowany na drugim piętrze o przemyślanym układzie i możliwościach aranżacyjnych.
Na poziomie głównym znajdują się:
* Przestronny salon z aneksem kuchennym,
* sypialnia,
* łazienka,
* balkon z widokiem na zieleń.
Antresola pozostaje do własnej aranżacji — z możliwością stworzenia dodatkowej sypialni, gabinetu lub przestrzeni rekreacyjnej.
Do apartamentu przynależy jedno miejsce w hali garażowej oraz komórka lokatorska (płatne dodatkowo).
STANDARD I OSIEDLE:
ODEA Park to inwestycja zaprojektowana z myślą o komforcie, ekologii i estetyce. Budynki wyposażono w panele fotowoltaiczne, zielone dachy, a sama inwestycja uzyskała prestiżowe certyfikaty BREEAM oraz ZIELONY DOM.
W centralnej części osiedla znajduje się budynek wspólnoty z salą ćwiczeń oraz przestrzenią spotkań z aneksem kuchennym.
Dodatkowo mieszkańcy mają do dyspozycji:
* plac zabaw,
* stojaki na rowery ze stacją ich obsługi,
* stację pogodową z czujnikiem jakości powietrza,
* budki dla motyli i poidełka dla ptaków.
Dla zmotoryzowanych przewidziano 146 miejsc w garażu podziemnym, w tym stanowiska z ładowarkami do pojazdów elektrycznych.
LOKALIZACJA:
ODEA Park położony jest w zielonej części Gdańska, zaledwie 1,5 km od Starego Miasta. To doskonała lokalizacja dla osób ceniących spokój, bliskość natury oraz szybki dostęp do miejskich atrakcji. Połączenie prestiżu i wygody życia w otoczeniu przyrody czyni to miejsce jednym z najbardziej pożądanych adresów w Gdańsku.
DLA KOGO:
ODEA Park to idealna propozycja dla osób i rodzin poszukujących nowoczesnego, ekologicznego i komfortowego miejsca do życia, z dala od miejskiego zgiełku, a jednocześnie blisko centrum. Kameralne budynki, duże tarasy i przemyślane rozwiązania czynią tę inwestycję wyjątkową na mapie Trójmiasta.
Zapraszam na prezentację !
——————————————
KONTAKT:
Jakub Zarzecki: +48 536 174 000 (licencja zawodowa nr 27284)
Przedstawiona wyżej oferta nie jest ofertą handlową w rozumieniu przepisów prawa, lecz ma charakter informacyjny. Partners International dokłada starań, aby treści przedstawione w naszych ofertach były aktualne i rzetelne. Dane dotyczące ofert uzyskano na podstawie oświadczeń Sprzedających.
Jako biuro nieruchomości pobieramy za usługę pośrednictwa wynagrodzenie w formie prowizji.
——————————————
CONTACT:
Jakub Zarzecki: +48 536 174 000 (professional license No. 27284)
Outlined above proposal is not a commercial offer for the purposes of the law but is informative. All data relating to real estate was obtained on the basis statements of the Sellers.
As a real estate agency we charge a commission.
——————————————
MODERN APARTMENT WITH A VIEW OF GDAŃSK AND SPACIOUS TERRACES IN ODEA PARK
ODEA Park | Panoramic city view | Eco-friendly solutions | Perfect for families | Large terraces | Mezzanine | Close to Gdańsk Old Town | Intimate development
The apartment in the ODEA Park investment combines comfort, modern design, and harmony with nature. Located just 1.5 km from Gdańsk’s Old Town, it sits on a hill surrounded by lush greenery, offering breathtaking views, peace, and a perfect atmosphere for family living.
*****
LAYOUT:
A unique two-level apartment located on the second floor, offering a well-thought-out layout and flexible arrangement options.
The main level features:
* a spacious living room with a kitchenette,
* a bedroom,
* a bathroom,
* a balcony overlooking greenery.
The mezzanine is ready for individual arrangement — ideal for creating an additional bedroom, home office, or recreational space.
The apartment includes one parking space in the underground garage and a storage unit (extra charge).
STANDARD AND ESTATE:
ODEA Park has been designed with comfort, sustainability, and aesthetics in mind. The buildings are equipped with photovoltaic panels and green roofs, and the development has received prestigious BREEAM and Green Home certifications.
At the heart of the estate, residents have access to a community building featuring a fitness room and a meeting space with a kitchenette.
Additional on-site amenities include:
* a playground,
* bicycle stands with a repair station,
* a weather station with an air quality sensor,
* butterfly houses and bird drinkers.
For car owners, there are 146 parking spaces in the underground garage, including charging stations for electric vehicles.
LOCATION:
ODEA Park is located in a green area of Gdańsk, just 1.5 km from the Old Town. It’s a perfect spot for those who value peace, proximity to nature, and quick access to the city’s attractions. This combination of prestige and comfort in a natural setting makes ODEA Park one of Gdańsk’s most desirable addresses.
FOR WHOM:
ODEA Park is an ideal choice for individuals and families seeking a modern, eco-friendly, and comfortable home away from the city bustle, yet close to its vibrant center. Intimate buildings, spacious terraces, and thoughtful design solutions make this development truly stand out in the Tri-City area.
I invite you to a viewing!
Ogólne informacje
| Rodzaj | Na sprzedaż |
|---|---|
| Powierzchnia użytkowa | 67.95 m² |
| Piętro | 2 |
| Liczba pokoi | 3 |




