Nowoczesna inwestycja | Idealna dla rodziny
Nysa, Opolskie
Opis
NOWOCZESNY DOM | W ZABUDOWIE BLIŹNIACZEJ
Elegancka architektura | Energooszczędny | Funkcjonalny układ | Spokojna i zielona okolica | Blisko Jeziora Nyskiego | Widok na Góry Opawskie
*****
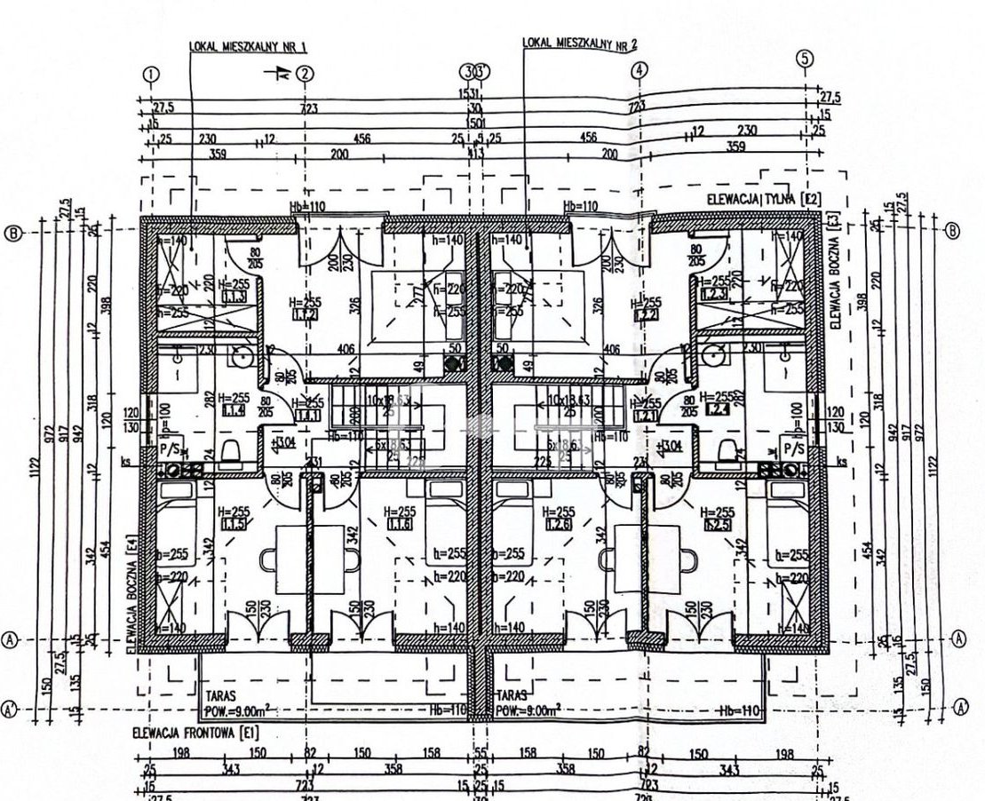
ROZKŁAD POMIESZCZEŃ I STANDARD:
Segment o powierzchni 110 m² to idealna przestrzeń dla rodziny lub pary poszukujących wygodnego, nowoczesnego domu w zielonym otoczeniu. W jego skład wchodzi:
Na parterze:
* Salon z aneksem kuchennym i wyjściem do ogrodu,
* łazienka z WC,
* wiatrołap,
* garaż w bryle budynku.
Na piętrze:
* Trzy sypialnie (w tym jedna z garderobą),
* łazienka z WC.
Standard wykończenia (stan deweloperski):
* Budynek ocieplony i otynkowany, elewacja - tynk strukturalny,
* wybrukowany podjazd,
* ogrodzona posesja,
* okna PCV trzyszybowe z elektrycznie sterowanymi roletami zewnętrznymi,
* ogrzewanie podłogowe na parterze,
* na piętrze przygotowane instalacje pod kaloryfery,
* sufity regipsowe na poddaszu,
* wyłaz na stryszek,
* rynny firmy Lindab,
* rozprowadzone instalacje: prąd, gaz, woda, kanalizacja.
LOKALIZACJA:
Inwestycja powstaje przy ul. Orzeszkowej w Nysie (woj. opolskie), w spokojnej, willowej dzielnicy, otoczonej nowoczesną zabudową jednorodzinną. To miejsce, w którym cisza i prywatność łączą się z wygodą codziennego życia.
W najbliższym otoczeniu znajdują się sklepy i dyskonty (m.in. Dino i Lewiatan), szkoły, przedszkola, park, ścieżki rowerowe, basen, hala sportowa oraz stadion. Komunikacja miejska dostępna jest w odległości ok. 200 m, co zapewnia szybkie połączenie z resztą miasta.
To także doskonała baza wypadowa dla osób aktywnych i miłośników natury - w pobliżu znajdują się Jezioro Nyskie oraz Jezioro Otmuchowskie, a także liczne szlaki turystyczne i stoki narciarskie w Polsce i Czechach.
Dogodny dojazd do centrum miasta, szybki wyjazd dzięki obwodnicy Nysy oraz bliskość większych ośrodków - 55 km do Opola i 80 km do Wrocławia - czynią tę lokalizację wyjątkowo praktyczną.To idealne miejsce zarówno dla rodzin z dziećmi, jak i osób poszukujących aktywnego stylu życia w otoczeniu zieleni i pięknej przyrody.
INFORMACJE DODATKOWE:
* Zakończenie budowy planowane na I kwartał 2026.
* Kupujący nie płaci prowizji.
* Klient zwolniony z opłaty 2% podatku PCC.
Zapraszam do kontaktu!
_
KONTAKT:
Ewelina Mika: +48 536 189 000
Przedstawiona wyżej oferta nie jest ofertą handlową w rozumieniu przepisów prawa, lecz ma charakter informacyjny. Partners International dokłada starań, aby treści przedstawione w naszych ofertach były aktualne i rzetelne. Dane dotyczące ofert uzyskano na podstawie oświadczeń wynajmujących.
Jako biuro nieruchomości pobieramy za usługę pośrednictwa wynagrodzenie w formie prowizji.
_
CONTACT:
Ewelina Mika: +48 536 189 000
Outlined above proposal is not a commercial offer for the purposes of the law but is informative. All data relating to real estate was obtained on the basis of statements of the Landlords.
As a real estate agency, we charge a commission.
_
MODERN SEMI-DETACHED HOUSE
Elegant architecture | Energy efficient | Functional layout | Quiet and green surroundings | Close to Lake Nyskie | View of the Opawskie Mountains
*****
ROOM LAYOUT AND STANDARD:
The 110 m² segment is the perfect space for a family or couple looking for a comfortable, modern home in green surroundings. The house consists of:
Ground floor:
* Living room with kitchenette and access to the garden,
* bathroom with toilet,
* vestibule,
* garage in the building.
First floor:
* Three bedrooms (including one with a wardrobe),
* bathroom with toilet.
Standard of finish (developer's standard):
* Insulated and plastered building, facade - textured plaster,
* paved driveway,
* fenced property,
* triple-glazed PVC windows with electrically controlled external blinds,
* underfloor heating on the ground floor,
* installations for radiators prepared on the first floor,
* plasterboard ceilings in the attic,
* access to the attic,
* lindab gutters,
* distributed installations: electricity, gas, water, sewage.
LOCATION:
The investment is being built on Orzeszkowej Street in Nysa (Opole Province), in a quiet residential area surrounded by modern single-family houses. It is a place where peace and privacy combine with the convenience of everyday life.
In the immediate vicinity, there are shops and discount stores (including Dino and Lewiatan), schools, kindergartens, a park, bike paths, a swimming pool, a sports hall, and a stadium. Public transport is available within approx. 200 m, providing quick connections to the rest of the city.
It is also an excellent base for active people and nature lovers - nearby are Lake Nyskie and Lake Otmuchowskie, as well as numerous hiking trails and ski slopes in Poland and the Czech Republic.
Convenient access to the city center, quick departure thanks to the Nysa bypass, and proximity to larger centers—55 km to Opole and 80 km to Wrocław—make this location exceptionally practical. It is an ideal place for both families with children and people seeking an active lifestyle surrounded by greenery and beautiful nature.
ADDITIONAL INFORMATION:
* Completion of construction planned for the first quarter of 2026.
* No commission payable by the buyer.
* The customer is exempt from the 2% PCC tax.
Feel free to contact me!
Ogólne informacje
| Rodzaj | Na sprzedaż |
|---|---|
| Powierzchnia użytkowa | 110 m² |
| Liczba pokoi | 4 |




