Nowoczesna rezydencja z widokiem na Zatokę Pucką
Pomorskie
Opis
WYJĄTKOWY DOM WYBUDOWANY W OPARCIU O INDYWIDUALNY PROJEKT
Imponująca przestrzeń | Unikalny projekt | Wysoki standard wykończenia | Antresola | System smart home | 2 tarasy | Wysokie sufity
*****
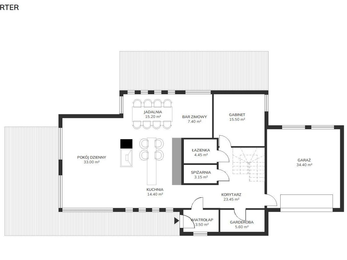
ROZKŁAD POMIESZCZEŃ:
Trzy poziomy o łącznej powierzchni użytkowej 342 m2. Parter, to serce domu o powierzchni ponad 160 m2, w którym znajduje się imponująca strefa dzienna, gdzie wysokość tego pomieszczenia to 8 metrów. Na tym poziomie znajdziemy min.:
* wspomniany doskonale doświetlony salon z kominkiem oraz wyjściem na ogród - ok. 33 m2,
* kuchnię z potężną wyspą, płynnie połączona z jadalnią i zimowym barem - łącznie ok. 37 m2,
* gabinet, aktualnie zaaranżowany na sypialnię - ok. 15,5 m2,
* jedną z trzech łazienek - ok. 4,5 m2,
* spiżarnię - ok. 3 m2,
* reprezentacyjny hall - ok. 23,5 m2,
* garderobę - ok. 5,5 m2,
* oraz wiatrołap.
Dodatkowo na tym poziomie mieści się dwustanowiskowy garaż o powierzchni blisko 35 m2.
Piętro, to kondygnacja prywatna o powierzchni blisko 98 m2, na którą składa się:
* pokój z zamysłem "master bedroom" połączony z łazienką, do wykończenia wedle przygotowanego projektu, z możliwością wydzielenia
* dwóch garderób lub sauny - ok. 33 m2,
* dwa pokoje (obydwa z wyjściem na balkon), w pełni wykończone, do dowolnej aranżacji, każdy odpowiednio ok. 16,5 i 18 m2,
* łazienka wyposażona w prysznic typu "walk in" - ok. 4,5 m2,
* oraz hall, połączony z wewnętrznym salonowym balkonem - ok. 25,5 m2.
Na tym poziomie najważniejszym punktem jest blisko 36 metrowy taras, z którego rozpościera się widok na całą miejscowość i pobliską Zatokę Pucką.
Trzecim poziomem jest w pełni zagospodarowane przyziemie, o powierzchni ponad 83 m2, pełniące funkcję kondygnacji gościnnej. Znajdziemy w niej min.:
* dużą przestrzeń w formie pokoju połączonego z aneksem kuchennym i
* wyjściem na dolny taras - ok. 40 m2,
* trzecią łazienkę z kabiną prysznicową - ok. 3 m2,
* kącik muzyczny, zaprojektowany na małe przydomowe studio nagrań - ok. 15 m2,
* oraz szereg pomieszczeń technicznych i gospodarczych.
WYKOŃCZENIE:
Całość wykończona przy użyciu najwyższej klasy materiałów. Wnętrze spójne i konsekwentnie zaprojektowane przez architekta z dbałością o każdy, nawet najdrobniejszy szczegół. Wykorzystany system Smart Home jest dużym, nowoczesnym ułatwieniem w codziennym użytkowaniu. Kuchnia w pełni wyposażona w wysokiej klasy sprzęt AGD. Dom wyposażony w system alarmowy, drzwi antywłamaniowe oraz rolety.
Ogród również został zaprojektowany, tak jak budynek, w minimalistycznym i przemyślanym stylu, który umożliwi domownikom aktywne spędzanie czasu oraz relaks na świeżym powietrzu.
Konstrukcja budynku powstała przy użyciu Porothermu, natomiast na dachu znajdziemy wysokiej jakości powlekaną blachę. Okna 3-szybowe. Dzięki swojej oryginalności i przemyślanej, funkcjonalnej przestrzeni z pewnością zadowoli nawet najbardziej wymagających klientów, szukających swojego miejsca na długie lata.
LOKALIZACJA:
Bardzo spokojna okolica w sąsiedztwie kameralnej zabudowy jednorodzinnej, która zapewnia ciszę i spokój, a jednocześnie szybki dostęp do głównych miejskich arterii.
Bogata infrastruktura handlowo - usługowa, jak również bliskość pięknych okolicznych plaż oraz terenów rekreacyjnych sprawia, że jest to idealne miejsce do zamieszkania, które z pewnością zostanie docenione.
INFORMACJE DODATKOWE:
* Budynek usytuowany jest na kaskadowej, lecz w pełni i starannie, zagospodarowanej działce o powierzchni 999 m2,
* Oddany do użytkowania w 2016 roku, finalnie został zamieszkany na początku 2020 roku,
* Prąd, woda, kanalizacja - z sieci miejskiej,
* Ogrzewanie - nowoczesna pompa ciepła, a alternatywnym źródłem jest salonowy kominek,
* Dużym atutem nieruchomości jest spora ilość przeszkleń oraz ukierunkowanie na strony świata: ogród Płd-Zach., taras Płn-Wsch., dzięki czemu będzie ona bardzo dobrze doświetlona przez cały dzień.
* Nowoczesna bryła, wysokie sufity oraz duża ilość wspomnianych przeszkleń, to najważniejsze punkty rezydencji.
Zapraszam na prezentację!
——————————————
KONTAKT:
Jakub Nowaczek: + 48 538 562 124
Przedstawiona wyżej oferta nie jest ofertą handlową w rozumieniu przepisów prawa, lecz ma charakter informacyjny. Partners International dokłada starań, aby treści przedstawione w naszych ofertach były aktualne i rzetelne. Dane dotyczące ofert uzyskano na podstawie oświadczeń Sprzedających.
Jako biuro nieruchomości pobieramy za usługę pośrednictwa wynagrodzenie w formie prowizji.
——————————————
CONTACT:
Jakub Nowaczek: + 48 538 562 124
Outlined above proposal is not a commercial offer for the purposes of the law but is informative. All data relating to real estate was obtained on the basis statements of the Sellers.
As a real estate agency we charge a commission.
——————————————
EXCEPTIONAL HOUSE BUILT BASED ON A BESPOKE DESIGN
Impressive space | Unique design | High standard of finish | Mezzanine | Smart home system | 2 terraces | High ceilings
*****
LAYOUT:
Three levels with a total usable area of 342 m².
The ground floor is the heart of the house, covering over 160 m², featuring an impressive living area with a ceiling height of 8 meters. On this level you will find, among others:
* a perfectly sunlit living room with a fireplace and access to the garden - approx. 33 m²,
* a kitchen with a large island, seamlessly connected to the dining area and * a winter bar - approx. 37 m² in total,
* a study, currently arranged as a bedroom - approx. 15.5 m²,
* one of the three bathrooms - approx. 4.5 m²,
* a pantry - approx. 3 m²,
* a representative hall - approx. 23.5 m²,
* a walk-in wardrobe - approx. 5.5 m²,
* and a vestibule.
Additionally, this level includes a two-car garage with an area of nearly 35 m².
The first floor is the private zone with an area of nearly 98 m², comprising:
* a room designed as a master bedroom connected to a bathroom, to be finished according to the prepared design, with the option to create two walk-in wardrobes or a sauna - approx. 33 m²,
* two rooms (both with access to a balcony), fully finished and ready for any arrangement - approx. 16.5 m² and 18 m² respectively,
* a bathroom with a walk-in shower - approx. 4.5 m²,
* and a hall connected to an internal living-room balcony - approx. 25.5 m².
The highlight of this level is a nearly 36 m² terrace offering a view over the entire town and the nearby Puck Bay.
The third level is a fully developed lower ground floor with an area of over 83 m², serving as a guest level. It includes, among others:
* a large open space combining a room with a kitchenette and access to the lower terrace - approx. 40 m²,
* a third bathroom with a shower cabin - approx. 3 m²,
* a music corner designed as a small home recording studio - approx. 15 m²,
* as well as a number of technical and utility rooms.
FINISHING:
The entire house is finished using top-quality materials. The interior is cohesive and consistently designed by an architect, with attention paid to every detail, even the smallest ones. The Smart Home system used is a major modern convenience for everyday living. The kitchen is fully equipped with high-end household appliances. The house is fitted with an alarm system, burglar-proof doors, and shutters.
The garden, like the building itself, has been designed in a minimalist and well-thought-out style, allowing residents to enjoy active leisure as well as relaxation outdoors.
The building structure was constructed using Porotherm blocks, and the roof is covered with high-quality coated metal sheeting. Triple-glazed windows are installed. Thanks to its originality and well-designed, functional space, the property will certainly satisfy even the most demanding clients looking for a home for many years to come.
LOCATION:
A very quiet area surrounded by intimate single-family housing, ensuring peace and tranquility while still providing quick access to the main city arteries.
Rich retail and service infrastructure, as well as proximity to beautiful nearby beaches and recreational areas, make this an ideal place to live that is sure to be appreciated.
ADDITIONAL INFORMATION:
* The building is situated on a terraced yet fully and carefully landscaped plot of 999 m²,
* Commissioned in 2016; finally occupied in early 2020,
* Electricity, water, and sewage from the municipal network,
* Heating: modern heat pump, with a living-room fireplace as an alternative heat source,
* A major advantage of the property is the large amount of glazing and its orientation: garden facing south-west, terrace facing north-east, ensuring excellent natural light throughout the day,
* Modern architecture, high ceilings, and extensive glazing are the key features of this residence.
You are warmly invited to a viewing!
Ogólne informacje
| Rodzaj | Na sprzedaż |
|---|---|
| Powierzchnia użytkowa | 361.65 m² |
| Liczba pokoi | 6 |




