Nowoczesne 2-pokojowe mieszkanie | Fabrica Ursus | 45,37 m²
Warszawa, Mazowieckie
Opis
Na sprzedaż nowoczesne mieszkanie w stanie deweloperskim, stanowiące odrębną własność, zlokalizowane w prestiżowej inwestycji Fabrica Ursus (budynek A1) – jednej z najciekawszych realizacji mieszkaniowych w tej części Warszawy.
Lokalizacja
Miasto: Warszawa
Dzielnica: Ursus
Inwestycja: Fabrica Ursus – budynek A1
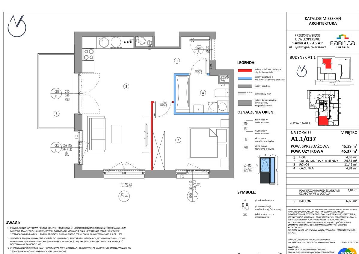
Lokal: A1.1/037
Ursus to dynamicznie rozwijająca się dzielnica, doskonale skomunikowana z centrum Warszawy, oferująca pełną infrastrukturę miejską oraz liczne tereny zielone.
Parametry nieruchomości
Powierzchnia mieszkania: 45,37 m²
Powierzchnia z balkonem: 46,39 m²
Wysokość lokalu: 281 cm
Układ pomieszczeń:
przestronny hall
salon z aneksem kuchennym
ustawna sypialnia
łazienka
Piętro: 5 / 7
Rok budowy: 2026
Stan: deweloperski
Dodatkowe udogodnienia
Balkon: tak
Miejsce parkingowe: nr 121, poziom -2 (garaż podziemny)
Stan prawny
Forma własności: pełna własność
Księga wieczysta: w trakcie zakładania
Obciążenia: brak
Zakup na kredyt: możliwy
Budynek i inwestycja – Fabrica Ursus
Fabrica Ursus to nowoczesna inwestycja mieszkaniowa realizowana na terenie dawnej fabryki, łącząca industrialny charakter miejsca z nowoczesną architekturą i wysokim standardem wykonania.
Atuty inwestycji:
nowoczesna architektura i eleganckie części wspólne
wysoka jakość materiałów
windy i garaż podziemny
starannie zaprojektowana przestrzeń osiedlowa
bliskość terenów zielonych i rekreacyjnych
świetna komunikacja – SKM, autobusy, szybki dojazd do centrum
w sąsiedztwie sklepy, restauracje, szkoły, przedszkola i żłobki
Opis
Mieszkanie o bardzo funkcjonalnym rozkładzie, dającym duże możliwości aranżacyjne. Przestronny salon z aneksem kuchennym stanowi idealną strefę dzienną, natomiast dwa oddzielne pokoje zapewniają komfortową przestrzeń prywatną – doskonałą zarówno dla rodziny, jak i pod wynajem.
Stan deweloperski pozwala na urządzenie wnętrza zgodnie z własnym gustem i potrzebami, bez kompromisów.
Cena: 672 495,48 zł lokal mieszkalny. Miejsce postojowe w garażu podziemny 35 753,01 zł.
Terminy
Zakończenie robót budowlanych: wiosna 2026 r.
Uzyskanie pozwolenia na użytkowanie: do 15.03.2026
Termin odbioru: nie później niż 31.08.2026
Ogólne informacje
| Rodzaj | Na sprzedaż |
|---|---|
| Powierzchnia użytkowa | 45.37 m² |
| Piętro | 5 |
| Liczba pokoi | 2 |




