Nowoczesne 2-pokojowe mieszkanie w Poznaniu
Poznań, Wielkopolska
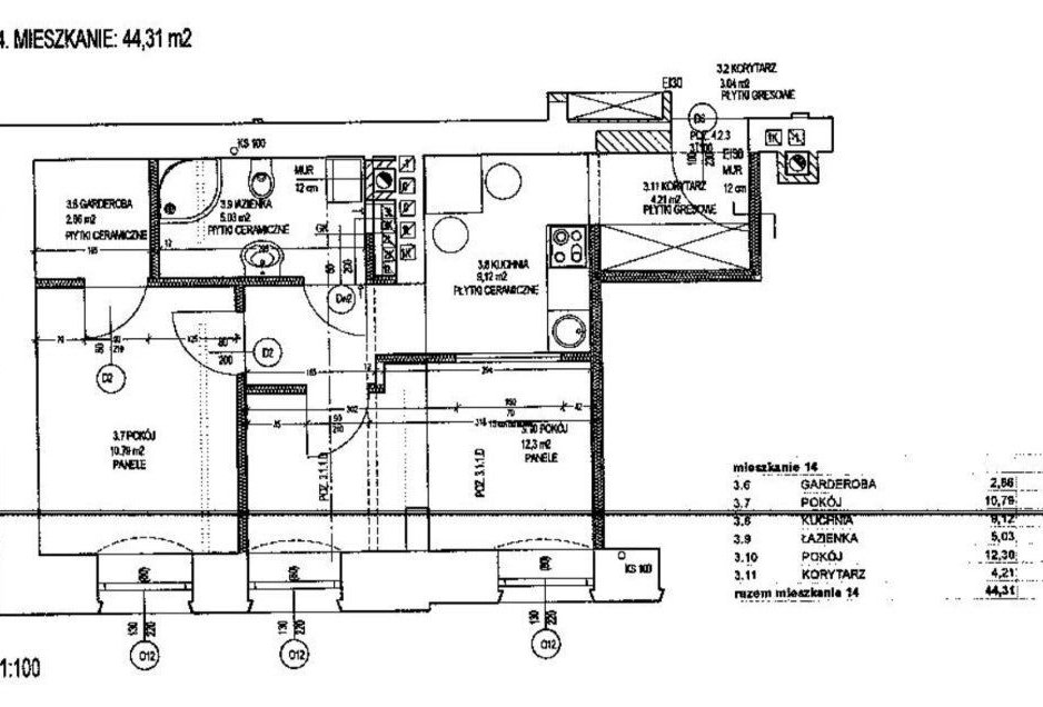
Opis
Zamieszkaj w komfortowym mieszkaniu o powierzchni 44,31 m² w centrum Poznania. Dwupokojowa przestrzeń jest świeża, jasna i funkcjonalna. Wnętrze wykończono z wysokiej jakości materiałów, a duże okna zapewniają naturalne światło.
Oddzielna kuchnia z wysokiej klasy sprzętem, takim jak zmywarka, piekarnik i lodówka.
Przytulna sypialnia z dużymi, jasnymi oknami i nowoczesnym wystrojem.
Łazienka z nowoczesnym wyposażeniem, dużą kabiną prysznicową i wysokim standardem wykończenia.
Mieszkanie znajduje się na 3. piętrze kamienicy z 2015 roku.
Ogrzewanie gazowe zapewnia komfort przez cały rok.
Lokalizacja to Stare Miasto w Poznaniu – blisko teatrów, kin, muzeów oraz terenów zielonych. W odległości kilku minut dojdziesz do szkół, przedszkoli i supermarketów. Doskonały dostęp do komunikacji miejskiej, w tym tramwajów i autobusów.
Zainteresowany? Umów się na prezentację i zobacz to mieszkanie na żywo już dziś!
Ogólne informacje
| Rodzaj | Na sprzedaż |
|---|---|
| Powierzchnia użytkowa | 44.31 m² |
| Piętro | 3 |
| Liczba pokoi | 2 |




