Nowoczesne 3 pokoje, deweloper Hossa 2020 r
Gdańsk, Pomorskie
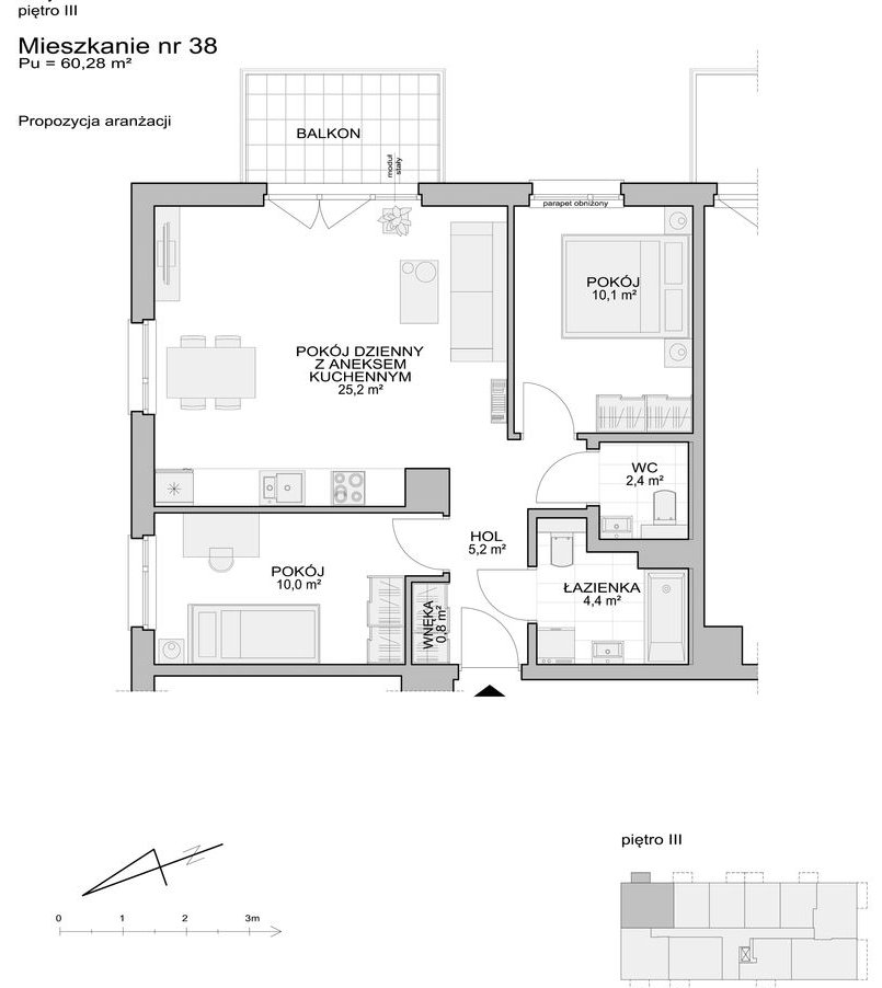
Opis
Nowoczesne, 3-pokojowe mieszkanie wybudowane w roku 2020 przez renomowanego dewelopera Hossa w ramach inwestycji Jasień Bulwary, położone na ostatniej kondygnacji w trzypiętrowym budynku z windą. Osiedle usytuowane w spokojnej okolicy tuż przy terenach zielonych i jeziorze Jasień. Cały teren osiedla zabezpieczony szlabanem oraz dużo miejsc parkingowych ogólnodostępnych dla mieszkańców osiedla. Parking pod nadzorem APCOA, do mieszkania przynależy prawo bezpłatnego parkowania dwóch pojazdów na terenie zewnętrznym w ramach miejsc ogólnodostępnych.
Do mieszkania przynależy wygodne, położone blisko klatki schodowej miejsce parkingowe w hali garażowej + komórka lokatorska o powierzchni 1,86 m2, obligatoryjne do zakupu wraz z mieszkaniem w cenie 49 tyś złotych.
Osiedle jest dobrze skomunikowane, przystanek autobusowy - 200 metrów, bardzo szybki dojazd do obwodnicy, centrum handlowe Auchan, Leroy Merlin z pełnym zapleczem usług - 1 km, lotnisko - 15 min, starówka - 15 minut
ATUTY MIESZKANIA:
Jasny, narożny salon z oknem balkonowym,
Aneks kuchenny z pełnym wyposażeniem AGD oraz wygodną wyspą,
Przedpokój z szafą z drzwiami przesuwanymi z luster.
Wszystkie drzwi wewnętrzne z litego drewna
Nowoczesna łazienka z prysznicem walk-in i zabudową na pralkę
Podłoga LVT firmy Gerfloor bardzo odporna na zarysowania i wodę
Osobna garderoba
Sypialnia z ozdobną ścianą wyłożoną litym drewnem
Bardzo niskie koszty utrzymania nieruchomości ( 457 z już wraz z miejscem w hali garażowej plus woda, śmieci i ogrzewanie, to daje łącznie około 550 zł latem, 700 zł zimą)
Budynek w bardzo dobrym stanie technicznym, wspólnota bez zadłużeń.
Mieszkanie nie wymaga dodatkowych nakładów, dostępne od zaraz, bez obciążeń hipotecznych.
Budynek w bardzo dobry stanie technicznym
Powyższa oferta nie stanowi oferty handlowej w rozumieniu art. 66 § 1 kodeksu cywilnego.
Ogólne informacje
| Rodzaj | Na sprzedaż |
|---|---|
| Powierzchnia użytkowa | 60 m² |
| Piętro | 3 |
| Liczba pokoi | 3 |




