Nowoczesne 5-pokojowe mieszkanie - balkon - parking - podłogówka
Warszawa, Mazowieckie
Opis
Opis
--------------------- Bezpośrednio od Dewelopera ------------------------
Zapraszamy na spotkania na budowie -> prezentacja mieszkań!
W cenie 849.000 zł otrzymują Państwo:
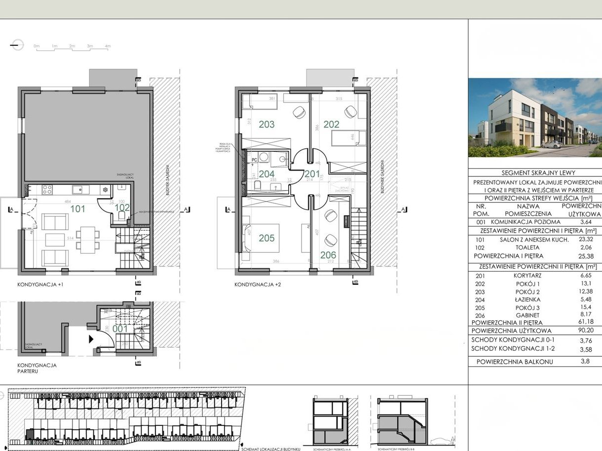
2-poziomowe mieszkanie o powierzchni 90,2 m2;
Miejsce postojowe przy wejściu do mieszkania;
Pompę ciepła;
Ogrzewanie podłogowe - w całym mieszkaniu.
Dodatkowo opcje (na życzenie):
Dodatkowe miejsce postojowe (+35.000 zł);
Instalacja fotowoltaiczna;
Możliwość dostosowania układu mieszkania do własnych potrzeb (tzw. zmiany lokatorskie)
Instalacja klimatyzacji.
Pozostałe Mieszkania w ofercie:
IV etap obejmuje 44 lokale, wszystkie w zabudowie szeregowej:
każdy jest dwupoziomowy;
lokale z ogrodami lub balkonami (niektóre posiadają ogród i balkon);
każdy blok składa się z 4 albo 3 segmentów, w każdym segmencie są 2 mieszkania.
Oferujemy dwa metraże:
90,26 m²: 4 sypialnie, przestronny salon z aneksem kuchennym, 2 łazienki, przestrzeń pod klatką schodową do wykorzystania jako komórka lokatorska (wszystkie mieszkania o tej powierzchni usytuowane są na 1 i 2 piętrze).
83,55 m²: 3 sypialnie, przestronny salon z aneksem kuchennym, korytarz z miejscem na szafy, wiatrołap, gabinet, łazienka na parterze (wszystkie mieszkania o tej powierzchni usytuowane są na 0 i 1 piętrze)
Sprzedaż dopiero rusza, dlatego zapraszam do umawiania spotkań !
Dokładną listę dostępnych lokali prześlemy w odpowiedzi na zapytanie.
Mieszkania są bezczynszowe - media rozliczane indywidualnie wg zużycia.
Formalności
Termin zakończenia budowy: 12.2026 r.
Bezpieczeństwo transakcji zapewniają rachunki powiernicze prowadzone przez bank, a środki wypłacane są po ukończeniu danego etapu.
Inwestycja realizowana jest zgodnie z tzw. Ustawą Deweloperską
Zakup bezpośrednio od dewelopera: BRAK PCC / BRAK PROWIZJI
------------ Zapraszamy do umówienia spotkania na budowie ------------
IV ETAP jest już w trakcie budowy, dlatego zapraszamy do umówienia spotkania na budowie, w celu obejrzenie poszczególnych mieszkań oraz zapoznania się infrastrukturą osiedla i okolicy oraz zapoznania się z już oddanymi I - III ETAPEM.
Podczas prezentacji szczegółowo scharakteryzujemy zarówno prawne jak i techniczne aspekty budowy, zakupu i finansowania.
Zapraszam do kontaktu, aby umówić prezentację i otrzymać pełne materiały informacyjne: mailowo/telefonicznie.
Ogólne informacje
| Rodzaj | Na sprzedaż |
|---|---|
| Powierzchnia użytkowa | 90 m² |
| Piętro | 1 |
| Liczba pokoi | 5 |




