Nowoczesne Domy w cenie mieszkania Ochojno ~114m2 + ~35m strych.
Małopolskie
Opis
Na sprzedaż – Nowoczesne lokale mieszkalne z ogrodami | ~114 m²
Przedstawiamy Państwu wyjątkową ofertę sprzedaży czterech nowoczesnych, dwupoziomowych lokali mieszkalnych o powierzchni 114 m² każdy, położonych w kameralnej, widokowej części miejscowości. Inwestycja ta to połączenie komfortu, wysokiej jakości wykonania oraz nowoczesnych rozwiązań technicznych – idealna propozycja dla rodzin poszukujących przestrzeni i spokoju.
Chcesz zamieszkać w spokojnej i zielonej okolicy oddalonej 15 minut jazdy od Krakowa. Zapraszamy do kontaktu.
Budowa rozpoczęta! Jesteśmy w trakcie realizacji stanu "zero". Trwają prace związane z wykonaniem fundamentów.
Funkcjonalny układ i przemyślane rozwiązania
Każdy z lokali zaprojektowany został z myślą o wygodnym, codziennym życiu. Dwupoziomowy układ zapewnia wyraźny podział na strefę dzienną i nocną:
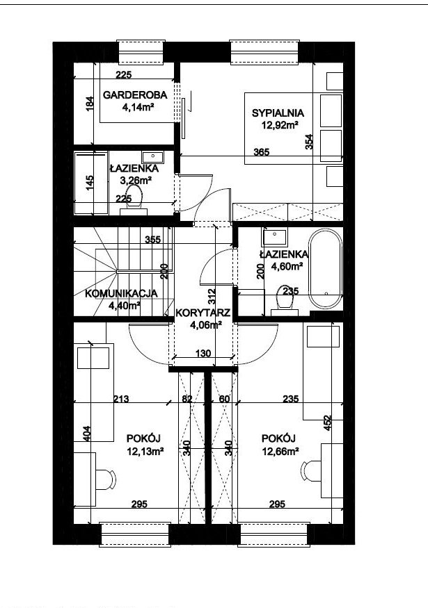
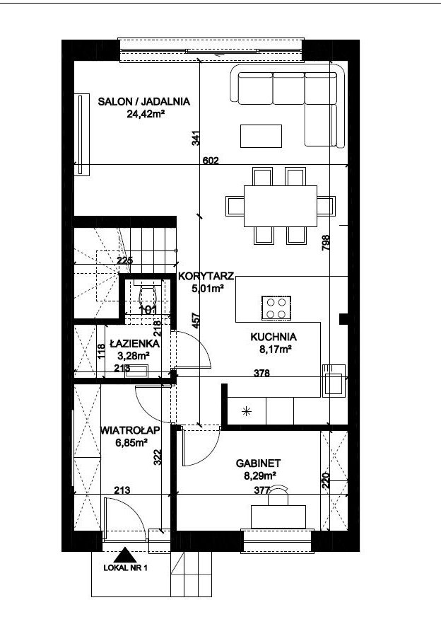
Parter:
Przestronny salon z dużymi przeszkleniami oraz aneksem kuchennym
Gabinet – idealny jako domowe biuro lub pokój gościnny
Łazienka z miejscem na prysznic
Wyjście na ogród z zielonym terenem do prywatnej dyspozycji
Piętro:
Trzy komfortowe sypialnie
Druga łazienka z miejscem na wannę lub prysznic
Strych: nieużytkowy, doskonały jako przestrzeń magazynowa - około 35m2
Standard wykonania – trwałość, technologia, komfort
Budynki wykonane zostaną z solidnych materiałów, z dbałością o każdy detal konstrukcyjny i wykończeniowy:
Fundamenty: żelbetowe
Ściany konstrukcyjne: z ceramiki lub betonu komórkowego
Strop: żelbetowy
Schody: wylewane, żelbetowe
Okna: wysokiej klasy PVC, 3-szybowe – zapewniają doskonałą izolację termiczną i akustyczną
Wszystkie lokale wyposażone są w komplet instalacji wewnętrznych:
wodno-kanalizacyjna
elektryczna
gazowa
alarmowa
panele fotowoltaiczne
centralnego ogrzewania (ogrzewanie podłogowe w całym budynku)
Dodatkowo każdy lokal posiada:
światłowodowe przyłącze internetowe
Otoczenie i działka
Każdy lokal posiada prywatny ogród o powierzchni od 34 m² do nawet 135 m² – idealne miejsce na relaks, plac zabaw. Teren inwestycji jest w całości ogrodzony, z wewnętrzną drogą dojazdową oraz wydzielonymi miejscami parkingowymi.
Miejsce postojowe
Duże przeszklenia i usytuowanie względem stron świata gwarantują naturalne doświetlenie wnętrz
Lokalizacja – cicho, zielono, widokowo
Inwestycja położona jest w malowniczym otoczeniu z pięknym widokiem, w miejscu zapewniającym ciszę, spokój i codzienny komfort życia. Jednocześnie w najbliższej okolicy znajdują się wszystkie kluczowe punkty infrastruktury:
Szkoła i przedszkole – 650 m
Boisko sportowe i tereny rekreacyjne – 650 m
Przystanek autobusowy – 450 m
Stok narciarski – 1000m
Sklepy, usługi – 450m oraz w promieniu kilku minut jazdy samochodem
To idealne miejsce dla osób szukających równowagi między spokojem a wygodą codziennego życia.
Zainteresowany? Zadzwoń i poznaj szczegóły!
Zapraszamy do kontaktu i umówienia się na spotkanie. Chętnie odpowiemy na pytania, przedstawimy rzuty oraz harmonogram realizacji.
Cena od 840 000zł
Zakończenie inwestycji 4 kwartał 2026r.
Dodatkowo, możliwość wykończenia lokalu "pod klucz" w atrakcyjnej cenie.
Ogłoszenie bezpośrednie od dewelopera. Bez prowizji i dodatkowych kosztów.
Powyższe ogłoszenie ma charakter informacyjny i nie stanowi oferty handlowej w rozumieniu art. 66 §1 Kodeksu cywilnego.
Ogólne informacje
| Rodzaj | Na sprzedaż |
|---|---|
| Powierzchnia użytkowa | 114 m² |
| Liczba pokoi | 5 |




