Nowoczesne domy w Łochowie,stan deweloperski
Mazowieckie
Opis
Rusza już kolejna inwestycja nowoczesnych domów parterowych w Łochowie przy ulicy żytniej pod nazwą "ŻYTNIA 3" ( numer działki 618/20).
Domy powstaja na cichym i kameralnym osiedlu, wśród samych nowych budynków.
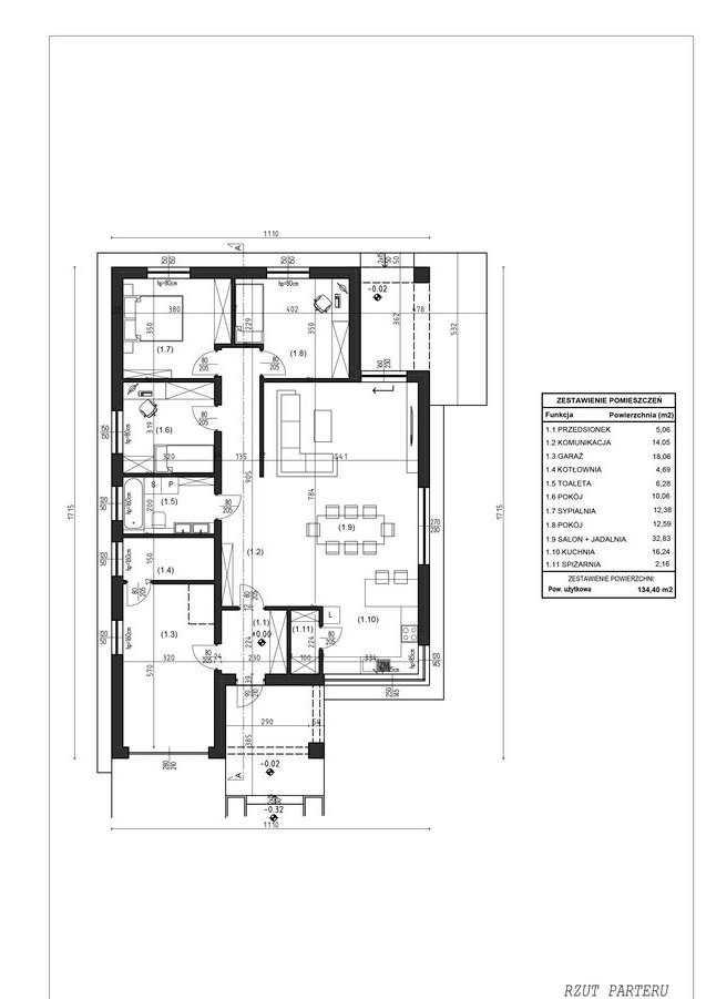
Będą posiadały salon z aneksem kuchennym i spiżarką, trzy pokoje, wiatrołap, korytarz, łazienkę, pralnie oraz garaż jednostanowiskowy.
Domy są tak zaprojektowane z możliwością adaptacji poddasza, dzięki temu można zyskać dodatkowe około 70 m2.
Budynek będzie ogrzewany piecem gazowym marki Viessmann.
Kolorystyka domu a także ogrodzenie i kostka brukowa będą odzwierciedleniem zdjęć.
Ogrodzenie od ulicy: Słupki od ulicy z elementów betonowych w kolorze jasno szarym, połączone z przęsłami, bramą i furtka w kolorze czarny mat. Z pozostałych trzech stron, systemowe ogrodzenie panelowe w kolorze czarym z podmurówką betonową.
Schody, taras, chodnik, opaska dookoła domu z kostki brukowej kolorze szarym połączony z grafitem i białym.
Teren będzie zagospodarowany z zasianą trawą
Przyłącza i media zewnętrzne :
* Woda
* Prąd
* Szambo na nieczystości
* Gaz ziemny
Najwyższy Standard:
* Nowoczesna architektura
* Ściany z gazobetonu 24cm. + ocieplenie 20 cm. + tynk silikonowy
* Ściany w wewnątrz - tynki gipsowe zagruntowane na biało
* Stolarka okienna PCV w kolorze zewnętrznym,grafitowym
* Duże okno na taras w systemie przesuwnym
* Drzwi zewnętrzne stalowe w okleinie drewnopodobnej
* Brama garażowa segmentowa, sterowana pilotem
Zainteresowanych, zapraszam do obejrzenia zrealizowanych domów.
Kupujący nie płaci podatku PCC, Wystawiamy fakturę Vat.
Możliwość zakupu na raty na korzystnych warunkach.
Zapraszam do bezpiecznego zakupu,objetego Ustawą Dewelopeską.
Termin zakończenia domów to I kwartał 2027r.
Zainteresowane osoby zapraszam do kontaktu pod numer telefonu 604-050-240
Ogólne informacje
| Rodzaj | Na sprzedaż |
|---|---|
| Powierzchnia użytkowa | 134.40 m² |
| Liczba pokoi | 4 |




